今年4月,荔湾花地街羊城食品厂地块开拍仅4秒就被送入摇号,在广州土地市场引起了不少的关注。
当时拿地没多久,就传出武汉城建要与保利联手开发的消息,项目案名也几经更改,从“保利花语和岸”、“广州保利和煦”再到“广州和著美苑”,吊足了市场胃口。如今终于尘埃落定,项目定名为“武汉城建保利花语和岸”,据说很快就会入市。(具体开盘时间以开发商公布为准)

早些时候项目开了展厅,就开在荔湾芳村的立白中心一楼。从地铁1号线芳村站B1口出来后,不用过马路,沿着道路向北走大约400米右转(百度地图数据),就能看到。
据此前得知的消息,项目将推售建面约86-142㎡三至四房。(户型图仅供参考,以开发商最终公布为准)
建面约86㎡三房两卫:

建面约115㎡四房两卫:

建面约136㎡四房两卫:

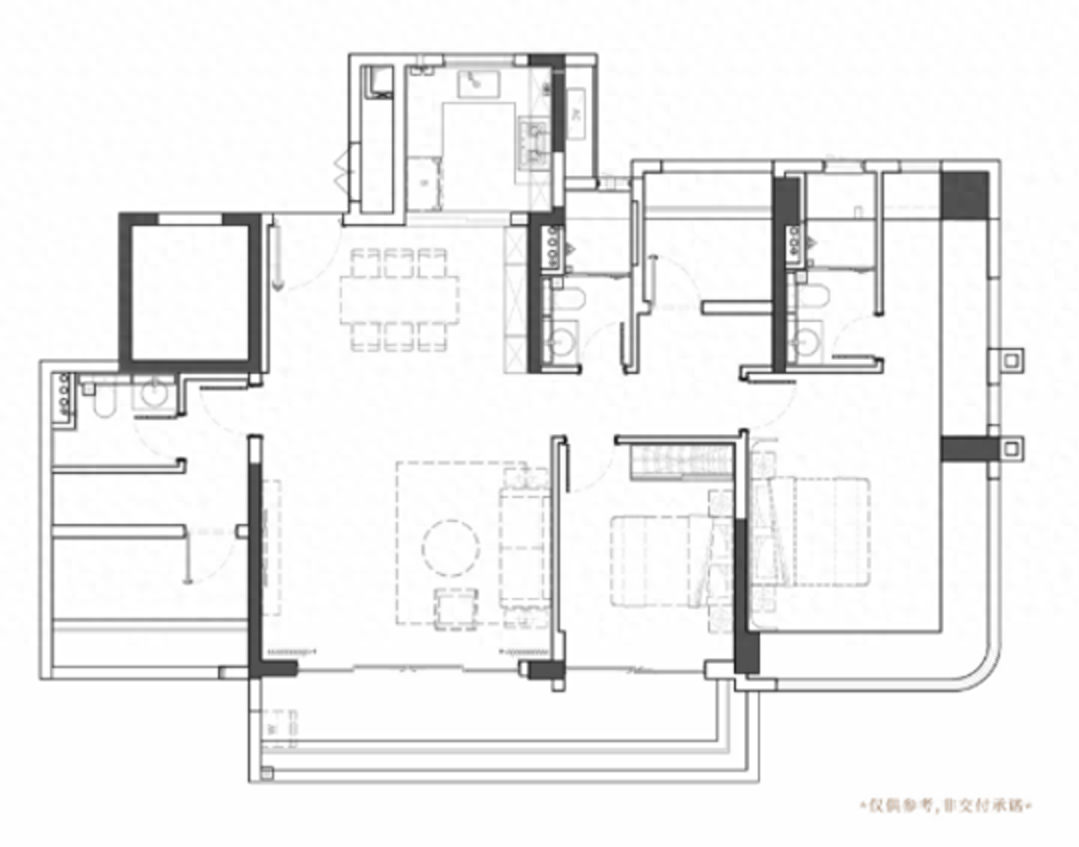
以及建面约142㎡四房三卫:

根据规划,武汉城建保利花语和岸项目拟建6栋住宅,1所幼儿园及部分底商,还有文化室、小区游园、居民健身场所等。
其中,住宅方面,1A#和1B#层高均为31层,分布在园林西侧;2#住宅17层,在园林北侧;3A#和3B#住宅高为32层,位于园林东侧,与1#相对;4#住宅为5层,在项目东北侧。

值得一提的是,这个项目的实际得房率,或将达到100%!虽然这两年,广州市面上的楼盘都在卷得房率,80%、90%以上的都有,但100%的还非常罕见。
项目展厅虽设在立白中心楼下,一路之隔,就是华润置地白鹅潭悦府,但过去项目还是有一段距离。
如果还是从地铁1号线芳村站B1口出发,途中会经过在建的华润置地白鹅潭项目工地、醉观公园、广州市荔湾区康有为纪念小学等。

武汉城建保利花语和岸项目地块位于花地河畔,自带一线江景,环境很是不错,河边经常能看到有老大爷在钓鱼。
同时,由于地处老城区,项目周边相关配套较为成熟,除交通、教育外,商业医疗等也一应俱全,如花地好邻舍商业中心、广东省中医院芳村医院等,生活氛围相对浓厚。
从当前现场来看,项目正在如火如荼地施工建设当中,运输车辆进进出出,工人们也都在忙碌,大门口还有“武汉建工”的标志。
目前,地块周边新房有华润置地白鹅潭悦府、新世界凯粤湾、保利锦上印、力诚榕诚湾等,参考单价5-10万 /㎡不等。二手方面,房子楼龄较老但价格不高,如兰兴苑小区,二手房参考均价约2.6万元/㎡;丽和华庭参考均价4.4万元/㎡等。
至于这个项目的价格,销售表示会参考周边新盘。按照保利高要求的产品调性,相信项目入市会让人眼前一亮。

