如果你是同样精打细算的刚需一族,今天要带大家看的大华城东郡,就很合适:朱村地铁口,地铁三站到万达,步行可达旧改规划中的嘉年华商业综合体、朱村美食街,社区自带幼儿园、商业,总价最低13X万、首付三成最低40万可入三房。

交通:21号线朱村地铁口
还未出地铁站就能看到不远处的项目大华城东郡,离地铁近最大的好处就是出行方便,未来上班通勤不必担心堵车迟到。
通过地铁21号线,可直接连通黄埔、天河,此外,在镇龙站换乘14号线可以去往白云,在水西站可换乘今年年底即将开通的7号线延长线去往海珠、番禺,在苏元站可换乘6号线前往天河东、越秀、荔湾,在黄村还能换乘地铁4号线前往番禺大学城,去到终点站员村可换乘5号线前往珠江新城、金融城等等。

此外,还能坐一个站去到凤岗换乘快线,通勤更快捷。
如果是自驾的话,目前可通过广河高速、广园快速和广汕公路去往天河,此外预计2024年开通的增天高速-朱村出口就在项目旁边,直接缩短项目和主城的距离,未来往返天河就更便捷了。
对于出差比较多的打工人,地铁快线2站到达镇龙TOD,两条城轨在此经过,可以通过穗莞深城轨通往深圳、东莞等周边城市,或者通过新白广城际前往白云国际机场。
商业:步行可达大型商业体
出地铁可以看到,目前项目大华城东郡周边还是颇具居住氛围的,朱村美食街就在眼前,食肆、便利店、市场都有,能够满足基本的需求;如果逛逛商场啥的,地铁3站可以去到现有的万达广场和东汇城商圈。
此外,麦当劳意向进驻项目商业街,目前售楼部所在的位置未来预计会有麦当劳。

如果还不满足,距离项目约900米的地方将建一个大型商业综合体,为未来旧改规划之一。

项目:由2栋叠墅和7栋住宅组成
大华城背靠朱村旧改,有约19万㎡商业、约17万㎡产业以及约18万㎡教育,大华城东郡为首期,占地约4万㎡,由2栋叠墅和7栋住宅组成,除了商业,还配建有一所9班公里幼儿园。

从沙盘可见,住宅的楼间距比较大,可去到70余米,采光更好、视野更广,同时能够很好地提升居住私密性。正因为楼间距大,所以园林也比较大,相当于一个足球场那么大,并且照顾全龄娱乐需求,设有儿童游乐园、老年人文体中心、385米的夜光跑道、羽毛球场等。

产品方面,叠墅已建好未开售,只有24套,建面涵盖120-140㎡,预计最低售价3万/㎡,据说实用率可去到200%。
至于住宅,共有1206户,大华城东郡目前剩余3号楼在售,两梯六户,总层高33层,户型涵盖建面约78-98㎡3-4房,售价1.8-2.2万/㎡,总价最低150万,首付三成最低约45万可入三房。所有户型都有入户花园赠送,预计年底交楼。

此外,买房送车位,还有限量的菜园使用权赠送,未来可在自家楼下体验“采菊东篱下,悠然见南山”的惬意。

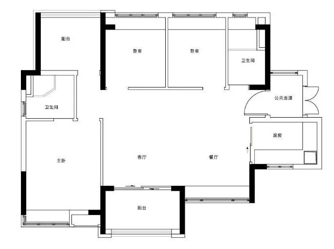
建面约78㎡北向三房,户型方正紧凑,动静分区,全明格局,采光通风比较好,还带入户玄关,刚需上车首选。

建面约88㎡南向三房,方正全明,主卧套房设计,三开间朝南,居住舒适度较高。

建面约98㎡南北对流四房,四开间朝南,横厅设计,通风采光更佳。进门就是洗手间,主卧同样是套房设计,独立卫浴,提升居住私密性。

总结来看,大华城东郡近地铁、小户型、低总价、带商业,刚需追求的基本都齐备,长远来看还有朱村旧改带来的各项配套。

