番禺万博 CBD 核心区域的广地花园,自 1997 年开发至今已形成成熟社区。项目占地 26.6 万㎡,总建筑面积 65.5 万㎡,容积率 1.99,绿化率 37%,由 42 栋住宅组成,物业为广州广地物业管理有限公司,费用 2.8 元 /㎡/ 月。

作为华南板块的代表性楼盘,广地花园周边商业、教育、医疗配套完善,同时临近华南快速干线,交通便利,适合注重生活便利性和性价比的家庭。
交通出行方面,广地花园目前以自驾为主,从小区出发可快速接入华南快速干线,15 分钟车程可达珠江新城,30 分钟覆盖琶洲、金融城等核心区域。
公共交通方面,社区提供 3 条楼巴线路,分别接驳珠江新城、南村万博站及汉溪长隆站,方便居民换乘地铁 3 号线、7 号线和 18 号线。此外,在建的广佛环城际线大源站距离项目约 1 公里,预计 2025 年底通车后,将进一步提升交通便利性。

教育配套是广地花园的一大亮点。社区内配建的明德广地实验学校为九年一贯制民办学校,业主子女可直接入读,小学部学费约 1.2 万元 / 学期,初中部约 1.5 万元 / 学期。周边 1 公里范围内还有汇贤小学(公立)和侨联中学(公立),以及星执学校(原执信中学,民办省一级),提供多样化的教育选择。

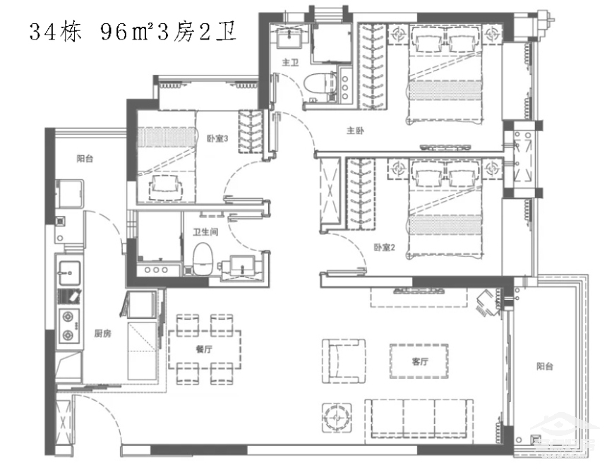
户型设计覆盖 74-162㎡的两至五房,满足不同家庭需求。
74㎡两房为紧凑设计,南北通透,适合单身或小家庭,但北向户型靠近华南快速干线,低楼层可能存在噪音问题。

96㎡三房采用南北对流设计,餐客厅一体化连通观景阳台,主卧带独立卫浴,实用性强。

122㎡四房南北通透,三个卧室均带飘窗,适合三代同堂家庭。

162㎡五房双套房设计,南北双阳台,主卧带步入式衣帽间和独立卫浴,空间宽敞,适合多孩家庭。

社区配套成熟,自带 2 万㎡星聚社商业街,华润万家超市、麦当劳、药店等日常配套齐全。1.6 公里珠江滨水长廊和 10 万㎡亲水园林为居民提供休闲空间,园林内设有健身步道、儿童乐园和老年活动区。
医疗方面,项目对面即为番禺区第二人民医院(二级甲等),30 分钟车程内可到达南方医院、第八人民医院等三甲医院。

不过实地看房时需注意,小区东侧部分楼栋靠近华南快速干线,低楼层可能受车流噪音影响,建议优先选择 8 层以上房源。周边仍有部分城中村待改造,城市界面有待提升。此外,社区车位配比不足,停车问题较为突出。
综上所述,广地花园凭借成熟的配套、实用的户型和便捷的交通,适合在天河、越秀等核心区工作,注重子女教育和生活便利性的家庭。对于能接受当前交通条件,希望在番禺万博 CBD 置业的刚需或改善型购房者来说,是一个值得考虑的选择。

