华润置地天河润府位于天河岐山路,南侧靠近广园快速路,对面是富颐华庭,北侧紧挨珠江花城,前身是广物吉山仓库,属于吉山板块。
天河润府项目占地11万㎡,建筑面积19万㎡,容积率为3.68,项目划分为两个地块进行开发,北地块有四栋楼,南地块有八栋楼。
项目这次首推的北地块,即将上新面积约90㎡~115㎡~130㎡等等主力户型。
目前城市展厅已对外开放,最快12月开放营销中心。

小区配套:天河润府项目还打造了一个人与城市共生息的社区,作为献礼天河的时代审美作品。
华润置地天河润府根据当下客户新审美、新消费、新观念的需求,在未来社区邻里活动中心迭代升级成了属于新家庭的“学习盒子”。

未来社区邻里活动中心更像是为城市居民留白的一处“自家后院”,可以跟朋友畅聊,与友邻社交,可以让孩子们一起学习,一起成长,可以锻炼、挥汗、跳普拉提。
甚至可以什么都不做,找一张舒服的沙发,喝着咖啡,晒着秋日的暖阳“浪费时间”。
为片区居民升级了日常休闲的空间,为片区、为城市留下更好的烟火人情。

交通配套:天河润府项目周边广园快速、珠吉路、科林路等交通要道贯穿,与地铁4号线黄村站、5号线鱼珠站直线距离均为3公里,为天河少数地铁真空地带。
项目是靠近岐山路,项目开发将加速交通的优化调整,珠江花城最为头痛的交通问题也将得到改善,根据岐山路的改造规划,这条路将拓宽成双向6车道的茅岗路北延线。

商业配套:天河润府位于天河黄埔交界地带,周边目前大型商业等配套较少,不能满足片区日益增加的居民购物需求。
天河润府项目规划有公交站场和商业用地,南侧的物流仓库搬迁时间不确定。
三甲医院中山六院天河分院,以及天河区儿童公园全在区域内,只能算是天河的配套。
教育配套:项目配建有1所9班幼儿园,1所36班九年一贯制学校,但教育集团、落成时间、移交时间等家长关心的核心问题仍是未知数。

天河润府规划12栋32层住宅,主要为两梯五户设计,将首开2、3、4栋。
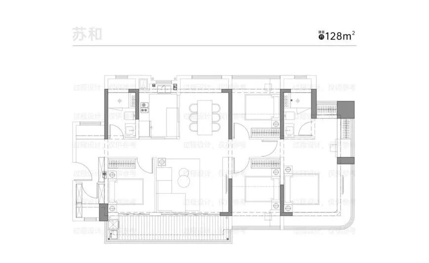
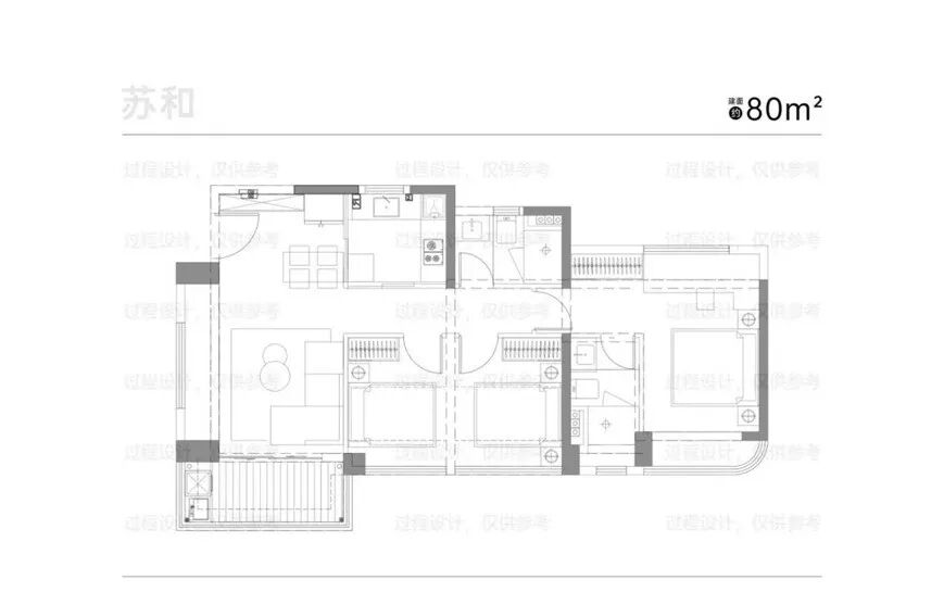
户型选择比较丰富,从刚需到改善,其中涵盖80㎡三房两卫、87㎡三房两卫、112㎡四房两卫和128㎡四房两卫等4个户型。
户型就不放了,网上很多,项目展厅也很多。

在这个面积段里,它整出了约80平的三房户型,约87的三房户型、约112平的A\B四房户型、约128平的四房户型等,下面我们来逐一分析。一眼看户型图:全明屋,采光面很足,阳台、餐客厅、卧室都有较大的开窗率。厨房和公卫等公共空间和卧室都被走廊隔开,比较科学,能减少噪音影响。进门直接面向餐厅和厨房,私密性略打折扣,但后期可用软装调整,厨房为推拉门设计,有中岛,餐厨空间相对开阔。
客厅设置凹面墙,甚至还增加了一面窗,主套间入门可设置一整面的墙柜,更设置了两扇窗户,其中一扇还是L型的,保证采光。

约87平的三房户型,整体会比80平的户型略优一些。毕竟它把厨房、公卫、主卫等空间分布在房子的一侧,另一侧设置了卧室,即休息用的空间,整个动静空间做了更细的规划,这样,噪音的影响会更小一些。此外,我们也分析一下一些设计亮点。进门左侧有一个空间,看起来可以放置柜体,另一侧可以做连片的墙柜,增加储物空间,竖厅设计,比较通透,卧室同样有两扇窗,还有270度的采光。

约112平的四房A户型,整体格局有点像约87平户型的放大版。不同的是,这个户型得房率比较高,能容纳三代同堂的家庭,景观阳台连通了其中一个次卧,整体面积更大。值得一提的是,靠近客厅的次卧可以融入客厅,做成大端厅,空间更加宽敞,主套间依然延续了270度采光的设计,采光充足。

而约112平四房的B户型有点不同。进门设置了L型玄关,私密性较好,餐客厅均有窗户,可形成对流,主套间有两扇窗户,采光充足,同时也有足够的位置设置一个衣帽间。

约128平的四房户型,亮点也不少。除了配置了玄关,增加私密性,还设置了小型储物间,提升收纳的空间。
客卧,次卧和主卫独立,主客动线非常分明。餐客厨实现一体化,景观阳台的面积更大,视野更豪横。
主套间设置了大L型的开窗,采光、尺度感比较充足,另外还设置了L型步入式衣帽间。

华润置地在广州落子的又一标杆人居项目,凭借项目自身优越的地理位置、对城市发展脉络的遵循以及对美好人居的尊重,华润置地决心将项目打造成为板块的人居品质"天花板"。兼顾美感和功能的全维舒适产品,让每一个空间节点都是心境转换之地,同时通过仪式感的公共空间,让每一次归家都成为舒心之旅。

