天河的新盘,向来备受瞩目。
近期,随着华润置地拿下吉山仓地块以及世界大观黄云路地块挂牌,联投文津府的热度亦有所提升,项目趁热打铁,在7月已开放建面约140㎡的样板房,目前正在诚意登记中。
联投文津府隶属于奥体板块,位于珠吉路以东、吉岐路以北,项目所在地块是去年10月广州第三轮集中土拍中,湖北联投以底价321118万元拿下的广园快速以北、珠吉路以东AT1005011、AT1005019地块,也就是天河沥青搅拌厂地块。当时,这块地的楼面价是38992元/㎡。

这是湖北联投进入广州的首个项目,因此公司还是比较花心思,项目自身亮点不少,比如主打低密改善,容积率只有2.7,周边绿色资源丰富,三面被小山坡所环绕,不远处就是珠江花城。

根据规划,联投文津府项目将建设7栋住宅,一期为5栋23-24层塔楼;二期2栋10-24层板式建筑。产品上,首推建面约108-165㎡四至五房,吹风价8万元/㎡。(具体以项目方公布的数据为准)
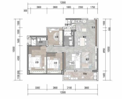
来看下户型。
建面约108㎡3+1房户型,客厅十分宽敞,阳台的宽度更是将近6米,唯一不好的是公卫门对着客厅。

建面约128㎡的四房单位,阳台更宽直接做成8米,同时采用客餐厨一体化设计,打破空间局限,更适合改善型家庭。

建面约140㎡的四房单位,有南北两个阳台,主卧比128㎡的主卧要大,其他三个次卧倒是差不太多。

建面约165㎡4+1房户型,观景阳台就有8.8米,房大厅大,居住舒适度就不说了。

值得一提的是,联投文津府紧挨执信中学(天河校区),按照往年执信中学天河校区的招生方案来看,项目大概率在其招生范围内。不过,具体招生方面信息,要以教育局公布为准。

