星汇海珠湾是一个大型综合体,涵盖住宅,公寓,商业,公园等业态,又靠近江边,他的定位很明显,就是错位的轻休闲商业。
目前,星汇海珠湾主推E区临江公园铺,以及C区建面约25-225㎡临街准现铺。
而且星汇海珠湾商铺约5-6米的层高空间,可以做的事情太多了。
在卖的时候仅作一层计算建筑面积,日后可以自由改造为两层空间,将平面空间转换为立体空间,空间大,可改造性强。

E区可以做餐饮(C区约6成),本身配置有燃气、消防设施。
目前,市场上各种消费类型层出不穷,但是“吃”依旧是消费者*为重要的需求。
在电商当道的今天,许多业态商铺都显得萎靡。
而餐饮类商铺,常常是人气很高,经营状况也比较好。

消费人群:
*,星汇海珠湾有配建3.6万㎡市政公园。
第二,广纸、味精厂旧址,这些广州的老厂,未来都是要像TIT一样进行改造的,会是新文艺打卡点,晚上散步的居民,附近的年轻人,都会被吸引过来。
很简单,这里有公园到江边,老人要不要下来带孩子散步?要不要去江边跳跳广场舞?年轻人晚上要不要去特色商业街约会一下??有人流,就一定有商业需求。星汇海珠湾附近5万人左右,纯居民应该是能养活商业的。

总结:
*:一间小商铺200万左右,*付100万,租金按照1万2计算,*率达到6-7%,已经到比较高的水平了。假如你有点闲钱,放在银行收益低也跑不过通胀,买个铺作为恒定的资产,长远收租也不是不行。
第二:星汇海珠湾商铺依靠市政公园、打卡点,从商业规划的设计来看,还是能是聚拢附近的居民客户的,商铺全部都是餐饮铺,比较适合搞奶茶店、轻食店等年轻人喜欢、潮流的小型商业。

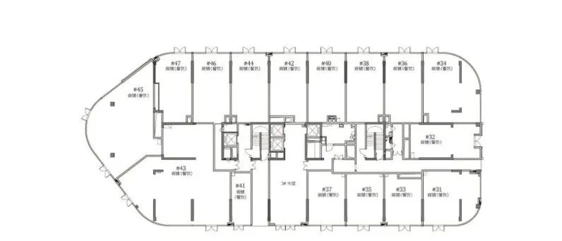
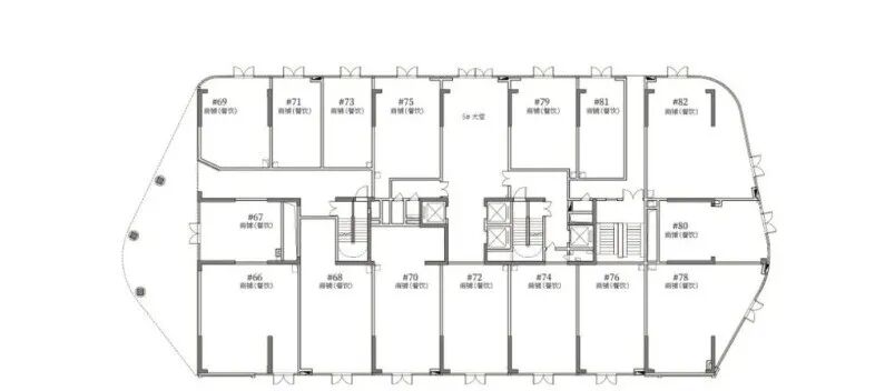
商铺·户型品鉴
C3栋商铺平面图

C4栋商铺平面图

C5栋商铺平面图


