推荐,2009年的次新房,天河北板块,宏景台,原装电梯房,100平方,2+1房,带华阳本部小学学位直升广州中学,学位不占用,证过5年不*,产权清晰,装修保养好,看房提前约,售950万。












宏景台位于信诚南街21号,由广州信城房地产开发有限公司规划和开发,于2005年建成,是紧挨华阳本部较新的小区之一。

宏景台于2005年开盘,2005~2006年交房;2005年4月记录的开盘价为8200元/平方米,当前二手成交均价为106901元/平方米。
宏景台于天河区信成南街21号,教育、医疗、商业等公共配套资源十分完善。
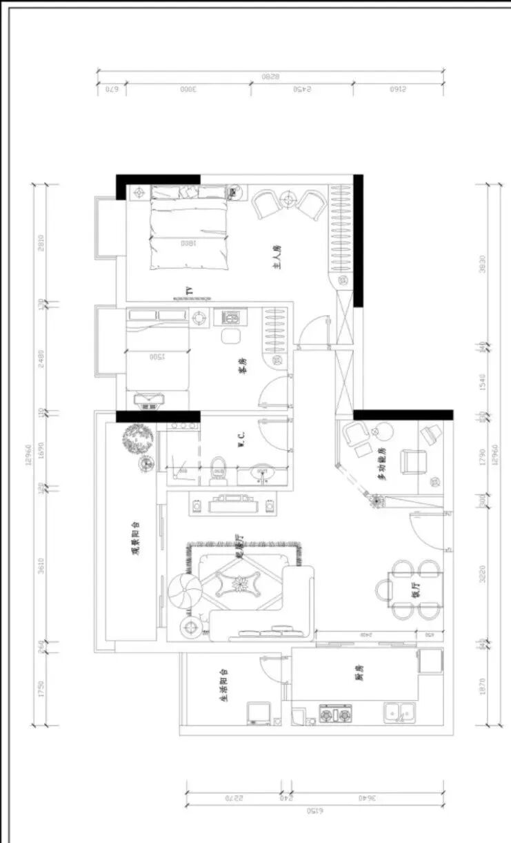
优点方面:以大三房(129-149平方米)为主,兼有92平方米的两房投资户型,距华阳本近且楼龄相对新,全部户型为2~3阳台的通透设计。
缺点方面:部分户型为暗卫设计,采光一般。
市场方面:当前市场成交均价为10.7万左右,挂牌价方面,均价在11~13万之间。
