*近的金融城和琶洲红到没边。
10万、15万、20万!销售单价不断刷新高。
如果我现在告诉你,有半价买入片区的机会,有兴趣吗?
金融城新盘,广州城投·天赋壹号项目位于金融城*片区,可以一线望江,产品为建面约335-605㎡的大平层。

这个项目不是住宅,但这不是它的问题,毕竟整个金融城*区都几乎没有住宅在售了。
它周边的珠光金融城壹号以及即将入市的鹏瑞1号,都是商办类产品,且叫价不菲。
对标深圳湾1号的广州·鹏瑞1号也已面向少数VIP客户开放城市展厅,设计建面约380-500㎡,吹风价30万+/㎡。
珠光金融城壹号的产品会更丰富些,设有不同面积段的loft、叠墅、大平层,其中新推出的叠墅均价已经突破20万/㎡。
另外合景臻溋名铸虽有部分是住宅,但前段时间刚成交的1.7亿房源同样是商业大平层。

目前广州城投·天赋壹号的具体价格还没有输出,有网友猜测说是7-13万/㎡。
如果能以这个价格买入金融城地段、南向望江的大平层房源,那真的是很笋了。

琶洲南TOD项目前段时间就已开始为商办单位的销售进行预热,现在具体的户型户数也出来了。
新的组团叫做琶洲南TOD·72公馆。
设有72户商业大平层,户型建面约140-230㎡,预计3月底推售。

从效果图来看,组团进行了退台设计,*层带花园,顶层为复式。
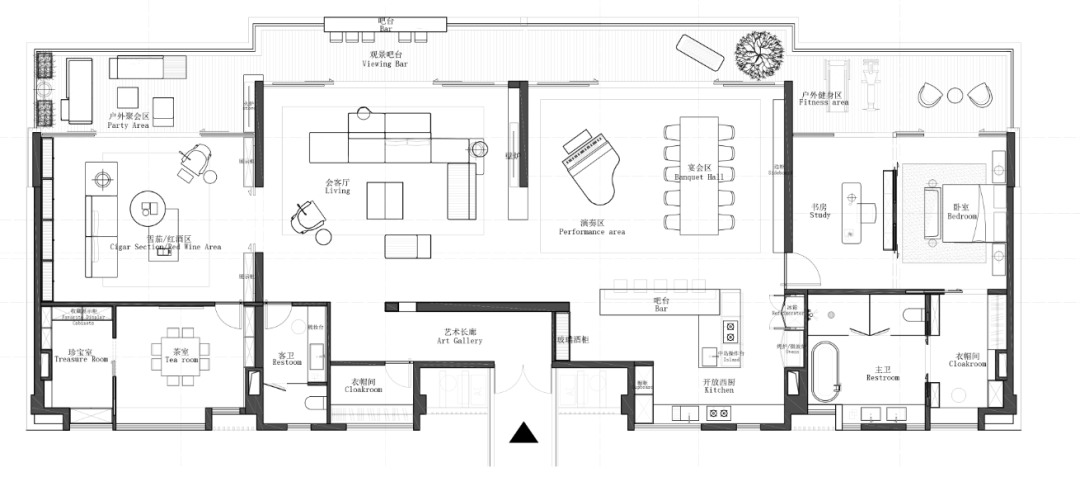
户型图我也拿到了些内部资料。
和住宅不一样,它的功能很丰富,这也是它*大的亮点。比如,可以买两套打通为会所:

可以办公:

也可以纯粹用作住宅:

琶洲南新一期住宅的价格大致在12-15万/㎡范围内,这批公寓目前还未输出具体价格,但吹风售价只要住宅的一半,这有多抵,想必大家都知道。
编辑部有位新来的同事,每次提到“商办”“公寓'等字眼都如临大敌,我们在群里讨论的时候他都对一切相关产品都进行无差别扫射,反复强调不能买、买了必后悔。
但我一直不认同他的想法。
因为买公寓的人可能会后悔。
但买豪宅公寓的人却不一定。
在寻常认知里,公寓客户要么是房地产刚需客,被房价挤压,买不起普通住宅,但求一瓦遮头;
要么是没有投资经验的房地产小白,有点小钱,希望通过物业*和租金收益盈利,但自身抗风险能力较差,一旦投资失败就无法翻身。
事实是,商办大平层的客户和两种群体完全南辕北辙。
他们有钱,并且是那种行有余力的*有钱,能承担风险,商办产品只是它们资产配置中的一个方向。
再直白点来说,人家赚钱的渠道很多,房子只是一个玩具罢了。
相比住宅,我觉得这群人其实更适合买商办产品,*少有三个理由:
1、商办单位不限购,想买就买,并且想买几套买几套,这才有了买一层打通做会客厅的方案。
自己有闲钱可以买,也可以给老爸老妈或者儿子女儿买,就这么潇洒自如。
2、商办产品设计方面受到的限制更少。
比如琶洲南TOD,它的住宅户型已经算是广州在售豪宅户型中设计得比较前卫的了,但你还是可以从中感受到一些传统户型布局上的桎梏。
比如一边一侧的两个主套,分区表现相对明确的客餐厅。

但是琶洲南TOD·72公馆的户型就自由很多,基本属于怎么爽怎么来,三个卧室还全部连通露台,传统户型设计忌讳的居住隐私和互相影响,在这儿都不是事儿。

如果说琶洲南TOD的住宅户型是彬彬有礼的富二代,那么琶洲南TOD·72公馆的户型就是满脑子新潮想法的华裔ABC。
3、商办产品的地段会相对更好。
这点在金融城感知会更明显,从规划层面来看,一线南向望江的地段基本上都是商业商务用地,合景·臻溋名铸是东区*一个拥有住宅用地的项目。
具体的原因咱们姑且按下不表,反正往后看,这种地段已经不可能给住宅了。
换言之,想买好地段,只有看商办。
建立在这种前提下,我认为广州城投·天赋壹号和琶洲南TOD·72公馆是值得买的。
地段好,设计好,价格也只要住宅的一半。
不止是它俩,目前市面上在售的商办大平层,都仍有庞大的市场。
广州人可以买,湾区客可以买,全国的有钱人兴之所*,也都可以来上一套。
如果你看了这篇文章也有所心动,千万别忘了一切的大前提:
你得是个有钱人,并且是那种行有余力的*有钱。

