广州城投琶洲公馆是位于琶洲新港东路608号,即地铁8号线新港东站D出口约120米直达。
项目傍依一线江景,与珠江新城、金融城隔江相望。
项目将海绵城市、绿色建筑三星等标准以及国际潮流和岭南文化特色融入设计,定位打造为甲级商务写字楼。

广州城投琶洲公馆项目是集办公、会议、展贸、物流、餐饮等复合功能于一体,配备多功能智能化楼宇控制系统、三层通高空中花园。
其中还有2200平方米无柱化创新型总部商务空间等,创造低碳、绿色、多元、健康舒适的办公新体验,建成后将打造为*地标商圈琶洲会展区域又一新地标。

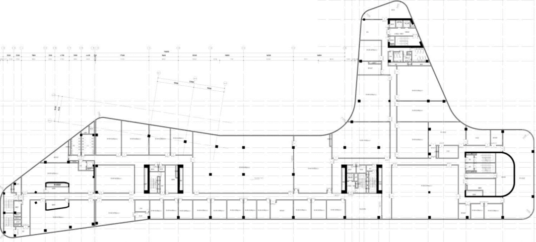
广州城投琶洲公馆项目总建筑面积109,113.80㎡,总层数16层(地上14层,地下2层)。
目前在推的是面积约300~500m²智慧总部、约300~500m²行政平邸、约1500m²*江景大平层。

交通配套:项目紧密接驳外围阅江路,科韵路,交通便利,离新港东地铁站约150米,距华南快速干线新洲出口约1.4公里。
地处琶洲核心位置,五维立体交通路网,与珠三角城际琶洲支线、港澳客运码头等市中心核心交通枢纽紧密相连随时随地串联粤港澳大湾区商务生活圈。

商业配套:项目拥有*特色餐饮商业,但目前琶洲西区缺乏大型商业配套,日常消费主要依赖对面新港商厦的底商,远一点可以去到惠海商业街、琶醍啤酒文化创意艺术区。
但新港东会与琶洲南TOD有机会连片开发。
打造“两区四功能”:国际会展及互联网功能配套区、岭南水乡特色生态区及会展配套、创新设计、文化休闲、生态居住四大功能。
未来规划打造广州塔-琶洲*商圈,坐享*繁盛配套。

仅45席,极少数人专属臻藏单位
当然,如此稀有的项目,注定只属于极少数人。 琶洲公馆仅45席限量单位,面积涵盖约338-1586平,全部是大户型、大平层。






这种产品让多少CBD豪宅也遥不可及,但同时也意味着,门槛立在那里。
这种风景,只为极少数人存在,却是大多数人一生的仰望。

珠金琶黄金三角加速缝合 能挤进这个圈层的,也只有*人物。
在广州,亿万身家的高净值人群成百上千,45席,不到其中的百分之一。 还有比这,更限量的珍藏吗?
明恒获悉,琶洲公馆即将全球盛启。
