华润置地万博悦府将在9月初开放营销中心,位置设在18号线万博站E出口处。未来将主推建面约98㎡三房以及124-142㎡四房住宅单位,吹风价约6-7万/㎡。
据了解,项目位于番禺长隆万博板块,临近18号线万博站,商业还将引入万象系商业,关注度较高。

华润天河润府将首推靠里面的008地块,即配建的36班九年一贯制学校东侧地块,规划4栋高层蝶式塔楼,配有1所幼儿园。
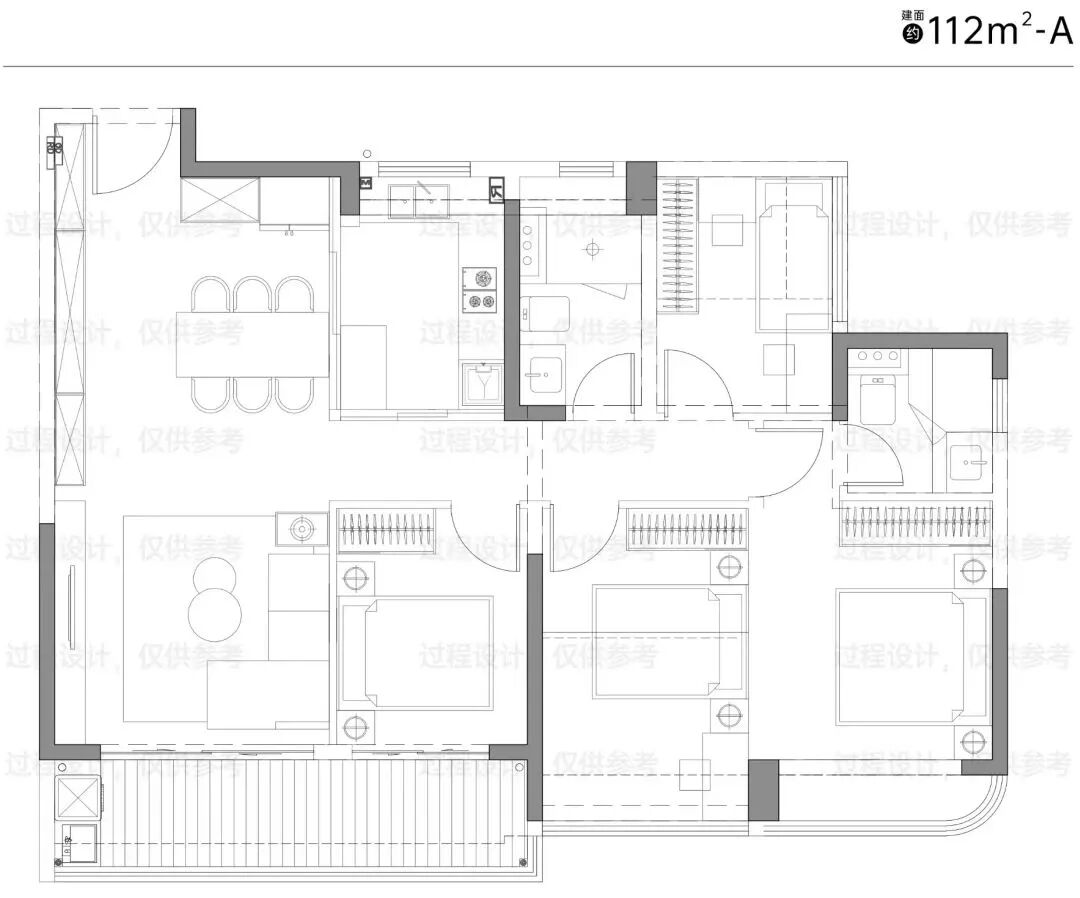
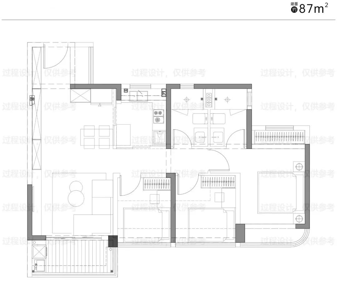
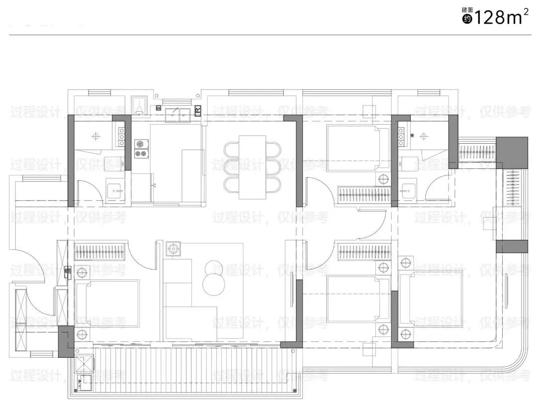
住宅每层5-6户,包括建面约80-128㎡纯南向三至四房,户型设计过程稿图已曝光,可以先看看,后续出街的正式版可能会再调整。
建面约80㎡、约87㎡的刚需小三房带主套,整体格局有相似之处,都是4面宽采光+LDK一体化,客厅旁的次卧可融入LDK空间变身超宽敞方厅。

当然,小户型的重点还是飘窗,两个户型的客厅电视墙、卧室等都有部分飘窗,主卧还是南北双飘窗,拓展室内空间的作用明显。

建面约112㎡户型分成A、B两种设计,其中A户型就是建面约87㎡单位的放大版,但多了一个次卧,阳台也加长贯通到客厅隔壁房间。

B户型配有独立转角玄关,屋内私密性有所提高。南北对流直厅,全屋超多飘窗拓展空间。
主卧双飘窗,可利用这是明亮梳妆台+L型衣帽区。

建面约128㎡户型空间再升级,入户玄关处多了一个储藏室,提升收纳能力。
客房与其余卧室分离布局,客人和业主家人动线错开。
主卧L型景观飘窗,可以有270°广角采光和视野。

楼盘总结
我们总体来说,随着华润置地长隆项目的面市,整个长隆-万博板块都将得到很大的提升:
第一:核心地段的顶级产品,一流的开发商操刀,无论投资自住,长隆华润悦府都值得长期持有。想买万博但之前错过和樾府的,可以重点考虑华润项目。
第二:万象系商业的进驻,以及项目对面即将开业的K11 SELECT,也会为片区带来新的*商业,满足周边new money业主的消费需求。
第三:长隆-万博将真正实现连片发展,毕竟长隆欢乐世界将升级为开放式主题乐园,并且和项目联动打造成*消费中心,类似成都太古里、北京三里屯这样的超级IP街区。
第四:项目21班幼儿园+72班小学+36班初中的教育配套,将补齐片区的教育短板,不过也要华润的公告,是否会引入名校。如果只是普通学校,同样的价格下,市中心不少次新房选择面也很广,没必要非要跑到番禺。

