近日,华润在长隆举办了一场颇为盛大的品牌发布会,透露了华润天河润府即将在9月2日正式开放营销中心。
目前我们从项目开放的临时展厅现场物料来看,华润天河润府也有小户型产品,届时将会成为中建天河精诚壹号的超强劲敌。

天河润府占地面积超过7万㎡,除了有住宅用地,还有教育和商业用地。
项目规划了12栋32层住宅,主要为两梯五户设计,将首开2/3/4栋。
而体量这么大的项目,户型选择也是比较丰富的,从刚需到改善都有,其中涵盖了80㎡三房两卫、87㎡三房两卫、117㎡四房两卫和128㎡四房两卫等4个户型。
其中一期住宅约有1800户,如果我们参考珠江花城现在的新房价格,未来预计将不用花500万就可以入场。

交通配套:天河润府地段很偏,位居天河的边缘,从项目走几步路就甚至就是黄埔。
整个片区离地铁比较远,为天河少数地铁真空地带,从项目黄村地铁站距离有约4km,需要公交接驳。
19号线、37号线规划是有意向会途经这里,但是毕竟都是远中期的规划,目前来看,至少10年内都是没有办法开通的。

教育配套:项目将配建9班幼儿园、36班学校。
据了解项目未来很有可能引入与“体育东教育集团”同等级别或以上的天河名校,未来更将进一步加强珠吉与牛奶厂板块的教育资源。
未来,项目所在的珠吉板块将与牛奶厂板块连成一线、打成一片。

商业配套:项目周边的商业短时间内主要依赖小区底商及周边楼盘商业,隔壁小区就是华润万家、里享时光已开业,麦当劳已签约。
而且天河图书馆茵德分馆也即将开馆,基本可以满足街坊们的生活需求、服务需求、休闲娱乐需求等等皆可以得到解决。

总结楼盘缺点:第一点:公共交通的缺失,需要完全依赖自驾出行,规划中的远期19号线,不用抱有过高的期待。
地铁这东西,即使开建都有延期的风险,何况还是在规划中。
因此小区的居民,在未来很长的时间内,都要接受公共交通不便的缺点。
第二点:目前小区周边的业态,依然是物流运输仓储业为主,这也意味着城市界面环境一般,货车横行。
小区南向会受到广园快速噪音的影响,同时货车经过扬起的灰尘,也会导致小区住户入住的时候,擦桌子的频率要高一点。

第三点:小区周边缺少商业配套,社区商业如果要形成规模,还需要时间。入住的头几年,会有买东西不便利的问题。
第四点:我们总的来说,如果小区定价在6W/㎡左右,喜欢大品牌开发商新房产品的人群,是可以考虑的。
未来天河东大概率会形成一个有居住氛围,有品质,纯粹的改善型住宅区。

户型品鉴
目前所知的户型面积约80~143㎡三至四房。
最小户型80㎡三房
天河润府占地面积超过7万㎡,除了有住宅用地,还有教育和商业用地。
其中住宅分两期开发,一期住宅户数约1800户,相当于隔壁珠江花城的3分之一。

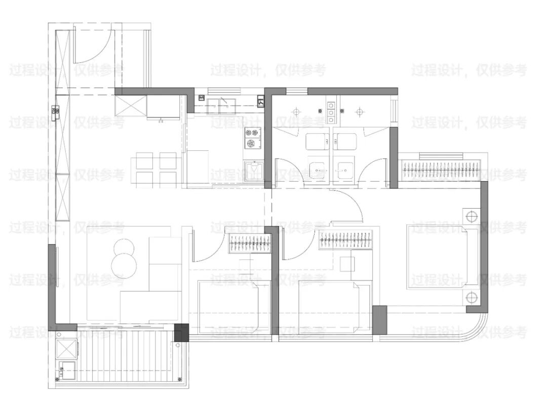
具体来看看户型设计,80㎡三房两卫户型,入门处做了玄关设计,半开放式厨房,配备了岛台(交标不确定有没有)。
这个户型的亮点在于客厅位置做了飘窗设计,销售告诉我,飘窗属于赠送面积,相当于增加了实用面积。
另外,主卧做了南北对流设计,但我觉得没什么卵用。
因为其中一面飘窗以后入住通常会用来做衣柜,做多一面飘窗只是为了偷出更多面积。

80㎡户型属于项目的入门户型,朝向会差点,是北向户型。
想要南向户型,只能选87㎡以上的户型。
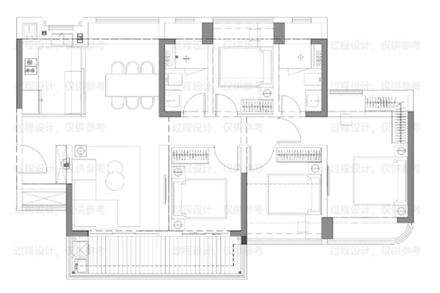
87㎡三房两卫户型整体的设计格局跟80㎡户型差不多,主要的区别在于87㎡户型比80㎡户型多了一个入户位置,带了一面飘窗。

87㎡三房两卫户型
又是送的,你懂的。
另外,87㎡户型是四开间朝南,在通风和采光方面秒杀80㎡户型,这个户型大概率会是跟珠江花城硬刚的主力户型。
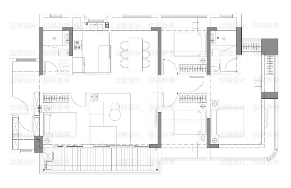
112㎡四房和128㎡四房是改善户型,都做了南北对流设计。
相比珠江花城在售的横厅大户型,我觉得天河润府的大户型会更受市场欢迎。

112㎡四房两卫户型

128㎡四房两卫户型
不过,户型可能还会有变动。销售告诉我,目前的户型图只是过程稿,会根据客户的需求来进行优化改进。
可以肯定的是,天河润府的户型将会对周边的二手房市场造成很大的冲击,尤其是距离不远的牛奶厂板块和三溪板块。
如果价格再便宜点,对竞品也会有不小的冲击。

