天颐华府位于广州市番禺区中心板块,踞位番禺广场TOD枢纽上。
于南沙自贸区以及珠江新城CBD国际金融商圈做到南北相通。
是成功连接珠三角核心区,属粤港澳大湾区地理中心,占据了一定的地理优势。

天颐华府城央129栋纯墅、7500㎡私家自然中心湖景。
8色成熟园林32种景观变化、容积率仅为0.53。
低调奢华,专注打造一个仅属于*圈层的私密纯别墅社区。

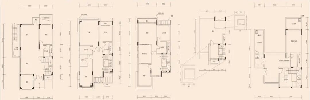
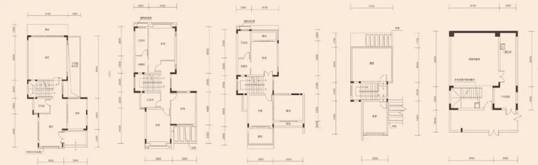
联排别墅面积约262方,花园约50~100方,双下沉式庭院全明采光。
双拼别墅面积约312㎡,花园约100方左右,豪门大户的家族居所。
独栋别墅面积约392㎡,花园200㎡左右,仅10栋墅王,户户一线湖景,每一栋都是时代的珍藏品。

而天颐华府,作为*的理想居所,秉持着对于低密健康生活的追求。
在这里,能体验到纯别墅低密度社区的私密性,还有融入社区的健康生活理念,更有专门打造的五大健康人居系统。

小区坐拥环绕7500㎡生态自然湖以及品种丰富的花卉园林,足不出户就能享受4A公园级别的静谧与新鲜空气。

同时,社区里还有配套泳池,网球场,篮球场等运动场所,在这里,相拥悠闲和健康生活。

商业配套:从项目出发番禺广场千亿级区府市政配套,永旺梦乐城等标杆商业配套。
市桥商圈,番禺成熟商圈,易发商业步行街老牌*消费地,番禺宾馆
万博中心,万达广场,海印又一城,番禺天河城、山姆会员店等成熟国际化城市配套。
长隆欢乐世界,钟珠江新城,享受城市CBD国际生活圈万象繁华。

医疗配套:石碁人民医院傍西分院(一级甲等),周边有番禺中医院、 市桥医院。

教育配套:优质教育学圈,小学拥罗家桥虹小学、傍西小学、石岗小学等众多教育资源,中学拥省一级番禺市石碁三中、石碁第二中学、广东第二师范学校番禺附属中学、番禺实验中学,更有媲美美国硅谷的大学城教育圈。

交通配套:三横:富怡路、市莲路、亚运大道
五纵:新光快速、华南快速、南沙港快速、番禺大道、京港澳高速
四地铁:地铁3号线,18号线(预计今年通车)、22号线(预计今年通车)、17号线(在建)番禺广场交汇站
公交:公交16路、27路接驳市桥地铁站,番19接驳番禺广场,番23路到达石基。

【E户型】262㎡联排:堪比主流双拼别墅,使用面积近500㎡,性价比首选。

【CⅡ户型】312㎡双拼:豪门家族大宅,使用面积近600㎡,惊艳珍藏巨作。

【A户型】391㎡臻藏10席奢豪纯墅
一线湖景*,实用面积1043㎡,使用率约270%,顶级奢墅著作。

天颐华府怎么样?值不值得买?

