位于越秀区的城投东园公馆获批169套住宅,合计2.13万㎡。
广州城投东园公馆项目体量不大,只有8470㎡,规划4栋21-23层的住宅(其中一栋为回迁房),将推出建面约91-178㎡三-四房,吹风价12万元/㎡,价格仅供参考,以实际为准。

资料显示,东园公馆项目较为袖珍,占地面积仅8470平方米,规划了4栋21-23层住宅,整体容积率达到5.8;其中,南端的4#住宅为回迁房,其余3栋则为商品房,均为塔楼设计,户型以91平方米-178平方米的三-四房为主,总货量仅249套。

广州城投东园公馆项目位于越秀南路与万福路交汇处,毗邻地铁6号线团一大广场站,一站抵达海珠广场,二站到东山口。

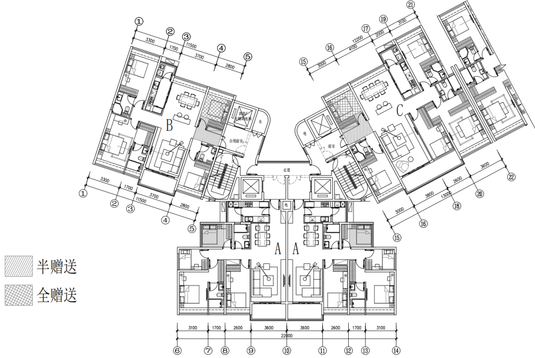
1#共有5个户型,户型偏向改善型,5梯5户,每户实现专梯入户,其中:
A、B是对称四房户型,建面在129平左右,空间设计中规中矩,没有当下豪宅流行的客厅连接次卧的超大阳台,但胜在赠送面积多,其中一个房间赠送一半面积,实用率都是84%;
C户型,建面约87平三房两厅一卫,客厅开间3.2米,是整个小区小的户型;
D户型,建面约98平三房两厅两卫,没有赠送面积,实用率只有78%;
E户型,建面约129平四房两厅两卫,客厅开间3.6米,是5个户型中*宽敞的,其中一个约8.4平的房间面积全赠送,这个户型会很抢手。


2#和3#两栋相连,每一栋楼均设计为4梯4户,每户可实现专梯入户,共有4个户型,其中A是两个对称户型,其中:
A户型,建面约129平四房,客厅开间3.6米,公共卫生间旁边的卧室赠送一半面积。
B户型,建面约143平四房,客厅开间3.7米,入户右手边房间基本是全赠送,所以整个户型实用率去到了89%。
C户型,建面约178平五房,入门右手边是一个次套房,左边是几乎全赠送的房间,整体空间感阔绰,客厅开间4.1米,主卧开间3.6米,阳台也是9个户型当中*大的,开间去到6.4米,实用率到达到90%。

对于品质的追求,东园公馆这个地段可以说是没啥硬伤的,一分钱一分货,也有人说老城区老破小不愿意接受等等,看个人选择吧。

