近日,位于广州南站板块的越秀·星寰TOD推出10套特价单位,低楼层建面约115㎡四房总价393万元起,单价约3.4万元/㎡。

据了解,越秀·星寰TOD项目在3月加推建面约92-115㎡三*四房,均价4万元/㎡,价格仅供参考,以实际为准。
如此看来,目前10套单价约3.4万元/㎡的特价单位,的确比较诱人。
项目是越秀地产在2021年*次集中供地中以总价97175万元(+23亿元建设成本),折合楼面价21819元/㎡收入囊中的谢村地块,位于广州南站立交东侧,汉溪大道以南,靠近地铁7号线谢村地铁站。

星寰TOD这个盘一经推出,争议颇多,*重要还是看楼盘与自己的需求是否相匹配,更何况只有不能买的价格,没有不能买的房子。
项目分两部分开发,北区4栋,南区9栋,共13栋楼,属于中型社区,个人比较喜欢这个规模的社区,既能支撑起一定规模的配套,又不会因为人太多而感到拥挤。

越秀星寰TOD位于番禺区汉溪大道7号线谢村站旁(约300米),就单凭这个地理位置必定会收获一大片好评,因为项目就位于地铁7号线谢村站旁,是现在打工人都梦寐以求的地铁盘。从地图上看,越秀星寰TOD左边是广州南站右边则是万博*,拥有着如此地理*的楼盘,怎会不心动。
项目左侧的广州南站,是粤港澳大湾区的重要枢纽,南站在2025年更会迎来配套的高光时刻,集“大商圈、大总部、大商旅”聚集的发展高地。右侧的万博CBD是世界旅游区和*商区,越秀星寰TOD就处于两大CBD的交汇处!

交通方面:星寰距离7号线谢村站300米,3站到万博,7站珠江新城,20-40*通勤半径内可以覆盖珠城、琶洲、广钢、万博、番广区府等日常活动区域。

星寰TOD项目共分为三个分地块,除了需要配建18幼儿园和2班托儿所的地块外,其它两个地块均建设有住宅。
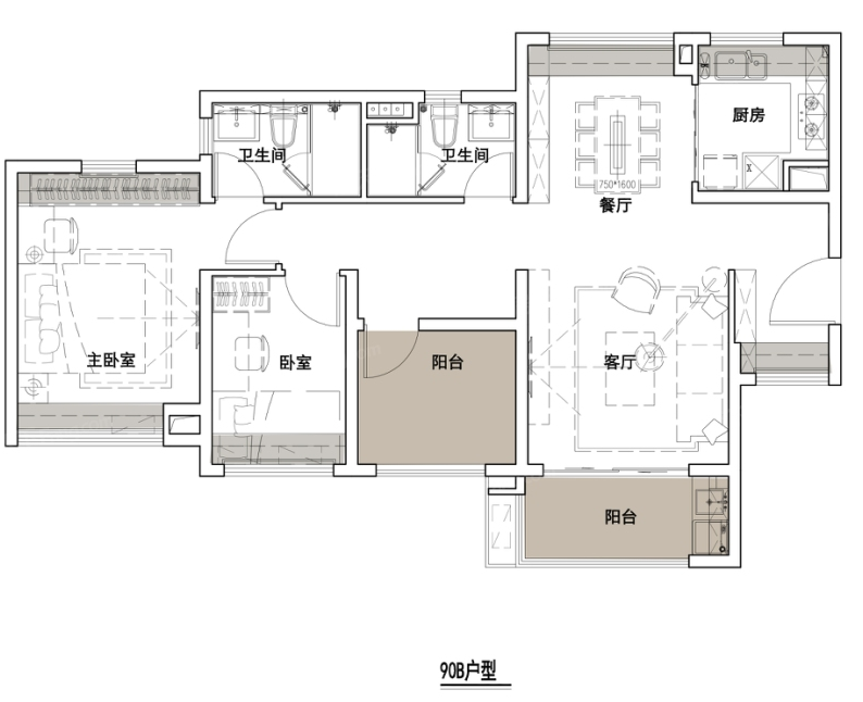
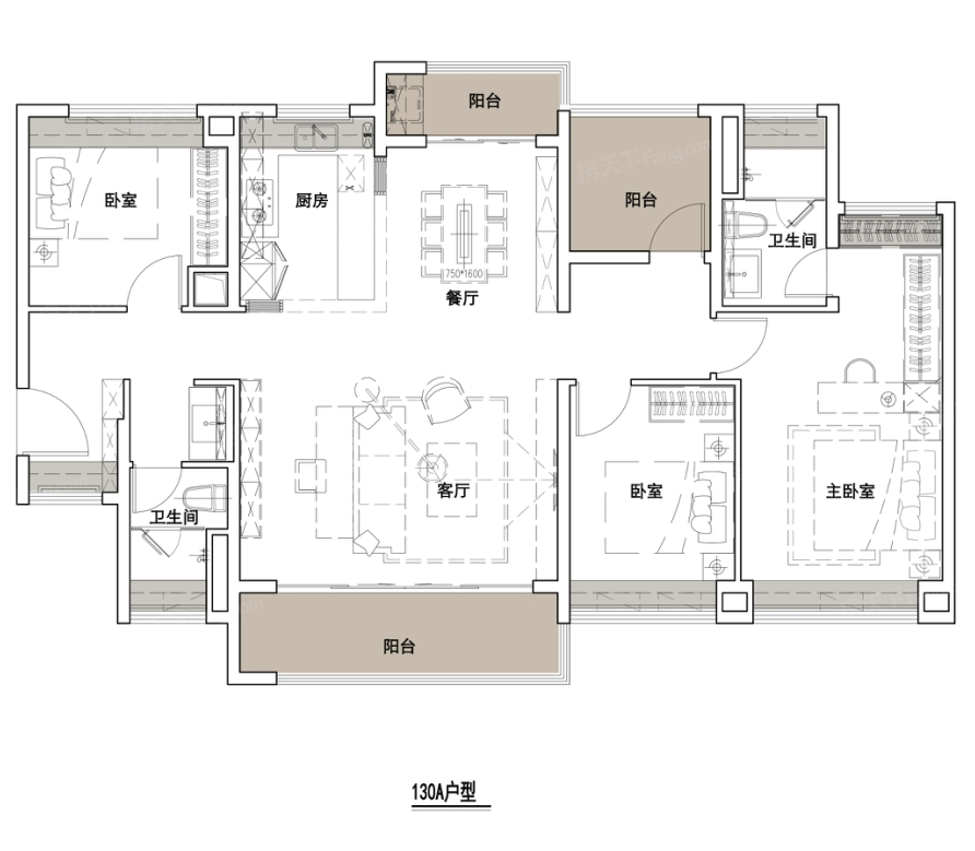
星寰TOD项目目前推出5个户型,面积涵盖90到133平米。
90平米分为AB两个户型,基本空间结构一样,主要是入户位置和厨房的位置有所不同。A户型是典型的竖厅设计,一进门旁边就是厨房。

主卫和客卫都坐在了一侧,这样的话主卧还有一个窗口,实现了主卧的南北通透。
建面约90-95平三房,户型不大,却做到四开间朝南,采光和通风优秀,且是主套设计,带独立卫浴。



110平米的户型结构和90平米的类似,多了一个卧室,阳台同时连接了客厅和卧室。

建面约112-115平四房,除了四开间朝南,更做出约6.5米大阳台,带来巨幅采光,观景效果也震撼。



建面约133平的四房,舒适度更棒,南北双阳台,实现对流,主卧套房面积达到约25平,尺度奢阔。

越秀·星寰TOD*
1、距离地铁540m,通勤方便,40-50*以内可到珠江新城和琶洲;
2、总价不高,跟周边有一二手倒挂,350万左右就能上车南向三房;
3、户型优秀,92㎡可以买到南北对流,四开间朝南。

