广州的豪宅市场就已经“蠢蠢欲动”了。
近日,位于天河区的侨鑫·保利·汇景台部分楼栋开始收筹,据悉备案价已经突破了14万元/㎡,远超2021年广州新盘*高10万元/㎡的备案价,这引发了人们对新房限价是否将要松绑的猜测。
不过,广州住建局很快回应称“会一直严格实行住房价格指导,但楼盘备案价是根据周边楼盘情况实施动态价格指导,没有设置专门的价格红线。”
换句话说,新盘的备案价是具备一定灵活性的,并不存在之前一直传闻的新盘备案价不得突破10万元/㎡的规定,而这或许将极大带动各豪宅盘入市的积极性。
那么,在今年广州预计都会有哪些豪宅会亮相?亮点好房编辑盘点了部分关注度较高的项目,“不差钱”的土豪可以提前关注起来了~
天河
豪宅遍地开花
作为新晋“*”,天河的奥体-牛奶厂板块今年预计会有2个豪宅盘入市,分别是合景·臻颐府与合生缦云。
其中,合景·臻颐府便是由天河区*高楼面价地块——奥体公园北侧地块转化而来,楼面价高达51463元/㎡。项目紧挨逸景路,北侧与帝景山庄和合生缦云一路之隔,东侧紧靠华润天合,周边有地铁21号线途经。

广州住建局官网显示,项目已于上个月底成功领证。根据市场消息,项目规划有17栋7-11层小洋楼,户型以197-350㎡大平层为主,吹风价在12.5-14万元/㎡之间。
合生缦云则由合生创展开发,项目位于合生帝景山庄别墅区内,与保利天汇紧紧相邻。据了解,项目将推出142-258㎡三*六房大平层,吹风价同样高达10万元/㎡。

金融城板块今年预计也有2个项目入市——合景臻溋·名铸和珠江天力。
合景臻溋·名铸位于黄埔大道东,在2019年初,合景泰富以封顶价37.06亿元+自持55%拿下该商住用地,地块楼面价8.3万元/㎡,是金融城*宗宅地。项目将建成4栋住宅楼和3栋商业楼,南向一线江景。据亮点好房编辑了解,项目户型涵盖185-350㎡大平层,吹风价高达20万元/㎡。
合景臻颐府
在售珠江·天力是由珠江投资、合生创展、合生商管集团共同打造的项目,紧挨着骏景花园,与天朗明居隔着一条马路,距离4号线车陂地铁站约600米,项目共规划了5栋住宅楼。项目主打大户型产品,面积段涵盖125-180㎡,货量并不多,仅有580套(踩盘回顾)。
侨鑫保利汇景台
在售
另外,天河区的冼村旧改项目和前文提到的汇景台项目关注度同样不低。
冼村旧改项目由保利操刀,其位于珠江新城*区东侧,冼村路以东、黄埔大道西以南,金穗路以北。在去年9月公示的规划图上,项目的回迁区共有21栋住宅,除F-31建54层、F-32建55层外,其余19栋住宅均为32层。据业内人士猜测,项目吹风价将突破20万元/㎡。

冼村改造效果图
汇景台紧邻科韵路和规划中的汇景北路东延段,项目由14栋12层小洋楼组成,共408户,主推建面约123-352㎡三*五房。近期项目的01、02、03、14栋开始收筹,均价约14-15万元/㎡。
越秀
越秀南项目一枝独秀
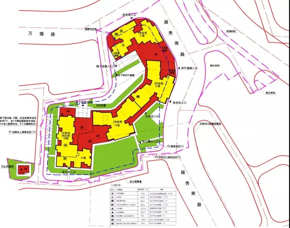
与豪宅遍地开花的天河区相比,越秀区的豪宅供应相对*,今年预计仅有一盘入市。不过,该项目含金量十足,其便是广州史上楼面价*高的越秀南地块项目。
在2020年3月,广州城投以总价23.5亿元,楼面价64576元/㎡夺下越秀区越秀南AD13907地块,突破6万/㎡的楼面价记录*今无人能超越。据悉,该项目案名已定为广州城投·领越壹号。
项目位于东濠涌和越秀南路西侧,万福路南侧。根据此前披露的规划图,项目由4栋21-23层的住宅构成,另外,项目还规划有100㎡老年之家、1440㎡幼儿园、200㎡居民健身场所、200㎡文化室等配套,可谓麻雀虽少,五脏俱全。从地块*性和楼面价来看,项目价格大概率也将突破10万元/㎡。

海珠
国央企项目展开角逐
在去年年底,位于海珠琶洲的招商保利·海珠天珺突击开盘,虽然8.4-9.2万元/㎡的售价并不低,但200多套房源依然秒光,奠定了海珠豪宅市场的*基调。
在今年,海珠那些登上广州楼面价*10的项目预计将会陆续入市,如中海拿下的石岗路地块和江泰路地块,以及保利拿下的天斯地块项目,另外,由越秀操刀的琶洲南TOD项目同样关注度不低。
据亮点好房编辑了解,其中,石岗路地块在2021年2月由中海以总价220873万元+竞配建450㎡竞得,折合楼面价50526元/㎡,目前项目案名已定为中海观澔府。项目位于原广东轻工机械厂旧改片区内,地处海珠西部,靠近在建的10号线大干围站,广佛线和地铁10号线换乘的石溪站也在附近。据悉项目将主推88-124㎡三*四房(地块详情)。

江泰路地块则于去年广州第二次集中土拍被中海以总价23.72亿元拿下,折合楼面地价45176元/㎡。地块位于海珠西南部,北*江泰路、西接江南大道,靠近2号线江泰路站。周边配套较为成熟,*不足便是与变电站相邻(地块详情)。

天斯地块位于海珠区中部,北侧及西侧临华洲路,南侧及东侧临石榴岗河,邻近在建地铁18号线和11号线的换乘站——石榴岗站。在广州2021年第三次集中供地中被保利以底价383562万元拿下,折合楼面价44372元/㎡,跻身广州楼面价第8位(地块详情)。

琶洲南TOD,实际上便是赤沙车辆段开发项目,据悉备案名已定为“品越华府”。项目东侧紧挨华南快速路,北侧一河之隔就是琶洲西区;靠近在建地铁12号线赤沙站以及11号线赤沙滘站。项目所在地块由广州地铁在去年2月以823430万元底价夺得,折合楼面价36255元/㎡,后引入越秀联合开发。

从公示的规划图来看,项目规划有16栋超高层住宅,*高44层,并配建有12班幼儿园和36班九年一贯制学校。据悉,该项目会在2022年中旬入市,产品涵盖125-265㎡四*五房,备案价预计会在12到13万元/㎡之间。
荔湾
白鹅潭价值显现
在前段时间,华夏幸福退地的消息闹得沸沸扬扬,引发了人们对项目,乃*整个白鹅潭板块发展前景的担忧。但同时,白鹅潭今年入市的依然不乏单价突破10万元/㎡的项目,也算是侧面印证了板块的价值。
像是今年年初开放营销*的广州幸福湾,是广州医药港项目的住宅配套,其毗邻珠江,江对面便是中海观澔府。项目规划有7栋住宅和1座幼儿园,吹风价达到10万元/㎡,光是看房验资便要100万元。

星河荔湾金桥项目位于广州荔湾区芳村大道西以北,临近地铁5号线滘口站,北侧临江。2020年12月,星河在经过26轮竞价后以总价243370万元竞得该项目地块,成交楼面价为33613元/㎡,据悉该项目案名已定为星河江缦。
在去年10月,项目已经有4栋住宅(自编号4-7#)及1栋公建配套(自编号8#)规划获批,住宅层数在27到30层之间。其他配套则包括家庭综合服务*、居民健身场所、文化站、日间照料*、星光老年之家、社区居委会等。

另一个江景项目——广船璇湾壹号也于年初开放了*新样板间,该项目具体位于芳村大道南广船一期地块,东临珠江,与广钢新城一路之隔,跟广纸新城隔江对望,总建筑规模达到约125万㎡,包括住宅、商业、写字楼和*酒店(踩盘回顾)。

白云
白云新城“巨无霸”将入市
既然提到豪宅,白云区有区域房价“天花板”之称的白云新城板块自然也不会缺席。在2022年,富力·富云山和粤海·云港城两个巨无霸项目预计都将入市。
其中,富力·富云山由白云山麓的陈田村旧改脱胎而来,旧改专家富力操刀,项目总投资超过100亿元,总体量近200万㎡。
资料显示,项目内部规划有超50万㎡的*旗舰综合体、7所学校,坐拥10大住宅组团+5大商业组团+2大教育组团+1个*会所+1个社区花园,是目前白云新城新盘中配套*为完善的一个。

另一个巨无霸项目粤海·云港城则是粤海在去年9月以总价1018748万元,折合楼面价20133元/㎡拿下的白云新城云港城地块,超百亿的成交价也让地块跃升为2021年广州土拍市场总价之*。

在不久前,项目的整体规划图已经获批。项目总用地面积116471㎡,由三宗小地块组成,其中住宅区规划有9栋住宅,*高36层,另外两块小地块则主要是商业用地,未来将建设成为集金融、科技、航空、地产等为一体的总部集聚区和*商业综合体。

在去年广州新盘整体遇冷的情况下,豪宅市场却走出独立行情,异常火爆。根据相关机构数据,广州2021年*豪宅共成交3466套,创下历史新高,同比2020年上涨了73%。
在今年,广州豪宅还能继续*下去吗?
如果还想更加了解广州,或者了解广州相关的楼盘项目,可以关注【亮点好房】小程序,我们会为您配置一对一的本地置业顾问,免费为您制定置业计划!


