华润置地天河润府,为天河吉山仓项目,在9月开放正式展厅,最快年底入市。
据了解,项目整体规划12栋32层住宅,分两期开发,首推一期的2、3、4栋,两梯五户设计,户型涵盖建面约80-128㎡三至四房,纯南向,吹风价约6.5万元/㎡,而华润置地·天河润府隔壁就是珠江花城,参考均价约6-7万元/㎡。
配套方面,未来小区会配建一所幼儿园以及一所36班的九年一贯制中小学,自带2万㎡的社区商业。

据了解,项目案名定了,叫天河润府,项目效果图、首开户型图和价格我也给大家摸到了。
天河润府规划12栋32层住宅,主要为两梯五户设计,将首开2/3/4栋,建面约80-128平的三至四房。

我扒来的户型图,都是新鲜出炉的内部过程设计稿,后续可能会有调整,给你们解个渴先。
具体来看看户型设计,80㎡三房两卫户型,入门处做了玄关设计,半开放式厨房,配备了岛台(交标不确定有没有)。
这个户型的亮点在于客厅位置做了飘窗设计,销售告诉我,飘窗属于赠送面积,相当于增加了实用面积。
另外,主卧做了南北对流设计,但我觉得没什么卵用。
因为其中一面飘窗以后入住通常会用来做衣柜,做多一面飘窗只是为了偷出更多面积。
80㎡户型属于项目的入门户型,朝向会差点,是北向户型。

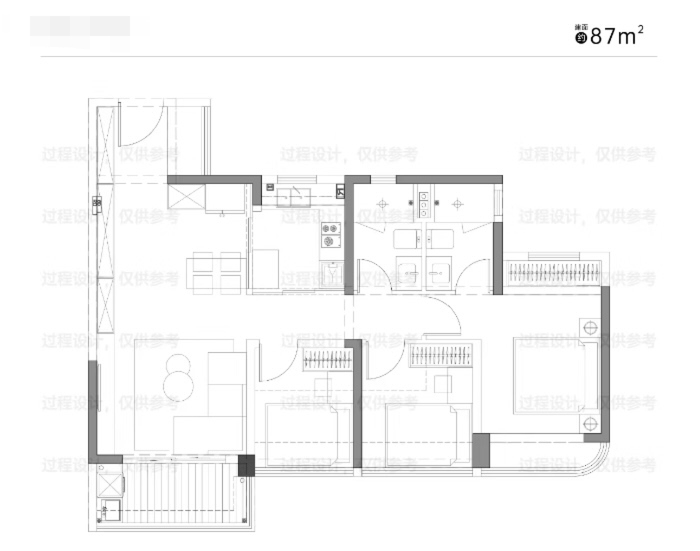
建面87平三房两厅两卫:
可以看到,整个户型实现四开间全部朝南,其中客厅开间就接近4米,采光通透满分。
另外,客厅还预留了充足的储物空间,小户型也能有大收纳。

建面112平四房两厅两卫:
112平,有AB两个版本。
我最喜欢的是B户型,典型的南北对流。

客厅和隔壁房间阳台打通,如果把中间隔墙拆掉,客厅开间可直接扩宽到6米+,竖厅秒变大方厅,居住舒适度更棒。

项目最大面积段128平4房,也在首开中出现。看得出来,华润很懂,在天河搞大户型,无异于在狼群中抢食,南北对流只是基操。

华润天河润府位于天河东部,广园快速路以北,岐山路以西,前身是广物吉山仓库。
项目虽然位于天河,但地段其实不算好。距离黄埔只有一路之隔,属于两区交界的地段。
根据规划,项目需要修建一个公交场站,以及将岐山路拓宽为双向6车道的茅岗路北延段,直接连接广园快速路。
另外 ,项目还会配建一所36班的九年一贯制学校,可能会引入名校资源,作为项目的加分项。
值得一提的是,项目还预留了一块商业用地,未来可能会建大型商业中心。
总的来说,如果小区定价在6W/㎡左右,喜欢大品牌开发商新房产品的人群,是可以考虑的。未来天河东大概率会形成一个有居住氛围,有品质,纯粹的改善型住宅区。

