今年4月,荔湾花地街羊城食品厂地块开拍仅4秒就被送入摇号,在广州土地市场引起了不少关注。
当时地块出让的时候,吸引了超20组房企报名,还没开拍就已上演“神仙打架”,最终被武汉城建收入囊中,总成交价193045万元,折合楼面价约3.22万元/㎡,溢价率15%。

拿地没多久,坊间就传出武汉城建要与保利联手开发该项目的消息,虽没公开,但保利一系列的宣传海报,早就透露出双方将要合作的端倪。如今等了那么久,终于有动静了。
目前项目展厅已开,但板房和售楼部还没建好,据说或将在9月开卖。(具体开盘时间以开发商公布为准)
同时,从传出入市消息到现在,项目案名也几经更改,从“保利花语和岸”、“广州保利和煦”再到“广州和著美苑”,吊足了市场胃口。(仅供参考,项目实际案名以开发商公布为准)
而项目展厅,就开在荔湾芳村的立白中心一楼。从地铁1号线芳村站B1口出来后,不用过马路,沿着道路向北走大约400米右转(百度地图数据),就能看到。
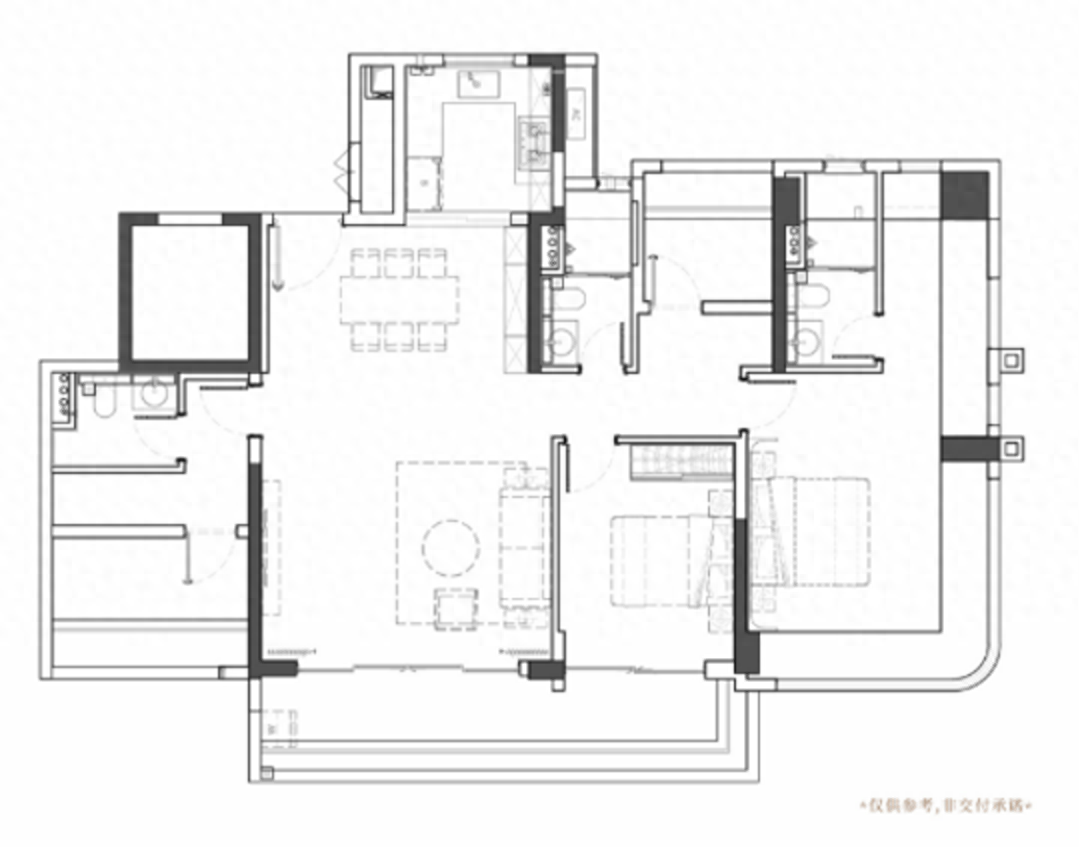
据此前得知的消息,广州和著美苑项目将推售建面约85-142㎡三至四房,这一点也从销售口中也得到了证实。(户型图仅供参考,以开发商最终公布为准)
建面约85㎡三房两卫:

建面约115㎡四房两卫:

建面约135㎡四房两卫:

以及建面约142㎡四房三卫:

根据规划,广州和著美苑项目拟建6栋住宅,1所幼儿园及部分底商,还有文化室、小区游园、居民健身场所等。
其中,住宅方面,1A#和1B#层高均为31层,分布在园林西侧;2#住宅17层,在园林北侧;3A#和3B#住宅高为32层,位于园林东侧,与1#相对;4#住宅为5层,在项目东北侧。

销售称,这个项目的实际得房率,或将达到100%!虽然这两年,广州市面上的楼盘都在卷得房率,80%、90%以上的都有,但100%的还非常罕见。
项目展厅虽设在了立白中心楼下,一路之隔,就是华润置地白鹅潭悦府,但过去项目还是有一段距离。
如果还是从地铁1号线芳村站B1口出发,途中会经过在建的华润置地白鹅潭项目工地、醉观公园、广州市荔湾区康有为纪念小学等。

广州和著美苑项目地块位于花地河畔,自带一线江景,环境很是不错,河边经常能看到有老大爷在钓鱼。
同时,由于地处老城区,广州和著美苑项目周边相关配套较为成熟,除交通、教育外,商业医疗等也一应俱全,如花地好邻舍商业中心、广东省中医院芳村医院等,生活氛围相对浓厚。
从当前现场来看,项目正在如火如荼地施工建设当中,运输车辆进进出出,工人们也都在忙碌,大门口还有“武汉建工”的标志。
目前,地块周边新房有华润置地白鹅潭悦府、新世界凯粤湾、保利锦上印、力诚榕诚湾等,参考单价5-10万 /㎡不等。二手方面,房子楼龄较老但价格不高,如兰兴苑小区,二手房参考均价约2.6万元/㎡;丽和华庭参考均价4.4万元/㎡等。
至于这个项目的价格,销售表示会参考周边新盘。按照保利高要求的产品调性,相信项目入市会让人眼前一亮。

