天麟府瑧林坐落于天河CBD城芯地段,覆盖“珠金琶”黄金三角,特享优越臻熟配套,作为天河公园板块唯一在售一手豪宅,“*”二字早已跃然纸上。
项目最大卖点在于景观,除了东向300米直面天河公园外,高楼层可南向眺望琶洲CBD。
可以说,单是景观资源,天麟府臻林就有它自己独特的竞争力。
天麟府瑧林,1号楼、2号楼已经交房,现在售113~172㎡的3/4房,价格大约1700-2580万/套,相当于单价约15万/㎡,213㎡的户型已经售罄。

交通配套:亚洲最大地铁站——天河公园站,21号线、13号线、11号线三地铁交汇,又把城市资源虹吸过来。
21号线串联起智慧城、科学城、长岭居、知识城多个重要产业组团。13号线贯通东西,连起第二CBD、金融城、天河公园、珠江新城、淘金等片区。大铁环11号线,则是唯一的主城区环线,重要性*。

教育配套:幼儿园:项目附近有华港幼儿园、天府幼儿园、熹园幼儿园、天晖幼儿园等公立幼儿园。
公立幼儿园在满足配套小区人户一致业主子女后,剩余学位以摇号或排队的方式给非本小区业主子女入读。
无法入读公立幼儿园的业主,可以选择附近的私立园区,如英国*幼儿园等。

小学:值得注意的是,和前几期介绍的几个小区不同,瑧林对口小学不是天府路小学,而是黄埔大道南面的华融小学。
从瑧林到华融小学,需要从天桥跨越黄埔大道,步行600米,10分钟内可到。

中学:对口学校是广州市第一一三中学(金融城校区),学校创办于1978年,现有五山、东方两个校区。
学校先后获得国家环境教育示范基地、广东省级学校、广东省绿色学校、斯巴鲁生态文明学校、广东省健康促进学校、广东省档案综合管理特级单位、广东省现代教育技术实验学校、广东省校本培训示范学校等荣誉称号。

医疗配套:小区北面步行(驾车)800米就是东晖社区卫生服务站,感冒、抽血、B超等小型检查科目可以在此就诊。
南方医科大学附属第三医院是一所集医疗、教学、科研为一体的三级甲等综合性医院,瑧林到南医三院大约1200米。

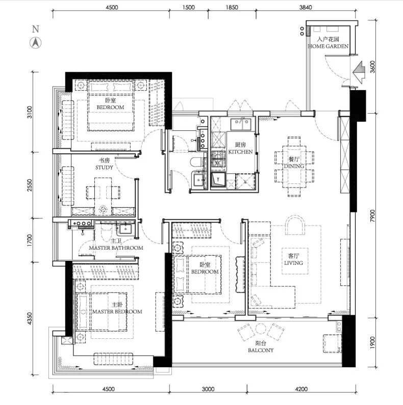
户型1:172平方四房*户型
格局:4房2厅,总建筑面积约172m²,景观阳台东向,生活阳台和主卧套间、次卧套间为南向飘窗。

户型2:142平方豪华四房
格局:4房2厅,总建筑面积约142m²,景观东台东向。
点评:本户型带入门花园,可以当生活阳台使用,而且和玄关相连,归家仪式倍增;“景观阳台--客餐厅--生活阳台”连成一线,东西朝向,早晒晚晒,采光指标爆表。
但也会造成夏天室内比较热,通风条件也比不上南北对流的户型;主卧是带衣帽间和独卫的套间,私密性好,L字型的飘窗,夹角刚好是东南,窗户打开正好让夏季风吹进来。
书房和客厅共用阳台,直面无敌的天河公园景观,赏心悦目;两个次卧飘窗开在西面,容易西晒,是本户型的遗憾。

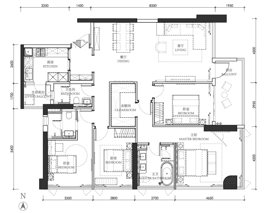
户型3:136平方轻奢四房
格局:4房2厅,总建筑面积约136m²,阳台南向。

虽然板块二手价格不低、13-15万/平的臻林小面积在天河板块有竞争力,但高于2000万/套就有了更多选择。
对于14万+/平的天河现楼豪宅,你怎么看?欢迎评论区留言。

