在孤独感充斥着的都市里,在人潮汹涌的地铁里,在两点一线的工作日里,我们期待着生活更丰富的模样。
然而很多时候,距离、精力、时间,限制了我们的想象,困住了我们的步伐。
艺术设计、运动健身、潮玩收藏、微醺角落、音乐舞蹈、烘焙手作......这些当代年轻人热爱并追逐着的元素,可以就在家门口实现吗? 答案是:可以。——ing 未来印。

项目由天泓地产携手侨鑫集团打造。
项目则携手社群运营专家——未来社。
借由未来社对城市青年的洞察和对潮流生活方式的见解,让项目得以践行“创新、年轻、多元化、包容”的项目理念。
ing未来印推出建面约25-45平的精致小户,以低总价上车天河。

交通配套:天河智谷紧邻珠江新城-金融城-琶洲组成的广州金三角区域。
未来车陂路北延段开通,从项目一脚油门即可直达广州金融城,让广州两大热土实现连片发展。
此外,地铁4号线、21号线和19号线(规划中)汇聚于此。其中,地铁19号线智谷东站(规划中),便在项目旁边。
借助得天独厚的区位和畅达的交通,未来,科学城、珠江新城、广州金融城等广州*板块的密集人流、资金、消费力,都将交汇于天河智谷。

商业配套:我们很难把ing未来印归为商业体或者综合体,而更像是一个属于年轻人的生活载体。
项目自带商场发展商自持运营的超4.3万方商业综合体。
南区打造为传统的商场模式。在其中,年轻人日常可以在生鲜超市中采购美食,在巨幕影院中约上好友共赏大片,或者在自带恒温泳池的健身室中,做“刘畊宏女孩/男孩”。

除了这些ing未来印项目自身配备的硬件设施,更多的可能性,是这个载体之上,所有年轻人可以一起去探索的。
在打造为街区式商业的项目北区,将汇聚艺术工作室、艺术手作坊、文创坊等文创艺术业态。
在之后,或许从中孵化出一个摄影、艺术社团,约一场篮球赛、电竞赛,组一个露营旅游团,无论是新潮、热爱、探索或是冒险,都是这里的年轻人可以自己发现的无限可能性。

小区规划:ing未来印项目自带屋顶花园、空中步道、艺术树池等布置,自身便是一处网红城市公园。
踏青、散心,不再是周末远行才能享受到,而是闲暇时,就可以在项目内放松身心,拥抱绿意。

医疗配套:项目周边有中山大学附属第六医院、广州市中医院、天河区第二人民医院、国际妇儿医院共4家三甲医院。
周边教育:虽然公寓产品和学位没有太大关系,但项目周边可以提及的学校确实不少,有广州奥林匹克中学,中海康城小学、广州思源学校、广东体育职业技术学校和中国人民警察大学等等。
户型品鉴

建面约25㎡LOFT产品,面积小,总价低,但各项功能一应俱全。

建面约30㎡LOFT产品,上下均可容纳办公、卫浴、起居等功能。

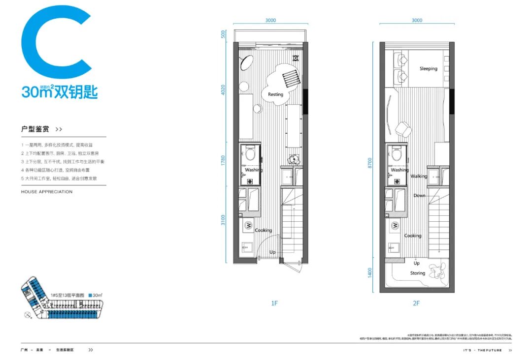
建面约30㎡双钥匙产品,则堪称投资、出租“神器”。

建面约37㎡LOFT产品,约4.5米的挑高中空,让室内拥有更阔绰的空间感和采光。

租赁:值得一提的是,项目周边面积相当的产品,发现这里的租金收益相当可观。
例如距离项目约580米的天健汇,建面约36平(平层),租金大概去到3500元/月。
同板块的万科云城米酷,建面约32平的跃层产品,租金约4500元/月。
同时,ing未来印项目还有包租,其中的2栋36-54㎡的户型,会由发展商专业酒管团队托管返租,面积在50㎡以下的户型每月返租4000元,50㎡以上户型每月返租5000元。
