荔湾的城更做得越来越好,也逐步兑现了。从广钢的改造成功,到万科广信包的花地湾,再到现在沿江的开辟,荔湾的城市界面越来越好,也将会是广州各区里面*快出效果的。

荔湾是明牌,以后会继续涨的,看好荔湾,买入就是现在。
今天说一说总价范围:280-500万,该怎么在荔湾选房!
泛广钢、大坦沙及周边,相对而言不在规划的*区,但是可以蹭周边的资源,配套可以满足自住,项目客群锚定刚需客。
代表项目:广钢花城、保利和悦滨江、力诚榕诚湾等,对于刚需客户来说,会更关注这三个性价比项目。
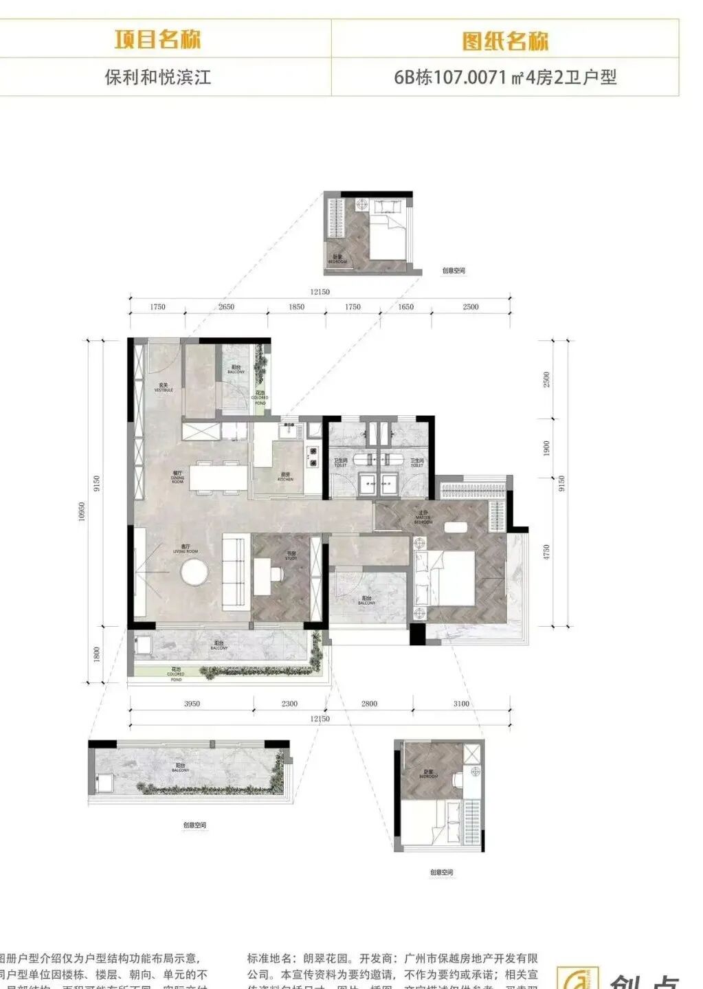
保利和悦滨江
项目一共8栋,目前*开的6A6B栋已*,1A1B栋还有一点余货,以天地楼层为主,其中107㎡货量稍多。

目前具体的总价段如下:
74㎡三房1.5卫 290-310万(无货)
80㎡三房两卫 340-350万
86㎡三房两卫 350-360万(无货)
107㎡四房两卫 460-470万(还有选择)
目前价格和开盘相比,已经涨价了,并且回收了长分期的政策,现在2个月就要交齐*付签约。上周末加推了2#启动认筹,交2万的诚意金,新楼栋推出,项目吹风还要继续涨价!在城区荔湾+有能走到的地铁+靠近广钢+价格性价比高+户型也不错=市区一个性价比自住盘,所以项目关注度一直是不错的。
刚需客户*在意的通勤,项目距离1号线、广佛线、22号线(在建中)、10号线(在建中)西塱地铁站直线距离约600米,当然步行要绕一下,走路大概是十*左右,还是可以接受。

旁边的城市面貌一般,但是项目配套较为成熟,三公里范围内有西塱小学、省实、真光等学校,但是上哪间就看当年招生政策和摇号了。
保利和悦滨江这块地不便宜(2w多),3.8起也是贴着成本在卖,也就保利越秀这种领头房企做的到。
这个定价,我觉得太牛了,拳打鲁提辖,脚踩镇关西的感觉有没有?
虽然是芳村,但这还是荔湾区啊。
270多万上车荔湾,即使老广州人听了,震撼力也十足吧。
*先,这个定价,把买不起金域曦府的客户吸来一波,然后阶梯向下继续抢客保利越秀天启、广钢花城。
这还没算完,计划300w买荔湾、海珠,甚*天河老破小的朋友们,是不是都可以来看看这个南向180度河景、地铁步行15*、荔湾第10组、还有1.5个卫生间的刚需小区?
怎么着也比没有地铁、水压不足、停车位欠奉的绝大多数老破小强吧?
而且买菜巨便宜,就连天河的师奶团都组团来西塱农贸市场买菜,你说咱妈以后要给你们来做饭的话,看到这个菜市场不得乐疯了,菜价比老家还便宜。
广州还有第二个这样的盘吗?
你别说,还真有一个,保利和悦滨江在广州西边,另一个在东边,也衬的起“不逐浮云不羡鱼,杏花茅屋向阳居”这句诗。
产品是项目的主要亮点,74㎡三房1.5卫,用了大量飘窗、花池、阳台的位置,使用率很强,是很多上车家庭的选择。




项目还没推售的仅剩4栋楼,按照保利的速度,可能今年就会卖完。
珠实·广钢花城
作为和悦滨江的头号竞品,广钢花城着实是被卷到了,所以,一起加入价格战,买家渔翁得利。目前在售2、3#,67-87㎡三房四房产品,符合珠实同等面积及多一房的定位。

配合珠实的“春笋计划”活动,现在有6个月*付分期的政策,对于目前手头上资金比较紧缺的同学会比较友好。
目前广钢花城价格如下:
2栋67㎡三房一卫 270-290万
2栋87㎡四房两卫 370-380万
3栋67㎡三房一卫 300-315万
3栋87㎡四房两卫 390-400万
其中3栋较2栋价格更贵,同楼层同面积高25-30万
一是规划有广钢新城TOD,未来10号线将途经于此,此外,还规划有九年一贯制学校,补足区域的教育短板。

二是周边村落都有旧改的计划,未来更新后,片区的城市面貌会升级。
产品还是做得很*,装标也配备了洗碗机、双层中空隔音玻璃等等,国企背景,用材用料都比较实在。

力诚榕诚湾
力诚·榕诚湾项目(19号地块),是茶滘旧改项目继力诚·欣悦湾(4号地块)后又一个融资地块,位于茶滘旧改地块西南侧,总用地面积约5.2万㎡,总建筑面积约22.5万㎡,规划约1500套住宅,主力产品为85-168㎡二*四房。

项目共有8栋住宅和1栋商业楼。其中,19-1、19-3、19-6住宅有32层,19-2、19-8有46层、19-7有43层,19-9和19-10则高达48层,而商业楼宇有2层。

项目主推85-168平2+1*4房,*推6栋、7栋,位于力诚·榕诚湾靠花地河的一侧,景观不错,但也靠近马路。由于有绿植隔断,往来车辆虽不少,却也没有嘈杂的感觉。

6栋设计为32层,两梯六户,产品分是建面约为85㎡和97㎡的三房。
7栋为43层,两梯三户,产品为建面约138㎡和165㎡的四房。
从产品规划来看,6栋为中小户型,7栋为大户型。
不过需要注意的是6栋旁有个变电站。
从朝向来看,建面约85㎡的05、06单位都是东南朝向,建面约97㎡的03、04单位为西北朝向,01、02单位为西南朝向。
所以,对于刚需购房者来说,建面约85㎡的三房户型朝向更好。其次是建面约97㎡的01、02单位,7栋的01、02、03单位则都是西南朝向。

作为被卷心菜影响的项目之二,力诚榕诚湾上上周调价重新包装开盘,单价3.88万起,价格的确比较吸引本次开盘,推售6#,可望花地河河景。

价格如下:
均价4.1万/㎡
85㎡三房两卫 3.88-4.3万/㎡ 总价330-365万
97㎡三房两卫 4.1-4.5万/㎡ 总价395-436万
项目位于花地河旁,*近的地铁站是1号线、25号线(规划中)花地湾站,但是步行距离2.2公里,无法步行到达。
打车费时13*(非高峰期时段),未来可能开个电动车比较靠谱。
作为力诚茶滘村旧改的*开地块,*大的亮点是景观,*推6栋的97㎡可以做到户户望江,85㎡则看公园。

值得一提的是项目配套一说48班的九年一贯制学校和3所12班幼儿园,虽然学校未定,起码有学校,茶滘村旧改这么大体量,引入好学校会好卖一点。对于有景观需求的同学可以去看看,居住舒适感是有的。
其实这三个盘对比*多的还是保利和悦滨江跟珠江广钢花城了,从成长性看,得益于周边正在推进的旧改,有望连片开发,广钢花城更有看点,保利和悦滨江的增量则是西塱站,四线交汇打造TOC。
保利和悦滨江和广钢花城的产品都较有诚意,将飘窗、花池等能拓展的面积都用了,实用率没得说,飘窗拉大,也保证通风采光。
珠实是近年来*户型的开拓者,标签为“同等面积,比别人多一房”。
相对来说,对于年轻客户的喜好,保利拿捏得更准,比如开放式岛台厨房、主卧L型飘窗、大阳台、次卧和客厅可打通可独立等设计等。
对于喜欢大园林的人来说,保利和悦滨江胜在围合式社区更好;而广钢花城园林不大,胜在周边环境较开阔,交标也较高。
不过保利和悦滨江的整体*会更明显,尤其是还具备了不少改善项目才有的滨水景观。
而珠江广钢花城则有比较突出的户型*,户型的使用率超9成,实打实的让购房者买到更多的实用面积。
三盘来说总结假如以通勤为主要考虑的,可以看看和悦滨江;假如追求今后变量的,可以看看广钢花城;假如追求居住舒适度的,可以看看力诚榕诚湾。
