天誉半岛上新了!
一开始我还有点不敢相信,毕竟天誉半岛一期在2015年1月就已经开盘了,目前一手的产品基本上处于*状态(部分顶复除外),大部分住宅产品早已经流入二手市场。
除非洲头咀公园突发奇想,给你腾出一块新鲜的土地用于开发,不然根本不可能大量的全新的住宅供应啊?
直到同事给我扔来几张图片,我才惊觉,What?居然真的上新了!
而且*新组团的案名也已经出来了——
就叫白天鹅壹号。
产品如何
白天鹅壹号所在的楼栋也就是天誉半岛的A4栋,总层高为30层,约113.4米高,为商业江景大平层。

A4栋各户型的视野大概是这样。
A户型靠近洲头咀公园,景观无疑是*的,无遮挡望三江汇聚景色,沙面岛、白鹅潭以及洲头咀公园,远眺荔枝湾等景区,虽然客厅朝西阳光会相对大一些,但可以看到比较好的晚霞景观。
B以及C户型可望珠江以及白鹅潭一带。
D户型部分高层户型可以眺望三角汇聚、沙面以及文化公园一带,但大部分主要还是望同福西、文化公园一带,部分低层户型会被前面的A3栋遮挡景色。

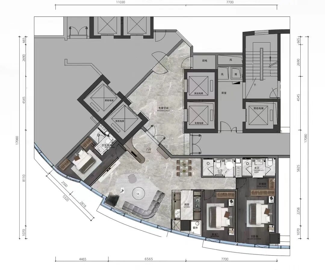
约405平A户型
一梯一户的设计,进门为独立电梯厅和走廊,连接洗衣房,洗衣房与独立的保姆房和司机房连通。
大门做了隔断,明确了保姆、司机和主人的活动范围。
门厅一侧是L型的鞋帽间,个人认为可以采用软装做一个小型储物间,门厅两侧分布了带独立卫浴的次卧以及主套,主套分布了步入式衣帽间以及的双盥洗台、浴缸、独立淋浴,而靠近鞋帽间的次卧也有浴缸以及独立卫浴。
L型的厨房配了中岛,连接餐厅,餐厅一侧还有西餐吧台,客厅的设计像一艘游轮的船头,可以观看270度的江景。
值得一提的是这个户型还配有雪茄房并带独立的公卫,每条动线都互不打扰,可以用作大平层之外还可以打造成私人的会所。

约183平B户型
这个户型同样设计了专属的电梯,进门为玄关,餐客厨做到了一体化,厨房带岛台,客厅一侧还划分了独立的办公空间。主套和次卧分布在不同的两侧,形成独立的动线。
主套和次卧都带有步入式衣帽间,以及独立洗漱空间,主套的浴缸被设在了靠近落地玻璃窗的一侧,可看江景。

约181平C户型
入门即为玄关,厨房为双I型设计,厨房可以设计成开放式。
客卧分布在客厅一侧,带独立卫浴,和主人生活动线互不打扰,主套带三分离的独立卫浴以及衣帽间。

约356平D户型
这个户型的设计虽然也是类似于游轮船头,但与A户型还是有点区别。
保姆房和司机房在玄关的一侧,带独立的洗漱空间,保姆和司机和主人的动线互不打扰。
餐厅和厨房形成餐厨一体,厨房带岛台,客厅两侧分着红酒雪茄吧以及收藏室。
客卧在餐厅的一侧,紧靠进门的过道,带独立卫浴,和主人的生活动线分离。
主套带浴缸以及独立洗浴空间、步入式衣帽间,主套(包括主卫)的观景做到了270的无死角景观面。

卷完住宅
来卷大平层
海珠全新的江景大平层不少,比较标志性的有越秀·天荟江湾天樾组团,面积段约为176-343平,均为南向观江大平层。

另外还有即将推出的琶洲南TOD·72公馆,不过它是小高层带花园的设计,和一般的江景大平层又有点区别。

和以上两者相比,白鹅潭壹号在后航道头排位置,紧贴前航道,可望三江汇聚的片区,江景视野相对较好。
此外,它也脱离了传统方方正正的户型,做了弧形的设计,使得江景面更连贯。
价格方面,考虑到白鹅潭壹号供应也不算多,只有88套,加上前航道几乎没有新的大平层公寓产品出现,目前天誉半岛住宅产品10万+/平,*14万/平,我预计,观景面比较好的,价格10万+/平没跑了,部分低层户型可能会有比较笋的价格。

