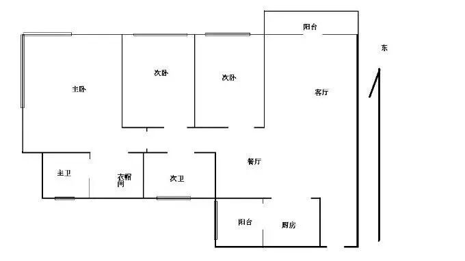
亮点好房编辑看过此房,面积为128㎡,为天河北少有闹中取静户型!
推荐理由:












户型小结及买家预算


更多找房咨询请在你的手机微信右上角搜索处选择小程序后,输入“亮点好房”搜索,即可进入“亮点好房”小程序,即可直接查询到更多的楼盘、房源、资讯……,里面可直接找到专业的房地产顾问进行咨询购房事宜!
如果你还想更加了解广州,或者了解广州相关的楼盘项目!可以点击下图链接进行登记!亮点好房企业会为你配置一对一的本地置业顾问为你解答,免费为你制定置业计划!免费咨询热线:400-832-7668

亮点好房编辑看过此房,面积为128㎡,为天河北少有闹中取静户型!
推荐理由:












户型小结及买家预算


更多找房咨询请在你的手机微信右上角搜索处选择小程序后,输入“亮点好房”搜索,即可进入“亮点好房”小程序,即可直接查询到更多的楼盘、房源、资讯……,里面可直接找到专业的房地产顾问进行咨询购房事宜!
如果你还想更加了解广州,或者了解广州相关的楼盘项目!可以点击下图链接进行登记!亮点好房企业会为你配置一对一的本地置业顾问为你解答,免费为你制定置业计划!免费咨询热线:400-832-7668
对买房有疑问?直接找房产咨询师,量身定制你的个人买房解决方案!
服务热线
400-832-7668
(周一至周日全天)
亮点好房
微信公众号:广州房产之家
Copyright © 2010-2021 亮点好房 All rights reserved.