如今的增城楼市,依旧是买方市场。
因此,对于依然有购房需求的刚需群体,这是个不错的上车时机,可以开始留意、挑选房子了,毕竟这两个月,优惠力度较大,且如今房贷环境良好。
*于增城是否能迎来金九。

保利明玥湖光位于荔湖低碳园西侧。
从新城大道一路过来,可以看到道路两边都是林立的楼盘,项目被N个楼盘包围。
周边价格*低的是珠江博悦庭和华侨城云尚,均价1.9万/平左右。
合景臻湖誉园和华侨城湖岸则去到了2万+。

根据销售透露,项目会参考周边楼盘的价格,大概率会复制水木芳华和*海的营销方法,低开高走,抢占客户。
吹风价在1.7~1.8万/㎡左右。
有被笋到吗?

保利·明玥湖光位于南北大道旁,项目西侧就是华南师范大学附属中学增城学校,北面临近合景臻尚溋府、增城区*中学,南侧是硅谷公园、低碳总部园,位置优越。

荔湖新城片区楼盘、配套分布
项目地块是2021年*次集中供地时广东保利置业有限公司以底价拿下,楼面价约10004.5元/m²,地块占地面积51144.84平,建筑面积约15.34万平。
推出的实体样板间有建筑面积约84m² 2房2厅2卫,93m² 2房2厅2卫,105m² 3房2厅2卫,121m² 3房2厅2卫样板间暂未开放。

保利·明玥湖光项目旁边有公立*——华南师范大学附属中学增城学校,学校将于9月开学。(学校的招生范围和招生政策,以当年教育局公布为准!)

另外,天恩双语学校(第二小区)、增城*中学也在不远处、另外保利·明玥湖光周边正在建设的项目大多也配建了小学、幼儿园,所以这个片区的教育资源还是很丰富的!
保利·明玥湖光附近还有低碳总部园、荔湖公园、前海人寿广州总医院等配套,项目周边还有珠江·博悦庭、华侨城云尚、华侨城湖岸、合景臻尚溋府、合景臻湖誉园、珠江投资新项目、正荣新项目等,片区项目均价约2万/平。

据了解,保利·明玥湖光规划15栋高层产品,共1551户。1-6栋是25层,7-15栋是32层。共分3个组团开发:
一期组团是1、2、3、4、5、8栋;
二期组团是6、7、10、11、15栋;
三期组团是9、12、13、14栋。

一期组团是1、2、3、5、8栋,开盘*推2、3栋,2梯3户和3梯4户。
面积有84、94、105、121㎡,户型覆盖了刚需和改善。
项目车辆出入口共设置3个,1个位于8#西侧面,1个位于7#东侧面,*后一个位于14#的东侧面。车位配比是1:1.2,1878个(地上221个+地下1657个)。

保利·明玥湖光是一字板型户型,户户朝南。三梯四户和两梯三户设计,建面约121平、105平、部分93平户型是独立电梯入户(以具体楼栋为准),舒适感与私密感增强;建面约84平户型是双开门电梯入户,这种设计在增城来说还是少见的。
建面约84-121m²户型,双卫设计,L型大飘窗,下面,一起来看看户型。
建面约84m² 2房2厅2卫

建面约93m² 2房2厅2卫

建面约105m² 3房2厅2卫

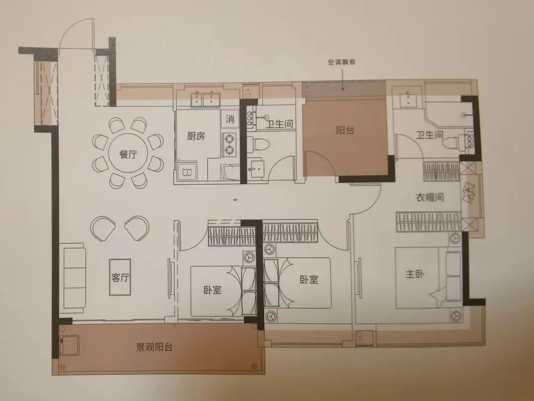
建面约121m² 3房2厅2卫暂未开放样板间,从户型图介绍中得知,该户型是社区*央景占位,南北无遮挡;主卧双飘窗,可定制双排大衣帽柜。

更多找房咨询请在你的手机微信右上角搜索处选择小程序后,输入“亮点好房”搜索,即可进入“亮点好房”小程序,即可直接查询到更多的楼盘、房源、资讯……,里面可直接找到专业的房地产顾问进行咨询购房事宜!
如果你还想更加了解广州,或者了解广州相关的楼盘项目!可以点击下图链接进行登记!亮点好房企业会为你配置一对一的本地置业顾问为你解答,免费为你制定置业计划!免费咨询热线:400-832-7668

