黄埔又一座商业*要来了!
9月13日,从广州公共资源交易*了解到,知识城财富广场一期建设工程勘察设计施工总承包(EPC)公告简要。


知识城财富广场项目拟建设商业区,打造活力商业体。项目将建设两幢塔楼,分别为70米高和100米高,标准层面积900平方米,建筑功能涵盖公寓;塔楼四周设置底商、商场,形成商业*区域。


项目总投资 56015.90万元。项目工期480天。







目前,知识城财富广场一期建设工程勘察设计施工总承包正在招标。
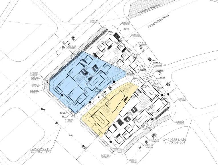
从黄埔镇龙村集体经济发展留用地合作项目可行性研究报告,我们了解到该项目地点位于黄埔区知识城东南部,镇龙村广汕公路以南、九龙大道以东地块。

该地块临近地铁二十一号线“镇龙西~镇龙”区间盾构隧道。地铁隧道直径6米,隧道顶埋深约11.8米,地铁隧道离项目红线约5米。项目现场情况如图片一所示,箭头所指为隧道大致位置

该项目所属镇龙村,目前区域内高质量、多样式的配套服务设施较少,且分布零散。项目的建设,将完善高品质服务配套供给。
知识城财富广场一期项目位于黄埔区知识城东南部,镇龙村广汕公路以南、九龙大道以东地块,为知识城知识产业提供综合城市服务。广州黄埔区知识城及 其协同发展区定位为粤港澳大湾区知识创造示范区。

该项目旨在打造活力商业区,建立一个动感的、令人难忘的、包含各种设施的公共空间,一个*吸引力的、服务广泛的商业区,充分利用项目地理*,营造一个吸引人的沿街商业。

