在广州,以水聚气,以水为财。
“一湾青水绿,两岸荔枝红”,荔湾作为三江汇聚的风水*,不但享有得天独厚的自然景观资源,更是广州*有情怀和历史的城市记忆。
保利花海湾,位于荔湾区花地湾滨水居住区,临近广州市*长的8.4公里内河—花地河,拥有一线河景资源。
周边醉观公园、荔湾儿童公园、葵蓬花果生态区三大公园环绕。毗邻8公里绿道,百年老树成林庇荫,在寸金尺土的老城区能拥有如此绿色的生态环境,实属难得。
如此得天独厚的地理位置,结合花地河特色,内部更精心打造了5+3全龄悦享园林。
取大自然元素中的“花”、“林”、“水”,将“花”象征生活多彩斑斓的寓意、“林”象征清雅宁静,以及“水”象征亲和友善的寓意实现有机交融。

在交通方面,项目距离地铁1号线花地湾站约1.5公里。此外,步行约10*可到白鹤洞地铁站(规划中),未来地铁11号线、22号线、佛山5号线、11号线、有轨电车等均将经过,往返广佛两地十分便捷。

此外,项目临近花地大道、芳村大道、珠江隧道、洲头咀隧道、广钢-广纸隧道(规划中),自驾自行也十分便利。
在生活配套方面,老城资源自然丰富。周边目前已有的商业包括花地人家商业街、沃尔玛、东百百货以及各种生活超市、肉菜市场。未来,随着茶滘旧改的逐步落实,还将拥有约60万㎡的商业补充。
此外,康有为小学(*)、芳村小学(*)、培英中学等都在1公里范围内;约5*可步行到广东省中医院芳村分院,5家三甲医院分布在3公里范围内,教育、医疗10*全部可拥有!
当然,作为2018年保利广州西花地湾板块的*发代表作,志在打造低门槛、低密度、低容积率的社区。
整个小区采用围合式布局,采用2梯3户/2梯4户,低梯户比点板式结构,如此低密度新建住宅,在老城*已是接近豪宅标准。

值得一提的是,楼栋外立面主要采用大面积整块的落地玻璃材质,*大楼间距可达80米,同时带有270°拐角设计,亦是为了打造*大化河园双景的观景面,简洁,现代感十足。
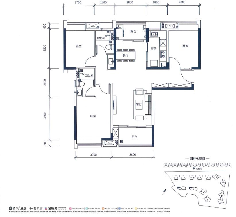
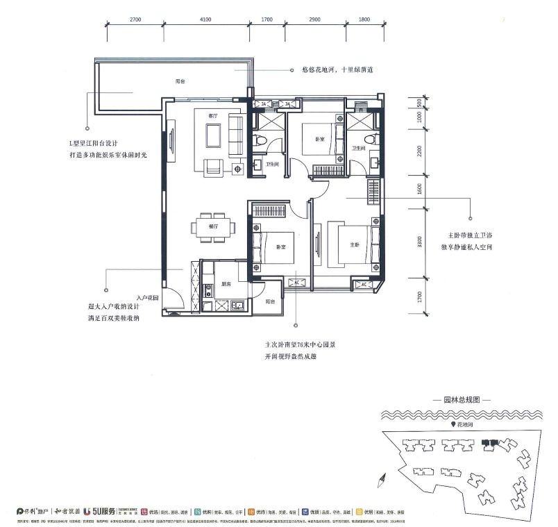
保利花海湾在户型规划上,追求改善需求全龄化产品。产品涵盖约87㎡、约99㎡三房及约123-127m²3+1房、约134-138㎡四房及约150㎡4+1房。
在产品设计上,小户型均是纯南向设计,南向面宽尺度达11米、7.5米大面宽观景阳台、罕见四阳台设计等,尺度足够阔绰。

到底什么才是真正的广州”疯狂刷屏,花城广场惊现巨型花朵二维码,引起市民的关注,成为了讨论的热点话题。

一起回味保利花海湾为老广打造的情怀
庭院深深石板阶,古韵悠悠传西关
一盅两件日常事,茶烟缭绕畅古今
百年商埠骑楼街,吃喝玩乐任你行
广州,有它的回忆、味道、热闹、传承......
保利花海湾目前在售户型,建面88㎡、101㎡、128㎡三四房单位,同时*146㎡四房目前也在售中,其中128㎡和146㎡均为北向望江单位,其余户型均为东南向,均价40000元/㎡。

122

106

项目主推的户型为128㎡四房两厅两卫。

项目:保利·花海湾
地址:广州·荔湾区百花路111号(近花地湾地铁站)
户型:87-150㎡

