本周六(9月9日)华润置地天河润府开始诚意登记,并冻资5万元,提前诚意登记的客户将可以享受优先选房。
就在上周末台风天过后,我们也去了一趟天河润府的展厅,现场看到前去咨询的客户几乎坐满了洽谈区,展厅门口的车位也基本停满,可见项目热度之高。

天河润府项目所在地块,是今年7月华润置地以总价超45亿元摘得的天河吉山仓地块,当时折算楼面价22828元/㎡,若算上配建,楼面价达3.8万元/㎡。并且刚拿地不久,项目就在珠江新城、琶洲、金融城等三大商圈开设展厅,开始筹备蓄客、抢夺客源。
根据规划,华润置地天河润府项目占地面积超11万㎡,计容建面约20万㎡,有宅地、商地和教育用地,其中住宅用地分两期开发。首推一期住宅,拟规划有4栋,总货量在500多套。

户型上,有建面约80㎡三房两卫、87㎡三房两卫、112㎡四房两卫、128㎡四房两卫等四个户型。
面积段上看,主打刚需客,兼顾部分改善客,销售透露所有户型实用率都在9成以上。
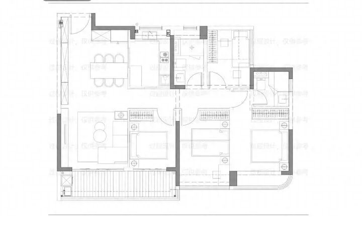
建面约80㎡三房两卫,进门设置了玄关,竖厅设计,半开放式厨房,主卧飘窗是不规则的,有弧度,且客厅位置也有增加飘窗设计,可多一些赠送面积。(销售表示,建面约80㎡的货量并不多,首开也顶多是几十套,因户型朝向只有东和西向可选,单价会偏低)

建面约87㎡三房两卫格局上和80㎡三房相差不大,仅是进门口有带入户花园,且有四开间朝南。

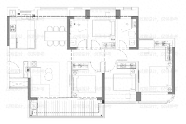
建面约112㎡四房两卫,则是南北对流设计,进门后有设置玄关,半开放式厨房,阳台连通客厅和其中一间卧室。
主卧也有多个飘窗设计,形成南北对流,不过北向的飘窗大概率是会用来做衣柜设计。

建面约112㎡还有另外一种户型可选,进门正对客厅,四开间朝南,北向小卧室空间偏小一些。

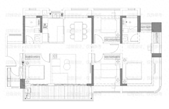
建面约128㎡四房两卫,进门处有入户花园,再进入客厅之前,右边是公共卫生间,右边是一个小卧室,对于可能和老人家一同居住的家庭,这个设计还是挺不错的。

阳台和小卧室以及客厅打通,整体就十分开阔,每个房间都配有飘窗,很明显赠送率颇高,特别是主卧四个飘窗,南北对流,通透性非常强。
总体来说,从目前设计手稿的户型看,产品实用率高,主打多赠送率,刚需户型可能朝向方面不会有太多选择,但改善户型多是南北对流,采光通透性强。

