好快!华润天河吉山仓地块上个月刚拍下地块,拍地后一周就开始动工了。
现在已经正式命名华润天河润府,9月2日开放营销中心
华润天河润府,属于天河东板块,紧挨着黄埔姬堂,北面有大盘珠江花城,以及小盘湖北联投文津府,南面过了广园路也有旧改大盘富颐华庭。

不过华润央企招牌,不怕没人买,项目位置虽然没有比珠江花城更好,面积段也是一样,但胜在央企出品,交通通勤去广园路会更方便,而且也会配建9年制学校,会吸引一波天河刚需和改善购房群体。

户型面积段涵盖80-143㎡三至四房。
不像珠江花城那样*做四房,华润选择了80方做三房,112以上做四房,整体空间感保留了,这样能吸引更多追求舒适性的刚需和改善买家。
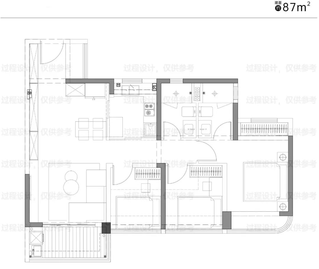
其中,87平和112平户型相比上个月传出来的户型图有了不小的改变。
对比此前网传的85平三房,新版87平户型大了两平方,布局基本一致,细节变化不小。

1、增加小入户花园,带飘窗,采光更佳。
2、厨房位置变化,布局从U型变成L型,增加了岛台。
3、次卧剪力墙位置变化,增加改造灵活性,次卧可单独成房,也可去掉墙体融入客厅。
4、主卧飘窗改成了弧形,且飘窗进深有所增加,大概会达80厘米或更高。

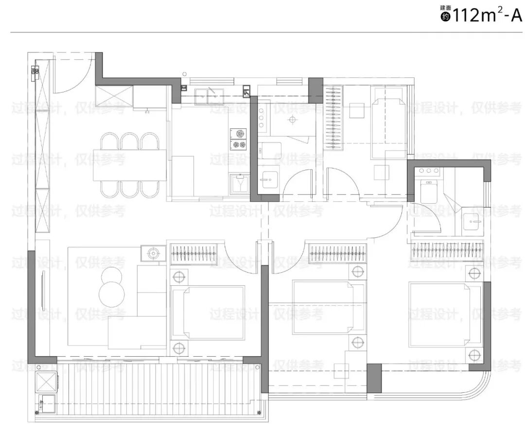
112平四房A户型,和旧版的相比,变化不大。主要是增大了飘窗进深,主卧飘窗也改成了弧形。


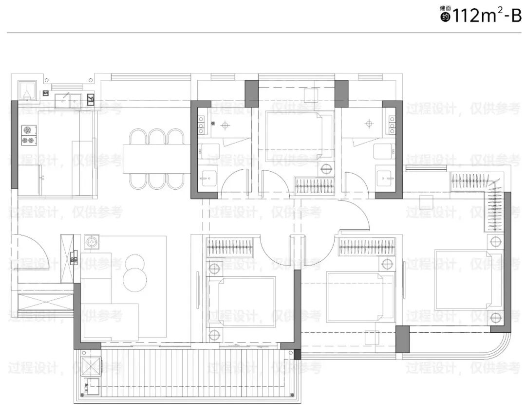
112平这个面积,A款户型比较平庸,B款更值得一看。
如,玄关处增加储藏室,大阳台连通客厅与次卧,餐厅、公卫、主卫和北向次卧都增加了大飘窗……

80平三房,也是可圈可点。
客厅大飘窗采光,厨房L型布局+岛台,两个阳台改房均可拆卸墙体。主卧南北双飘窗。

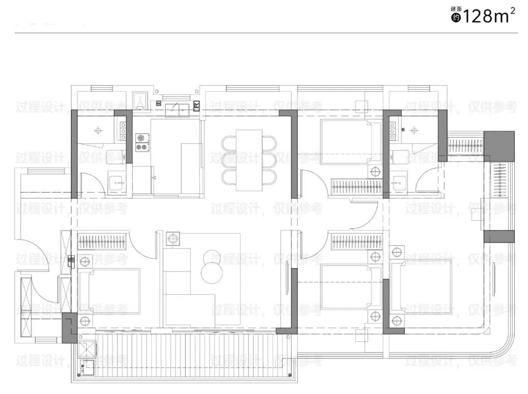
128平四房也相当不错,不做解读了,自己看。

华润天河润府计划打造14栋32层高的住宅,两梯五户设计,其中一期住宅约1800户,如果参考珠江花城现在新房价格,预计不用500万就可以进场。
大家都说华润润府也会抢奶厂的二手买家,不够华润润府收楼交付都要3年后了,短期孩子上学要入住的,该买二手的还是会选择二手,毕竟所见即所得也能马上入住。如果不着急的买家,我当然还是建议选新房,毕竟税费便宜不少。

除了天河这边被搅局,就连广园路之隔的富颐华庭也担心被抢客,不过富颐主打就是一个性价比,华润主打就是一个央企大牌,如果预算够得上华润,我都建议选择华润稳妥。

