华润在天河东吉山仓的项目在昨天开放了三个展厅。展厅分别设立在海珠区的丽影广场,天河区的花城汇和美林天地。
而项目的名称也确定了——华润置地天河润府。定位是华润的润系旗舰。

今天我顺路去美林天地看了一眼,感叹华润置地的超级高效率。要知道吉山仓这块地,是华润在7月4号才摘得的。至今仅仅过去40来天,华润就已经开始之后的销售预热铺垫了。
而根据现场工作人员的说法,华润还将在8月26号,开放在项目地的展厅。
最近华润在广州的项目不少,先是荔湾白鹅潭悦府,然后是备受关注的长隆万博悦府,如今天河东的天河润府也开始预热。
另一方面,天河东的热度也随着世界大观地块以5W/㎡的楼面价拿下而增加。
未来天河东板块有已经在售的项目有合生缦云,合景瑧颐府,即将入市的联投文津府和天河润府,以及越秀摘得的大观南路地块。再加上牛奶厂存量房的四大金刚。
完全可以想象市场竞争的激烈。
那在这种情况下,天河润府这个项目还值不值得入手。今天我们就通过目前手头上掌握的信息,为大家做一个分析吧。
一、项目概况及区位
天河润府的位置处在天河区的吉山村,小区的西侧不远就是天河儿童公园,东侧是茅岗农场。距离珠江花城直线距离不到1公里,从天河润府步行出发,走岐山路800米左右,就能走到珠江花城。两个小区绝对属于对门邻居了。

天河润府这个区位,说实话,虽然尚在天河,但是也已经在天河东侧的边缘,临黄埔区边界了。
周边铁路路网就有广九线和吉山支线。产业形态也是以传统工业和物流仓储为主。
小区的占地面积11.15万㎡,建筑面积19.73万㎡。容积率达到3.68,共约1700户。
总共12栋32层高的住宅,整体是2梯5户的设计。分成南北两个地块开发。其中北侧地块4栋,南侧地块8栋。

二、项目配套
1、交通配套
公共交通方面,目前距离小区最近的地铁站是4号线和5号线交汇换乘的黄村站,直线距离4公里以上。即使骑电瓶车,都要超过15分钟。
因此住户的出行,只能以自驾为主。

小区周边的主干道有广园快速,也可以通过茅岗路,上黄埔大道。前往金融城核心区,珠江新城,琶洲。如果遇到早晚高峰,通勤时间会有所增加,这也是正常现象。
但是非高峰期的这个通勤时间,还是挺理想的。
2、教育配套
目前还没有确定学校最终的合作方。但是根据现场工作人员的反馈,未来小区会配建一所幼儿园,以及一所36班的九年一贯制中小学。
当然了,具体的信息还是以最终官方的消息为准。
3、生活配套
小区自带2万㎡的社区商业。华润在商业运营方面确实很有一套,不论是招商还是规划都做的很不错哦。
例如牛奶厂华润天合下面的商业,就搞得有声有色。品质和人气兼具。
除了社区商业,如果想要综合性的商业,那就只能开车前往4公里开外的美林天地了。再近一点的还有奥体优拓邦。但是在商业鬼才高德置地的经营下,奥体优拓邦就聊胜于无吧。
另外小区距离天河儿童公园也不远,周末遛娃周边就有好去处。
4、医疗配套
小区比较近的医疗配套有三甲医院中大附属第三医院岭南分院,开车距离大概在8公里左右。中大附属第三医院,开车距离大概15公里左右。
三、户型设计
这次小区推出的主要是一期,也就是项目北侧的4栋住宅。两梯五户的设计。
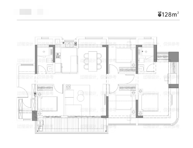
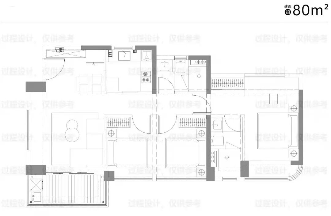
产品涵盖了三房和四房的产品。有80㎡和87㎡的三房两卫和110㎡和128㎡的四房两卫。

设计都是主流的设计,我个人就很喜欢128㎡南北对流的直厅设计。大尺度的阳台,三个房间朝南,动静分离都做的很出色,实用性很高。
具体户型设计如下:




关于价格,我认为华润会在小区产品的品质和设计方面下功夫,做出差异化,从而避免和珠江花城的直面竞争。
同时考虑到当时3.8W/㎡楼面价的拿地成本,我预计整个项目的售价会在6W/㎡以上。

四、周边二手房情况
目前珠江花城新房的售价在6.3W/㎡左右,另一个即将入市的新房,文津府的吹风价在7W/㎡以上。
而牛奶厂二手房的挂牌价集中在7-9W/㎡。
五、项目优缺点总结
项目优点:
1、从目前放出的设计来看,天河润府的整体品质和户型设计都可圈可点。特别是像80㎡和87㎡的三房两卫产品,和牛奶厂改善的产品错位竞争。总价500万左右可以在天河东有一套三房,还是挺有竞争力的。

2、小区的区位还是不错的。不论是珠江新城、琶洲还是金融城,甚至是黄埔的科学城。自驾通勤距离和时间都不算长。
这些都是有产业增量的区域,未来随着这些板块的进一步发展,天河东这个位置一定能收到更多的外溢购买力。
长期来看,天河润府所处的这个板块我是看好的。
3、其实天河东这个板块,真有点广州东进版天河公园的意思。加上这个区域生源的纯粹,那就意味着未来的教育应该是不会差的。
如果是注重孩子教育的家长,可以关注小区之后合作的学校。
项目缺点:
1、公共交通的缺失,需要完全依赖自驾出行。规划中的远期19号线,不用抱有过高的期待。地铁这东西,即使开建都有延期的风险,何况还是在规划中。
因此小区的居民,在未来很长的时间内,都要接受公共交通不便的缺点。
2、目前小区周边的业态,依然是物流运输仓储业为主。这也意味着城市界面环境一般,货车横行。
小区南向会受到广园快速噪音的影响。同时货车经过扬起的灰尘,也会导致小区住户入住的时候,擦桌子的频率要高一点。
3、小区周边缺少商业配套。社区商业如果要形成规模,还需要时间。入住的头几年,会有买东西不便利的问题。
总的来说,如果小区定价在6W/㎡左右,喜欢大品牌开发商新房产品的人群,是可以考虑的。未来天河东大概率会形成一个有居住氛围,有品质,纯粹的改善型住宅区。

