星河盛世锦城傲立广州第三中轴科技创新轴-南大干线经济带交汇处——广州万博片区核芯,近享超500万方商业中心,涵盖天河城、万达广场等多所超级商业综合体。
此外,星河盛世锦城联动余荫山房文化资源,融合岭南生活美学业态,打造约1.6万㎡社区主题商业、约3.9万㎡岭南风情商业街,成为区域内独具岭南风情的商业街区,5KM内衣食住行文娱教医一站尽享。

项目坐拥立体交通路网,距离板桥地铁仅约500米,1站大学城南,2站万博,5站琶洲,串联一城美好生活;
驾车出门直上南大干线,无缝衔接万博CBD、广州南站;金光隧道衔接大学城、畅达琶洲、金融城,南沙港快速、新化快速、华南快速交汇于此,快速联接广佛。

星河盛世锦城与岭南四大名园“余荫山房”仅一路之隔,项目背靠华工国际校区,周边广东工业大学、广州美术学院、暨南大学(番禺校区)等13所知名高校环绕(其中6所为国家双一流),汇集约24万师生,高知精英圈层集聚人才净流入地,构成百万方人文大城的高价值标签。

匠心筑作,不惊艳不亮相!
星河盛世锦城营销中心现已正式开放,高达35%的绿化率,综合容积率低于2.5,区域少有的低密小高层,为万博再献精品人居。
星河盛世锦城的到来,让大城美好生活变得触手可及。与日常相伴的美景,与亲友相守的空间......关于家与生活的想象,还有无数种可能。
在往后岁月的征程中,星河盛世锦城将继续发掘、创想未来美好生活场景,将当下对人居生活的创想一一呈现。以盛世启幕未来,让生活大有想象!

星河盛世锦城首推融资#4地块的4栋楼,每栋楼只有9层高,是名副其实的小高层了,首推只有160套房源。
首推的主力户型为95-128㎡3+1至4+1房,其中90多㎡的户型有四个,分别为95㎡、98㎡C户型、98㎡D户型和99㎡户型,100㎡以上面积的户型只有128㎡一个。
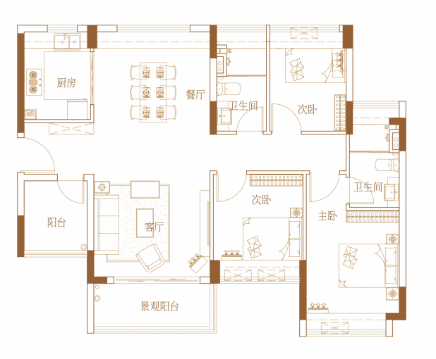
95㎡3+1户型,厅出阳台,双卫设计,还带有入户花园。

95㎡户型
另外,95㎡户型的厨房正对着餐厅,我个人很喜欢这种设计,煮饭的时候可以很方便地把饭菜端到饭桌上,不用绕一圈。
我觉得这个户型唯一的缺点是朝向,只有东北和西北朝向的房源选择,采光和通风会比南向户型差。

建议选东北朝向,可以望河涌绿道,也不靠马路,居住起来会安静很多。
销售告诉我,95㎡户型的单价预计4.2万/㎡,总价约400万,目前冻资5万可以享受99折优惠,还可以优先选房。
98㎡户型有两个选择,一个是传统的竖厅设计,另一个是南北对流设计,朝向有东向、南向、东南、西南、西北向多个选择。

98㎡C户型

98㎡D户型
99㎡户型也是传统的竖厅设计,有南向和东向两个朝向的房源选择。

99㎡户型
两个朝向各有优缺点,南向房源采光和通风更好,但靠近马路,可能会有噪音影响。
东向房源阳台正对着河涌绿道,安静且有景观看,但只有上午阳光才会照进屋内,通风也没有南向户型好。
作为首推户型中唯一一个100㎡以上的户型,128㎡户型位置不错,都是单边位,同样也有南向和东向的选择。

128㎡户型
128㎡户型的设计跟99㎡户型差不多,主要的区别在于128㎡户型南向房源做到了四开间朝南,采光面直接拉满。
销售告诉我,南向户型价格会比其他户型贵一些,价格预计在4.5万-4.6万/㎡之间。
对比附近的二手房,星河盛世锦城的价格并不算贵,距离项目最近的小区是剑桥郡佰利山,该小区的二手房业主放盘价普遍在4万以上,但实际的成交价格是3万多。

目前只能依靠周边的配套,项目对面有菜市场,几百米范围内还有一些低档的商业楼和沿街商铺,能满足日常的生活需求。
你觉得星河盛世锦城值得买吗?

