今天给大家推荐的金地半山风华项目位于增城经济开发区内的永宁板块上。
金地半山风华容积率仅1.94!
项目北面靠南香山,东面看荔湖城的湖景高尔夫,南面看公园上城湖景,西面为别墅区。
项目共分为3大地块,高层住宅区、别墅区,及社区活动中心。

半山风华目前货量不多了,仅剩*2栋,近日加推8栋,这样*高性价比的入手机会,且买且珍惜。
价格:金地半山风华,8栋价格!全南向约67-106㎡精装3-4房,送2万元全屋定制装修。


商业配套:一般社区要等周边配套,要开车去逛街,但金地的社区商业超20万㎡,比天河城(约16万㎡)还大。
目前,香山里商业小镇已开业、千米商业街开业超9成,香山里3大主题商业中心入驻了华润万家、钱大妈、百果园等30+个品牌商家。

远一点的,驾车几首歌的时间,即达新塘万达、合生汇、永旺梦乐城、南方医院(三甲)等,配套应有尽有。

医疗配套:社区带医疗中心,专业贴心的康养服务随时服务业主。
休闲配套:儿童乐园、泳池、跑道这些都只是标配,在半山风华甚至还有一座8000㎡精品文化活动馆,于此跑步健身、静心阅读……

教育配套:多达7所,涵盖幼儿园、小学、初中和高中,15年教育体系完善。
孩子从3岁到18岁,一直在家门口上学。(注:具体招生地段及招生政策等均以当年教育局官方发布为准)

交通配套:金地荔湖城出门就是新新大道,快速连接花莞高速、广河高速等大动脉,约一集新闻联播的时间到科学城,约一集电视剧时间到珠江新城。
更为重要的是,项目未来的交通还有巨大变量。
第一,新白广城际预计年底开通,其临近荔湖城站,一线直达白云机场/深圳宝安机场。
你也可以通过换乘轨道,快速抵达广州核心板块:2站新塘TOD,换乘13号线,直达珠江新城冼村。
或1站镇龙,换乘21号线,快线3站天河。

第二,增天高速也有传来新消息,预计2025年全面完工。广东省交通运输厅表示,届时,从增城出发无须绕行直达天河,路程缩短近30公里。
从金地荔湖城到天河将更加便捷,交通优点不断凸显。
在产品的打造上,金地半山风华也结合未来居住需求,精心锻造了现代东方人居。打造出的蝶形楼栋设计,*限度提升通风和采光面,确保大部分户型都能做到三面采光,打造出户户朝南的舒适居住体验。

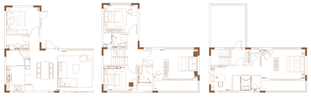
建面约66㎡3室,户型的代表,面积不大却施展出3室,功能齐全,且双开间朝南,阳光满室。

建面约79㎡3室,堪称惊艳,竟做到3室2卫,满足功能性的同时,主人房还能奢享一份私密;动静分区,布局科学合理,居住更舒适。
建面约89㎡则做到4室,且有两种格局,竖厅动静分区,互不干扰;横厅尺度感阔绰,加上全景飘窗,采光面拉满。

建面约108㎡4室,横厅霸气,主卧带L型衣帽间,装下所有喜欢的时装;多出一个灵动空间,轻松施展梦想中的兴趣房。

住宅区的西面是别墅区,产品为163㎡和183㎡的三层别墅,都带前后庭院和独立车位,天台露台设计,让业主有更多创意发挥的空间,满足不同的居住需求。
163㎡别墅:品质生活,可以很简单

△ 163㎡别墅户型图

183㎡别墅:四代同堂,其乐融融

该项目到底值不值得买?

