中怡城市花园是天河北板块的网红楼盘之一,建成于2004年,总户数1208户。小区采用围合式花园,绿化率达40%,绿树成荫;花园中间有泳池,靠近西门有儿童游乐场,花园东边有篮球场和羽毛球场。

交通配套:中怡城市花园北临广园快速,南临天河北路,东临华南快速干线,西临广州大道,四通八达。
地铁3号林和西站距小区约600米,通过地铁换乘到达广州各区域,出行方便。

小区停车场出入口距广园快速路*近入口的*短线路为2.5公里,不堵车的情况下7*左右能上高速,自驾出行便利。
商业配套:小区自带3层底商——中怡汇,林乐路沿街还有生鲜、饮食店和生鲜等业态,日常生活消费非常方便。
小区楼下裙楼有中国银行、招商银行,位于小区650米有东方宝商场以及永旺超市,900米有林和东菜市场。
周边教育:
幼儿园:小区自带中怡幼儿园(私立),位于花园北侧,接送方便。小区附近幼儿园非常多,1.5公里内有侨怡幼儿园、荟雅苑幼儿园、嘉怡英文实验幼儿园和都市华庭幼儿园。
小学:对口的公立小学为天河区华阳小学(华成校区),距小区约1.5公里。
对口中学:华阳小学对口直升初中为广州中学(原47中)。
注:华阳小学目前是被预警学校,2026年天河区取消直升。
物业管理
目前是万科的物业,维护管理水平还算不错。车位配比1:1.1。
户型分析
中怡城市花园共6栋高层电梯楼
A栋为4梯18户30层高的电梯楼(公寓式住宅)4楼以上为住宅,4楼以下为商业裙楼;整栋楼的房子只有生活阳台,没有景观阳台,客厅只有飘窗。
B栋~D栋为2梯4户32层高电梯楼;
E栋为3梯8户31层高电梯楼;
F栋为2梯4户32层高电梯楼。

A栋为小户型居多,面积是38㎡1房~130㎡3房;B栋~F栋面积43㎡1房~135㎡3房。
户型1:

43㎡1房1厅
点评:A栋的1房,只适合作为学位壳,适合出租。
户型2:

60㎡2房1厅(02单位)
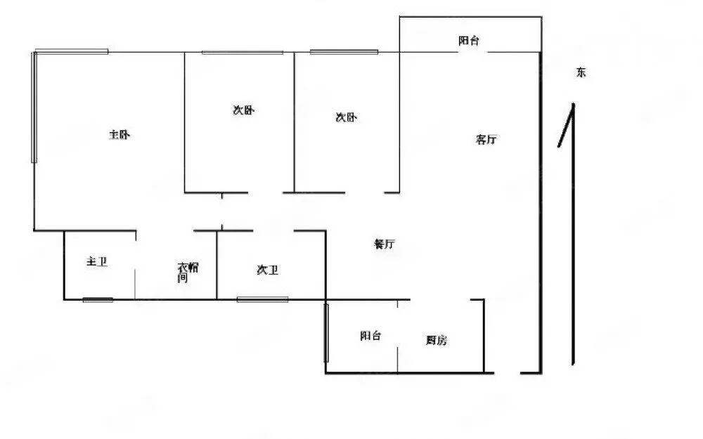
点评:紧凑型小2房,E栋02户型(阳台东北向,次卧东南向),户型方正,无暗卫;虽然靠马路有噪声影响,但朝东,视野采光都较好,居住体验会比同面积段的07单位户型(阳台东北向、次卧西北向)好一点。
户型3:

89㎡2房1厅
点评:舒适型大2房,E栋04、05单位户型,阳台和两个卧室同朝向,高层的话采光一流,适合单纯的独生子女家庭。
户型4:

113㎡3房2卫
点评:100㎡~113㎡这个面积段的3房在小区属于次品,户型虽然方正,但所有的朝向要么是北向,要么是西向,会有一定的瑕疵。
户型5:

128㎡3房2卫
点评:*单位D栋128㎡的3房2卫;124㎡~128㎡是整个中怡3房的主力户型,朝向均为南向或东向,B和C栋被对面A栋挡住视野,而D栋南向视野无遮挡;阳台和两个卧室都朝南,适合三代同堂的多口之家。
户型6:

135㎡3房2卫
点评:硬伤是户型不够方正,适合多口之家。
户型7:

235㎡7房2卫
点评:顶复,这个面积段和总价段在整个小区乃*整个天河北板块已是错配。
怎么选呢?
除A栋住宅公寓和单间小户型外,BCDEF栋2房/3房均为“厅出阳台+生活阳台”双阳台设计。另外,小区A栋和其他楼栋的单间户型,360万左右的预算就能安排优质公立学位,相对较亲民。
2房优先选择60平的户型2,毕竟89平的户型3,对于预算够不着3房的买家而言,设计相对落后且同等预算可以选择其他周边小区3房。
3房优先选择D栋128平的户型5。
小区缺点
部分户型不够方正,港式户型,内阳台较小,采光一般,影响居住体验;其次,E栋和F栋东侧户型靠近林和东路和华阳小学,容易受噪音影响。
由于附近很多日企,所以很多日本人在中怡住(尤其是A栋),人员相对复杂。
