广州绿地·珑玥府位于广州市增城区西山村地块,增城区隶属于广州的市辖区,南与东莞隔江相望,东临惠州,北界从化。

广州绿地·珑玥府,2017绿地“玥系”人文大宅扛鼎之作,融汇海派建筑精粹和南粤山水文化,钜献一座世界*·人文大宅!项目承袭古典世家的恢宏规制与尊崇荣耀,以九重国风礼序为基础,潜心匠艺打造望门兴族的仪式感致敬居者的门第气度,为增城名流贵胄阶层,开启东方美学的全新生活时代!

➢ 【品牌保证】世界500强绿地集团打造,玥系豪宅代表,绿地香港集*好的资源和*大的投入打造的明星项目;强大背景,安心购买。
➢ 【便捷交通】双地铁物业,21号(已开通)、28号地铁线配置,广深高速、广惠高速、荔新公路等10条高(快)速公路,10*内可进入高快速路网。
➢ 【商业配套】购物*物业,万达、东汇城、增江商业广场三大商圈,东区农贸市场就在项目旁,起居生活丰富便利。
➢ 【周边教育】18年全龄段教育,3所中学,4所小学,5所幼儿园,项目内自带12个班品牌幼儿园。

【项目*价值点】:精工科技豪宅、*社区、改善置业*选,全南向社区
➢ 【区内*好的园林】:4万㎡巨幕园林,户户南向,景观*大化。园林为贝尔高林国际景观巨匠打造(代表作星河湾),全社区风雨连廊贯通、园区内建造标准高(水景园林、环形跑道、等设施)
➢ 【区内*恢弘*园林】:恭*为样板,打造三进*六进宅门的中式归家礼序,百米*楼间距
➢ 【区内*顶奢会所配套】:*社交平台,配备天幕室内恒温泳池、瑜伽室、健身房、儿童第二学堂、宴会厅、桑拿室等七大奢享功能
➢ 【公区配置区内*高标准】:5.7米酒店式双入户大堂、6000㎡架空层第二泛会所、*品牌幼儿园
➢ 【区内*高配置科技社区】:5大智能科技系统,智能入户监控、大堂人脸识别、*净水器、同层排水等
➢ 【区内*高交付标准】:全球一线品牌奢装,杜拉维特、瑞士弗兰卡、德国高仪等


◆
会生长的幸福空间
◆




户型平面均为南北通透全透明户型,无自身遮挡
智慧面积—飘窗
U型厨房、全套房主卧、收纳体系
阳台及入户花园赠送一半的面积,占比15%
阳台改造房间
利用挑空空间版改造房间
高实用率提成产品溢价

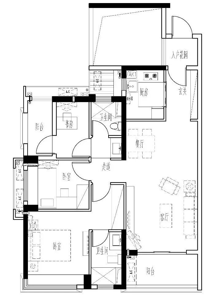
A户型
• 玄关收纳系统 | 全明独立玄关,提升入户品质
• 实用四房、南北通透 | 两房及客厅朝南,舒适明亮
• 智慧面积——飘窗 | 提升实际得房率
•U 型厨房 | 提高厨房使用效率
• 全套房主卧 | 尊享三件套卫生间,独立私密
• 收纳体系 | 精细化收纳,体现人性化设计理念

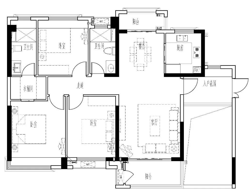
B户型
• 玄关收纳系统 | 独立玄关,提升入户品质
• 实用五房、南北通透 | 四面宽朝南,奢华舒适
• 智慧面积——飘窗 | 提升实际得房率
•U 型厨房 | 提高厨房使用效率
• 全套房主卧 | 尊享衣帽间、卫生间,独立私密
• 收纳体系 | 精细化收纳,体现人性化设计理念

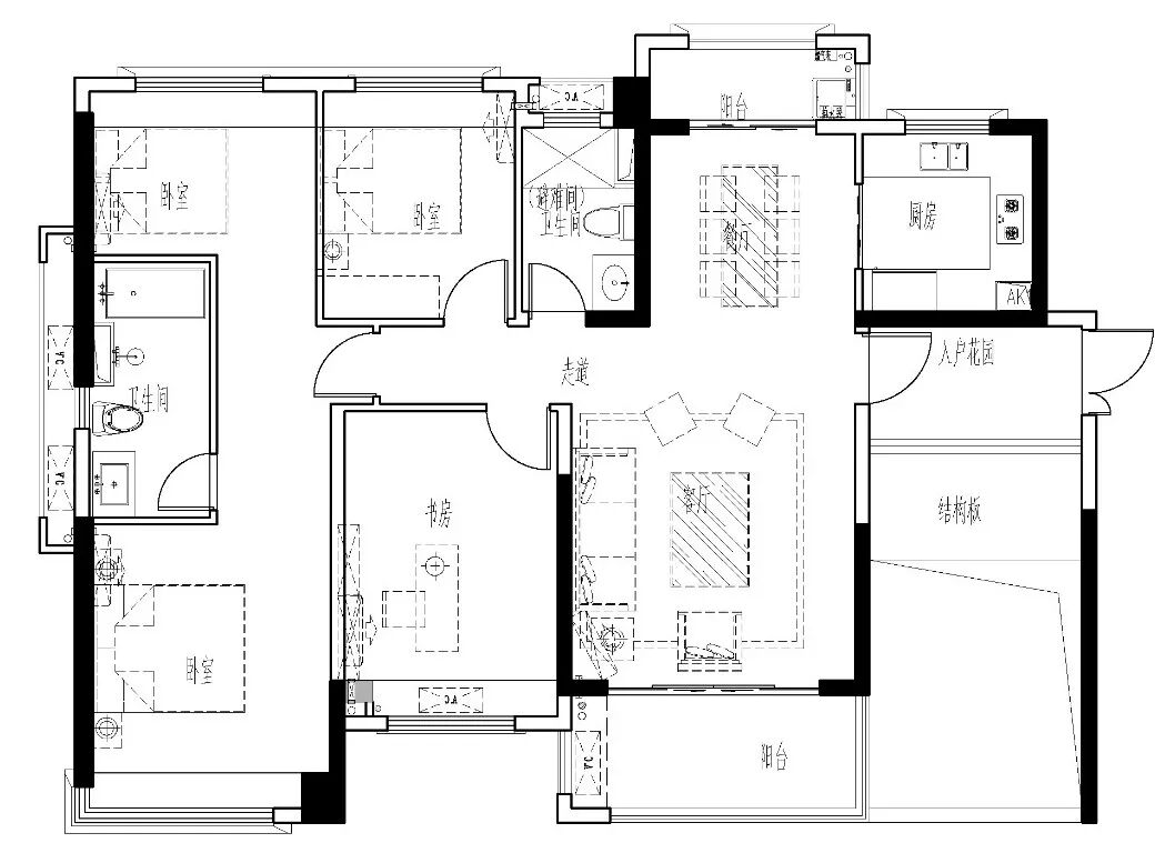
C户型
• 玄关收纳系统 | 全明独立玄关,提升入户品质
• 实用四房、南北通透 | 三面宽朝南,奢华舒适
• 智慧面积——飘窗 | 提升实际得房率
•U 型厨房 | 提高厨房使用效率
• 全套房主卧 | 尊享三件套卫生间,独立私密
• 收纳体系 | 精细化收纳,体现人性化设计理念

D户型
• 玄关收纳系统 | 独立玄关,提升入户品质
• 实用五房、南北通透 | 四面宽朝南,奢华舒适
• 智慧面积——飘窗 | 提升实际得房率
•U 型厨房 | 提高厨房使用效率
• 全套房主卧 | 尊享三件套卫生间,独立私密
• 收纳体系 | 精细化收纳,体现人性化设计理念
广州绿地·珑玥府从建筑到品质,从品质到生活,始终以人为本真,不懈追求精工匠心,致力于打造更高品质的现代人居生活。海派文化与粤文化的*融合,锻造贵胄神韵,礼献*尊荣,为这座城市的*阶层,缔造了一个真正的适合家族繁衍生息的*所在。

