风云流转,红盘轮动,要说海珠今年哪个豪宅*抢风头?
打开搜索栏,琶洲南TOD必是位列*行的“顶流”。
能打是能打,但木秀于林风必摧之,到底今年还有没有盘能与它抗衡?
有,大家是不是忘了,保利去年高价拿下的天斯地块?殊不知,它正以低调但坚定的步伐稳步而来!

数据显示,今年上半年,广州房价涨幅*高的板块是海珠区的赤岗板块,半年涨了58.66%。究其原因,主要是因为保利湖光悦色上半年入市,凭着一己之力拉高了板块的房价。这个盘为什么这么受欢迎?

去年12月,保利以折合楼面价44372元/平的价格,拿下了海珠华洲路地块,并挤进广州楼面价*8。
从那之后,很多人都在猜测保利天斯项目的案名会是什么?

路过项目发现,项目围栏、路边的宣传板上均出现“保利湖光悦色、低密度、建面约127-200平大平层”等关键字眼。

保利湖光悦色项目总占地面积4.5万㎡,总建面9.5㎡。该地块位于海珠区华洲路旁,西侧为广州海珠湿地公园,南侧邻石榴岗河,距离地铁11号线(在建)和18号线换乘的石榴岗站约600米,距离琶洲南TOD不到两公里。

从地段上来看,约200米外是华南快线,距离11号线(在建)及18号线龙潭站约400米左右,地铁1站即可到达琶洲。

保利湖光悦色,择址琶洲*商务区南部2千米处。
既能承接琶洲发展的利好,和富人的购买力,又能避免商务楼宇高耸带来的居住狭隘感,为产品打造提供充足的可塑空间。

配套设施:主要介绍了旁边的两大地铁站:18号线龙潭站、11号线石榴岗站(修建中);以及旁边的湿地公园。
项目内部,则在*南侧布置了一所幼儿园。

虽然面积不大,但项目仍旧配置了12班幼儿园,面积2880位于西南端。距离*近的是11A#和11B#这两栋。
保利湖光悦色均为东南向望湖户型,享有一线滨水景观,与水域间距不过15米。

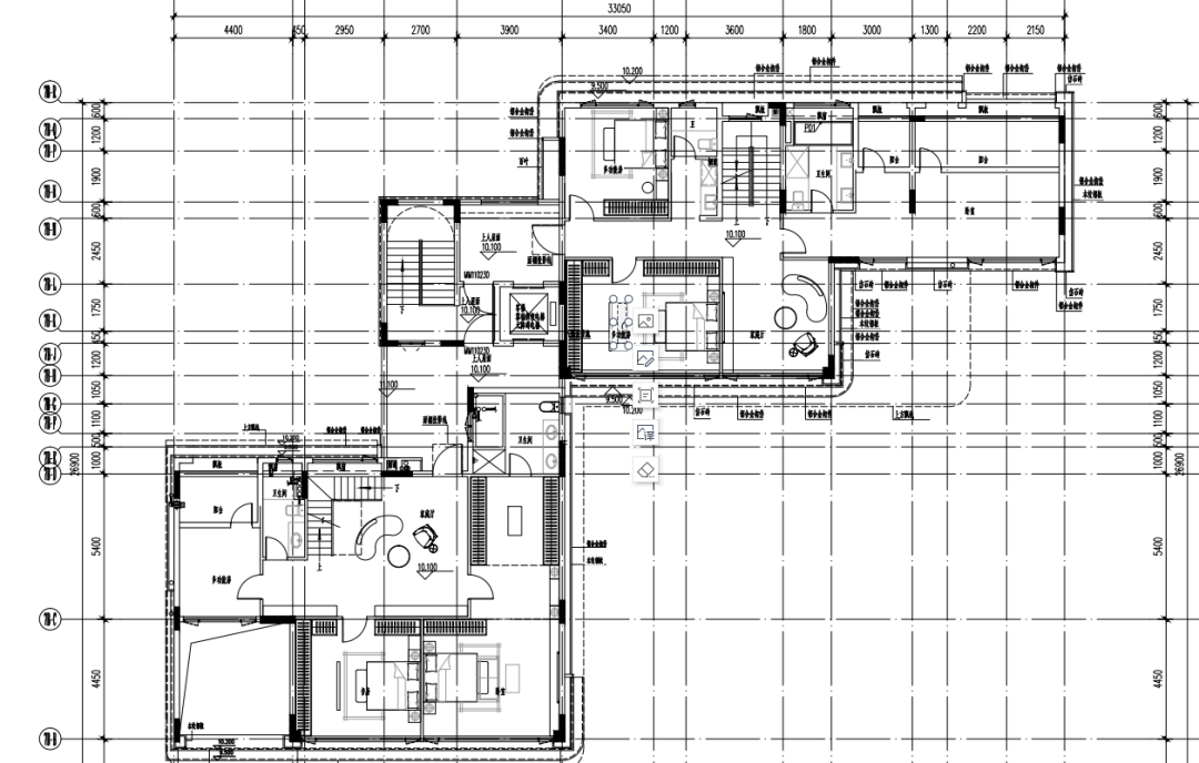
项目产品主要以小高层和叠墅为主,容积率2.83,其中16栋为14-16层的小高层住宅,5栋临江(河)的4层叠墅。

保利湖光悦色主力户型就三个:127㎡、142㎡、200㎡,且全是两梯两户。
从总图排布看,东低西高,北边几栋呈三角形围合式分布。
东南向靠河的叠墅(沿河局部限高15米的产物),再内退是200㎡户型,然后142㎡户型。
127㎡户型只有10条梯腿,分布在3#、4A、、5B、5C等楼栋。

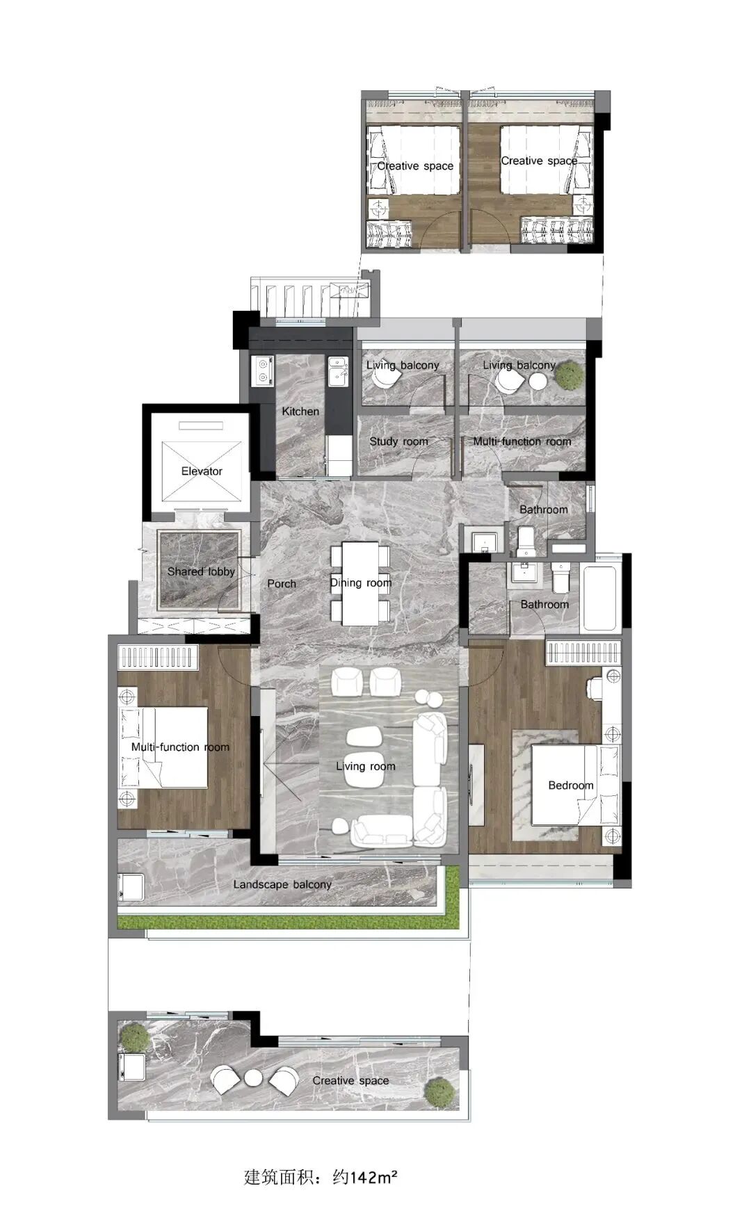
*先建面约142㎡四房有专梯入户,配有约7.9米景观阳台,连通次卧和客厅,客厅宽敞大气,而主卧开间约3.7米,配独立衣帽间和卫浴,厨房为U型设计,方便实用。

另一建面约200㎡的四房,也是专梯入户,且配置了约14米的四面宽阳台,可连通主次卧以及客厅,这在豪宅产品中是比较少有的。

项目涵盖建面约127-200㎡面积段户型,一梯两户,私梯入户。每一户型均充分体现了“九大和乐场景”,通过9个设计亮点体现:私家电梯、百纳小库、社交厨房、*餐厅、自由巨厅、X空间、南北通厅、超尺度全景阳台、舒适次卧。

△ 户型①建面约200㎡户型
玄关处设置步入式储物间作为“百纳小库”
约60㎡巨厅,3.15米层高
LDKB一体化布局,形成多条洄游路线
14米超大面宽全景阳台约30㎡
酒店式主卧套房约30㎡

△ 户型②建面约142㎡户型
3面宽朝南,客厅面宽4.6m,LDK一体化布局
约7.9米观景阳台,南向采光面约12米。
主卧面宽 3.7m,全飘台设计,*大化景观资源
北侧两间房可满足三胎家庭需求



△ 户型③建面约328㎡叠墅复式户型

海珠新盘*,但凡有新面孔亮相,都会成为焦点。
项目的区位、配套,发现一个重要原因:
项目地处海珠*,地铁、*、商圈、三甲医院等配套应有尽有,且密度超过一般片区。
这样的优质且完善的配套,无疑是买家的心头爱。

新房,纯改善定位、低密度,保利央企保底收楼有保障(这年头新房收楼有保障也是优点了,这不应该是基础吗?);
梯户比低,独梯独户更私密;
位置好、去哪儿都近,高层独享广阔湿地公园景观。下楼就可以钓鱼。
更多找房咨询请在你的手机微信右上角搜索处选择小程序后,输入“亮点好房”搜索,即可进入“亮点好房”小程序,即可直接查询到更多的楼盘、房源、资讯……,里面可直接找到专业的房地产顾问进行咨询购房事宜!
如果你还想更加了解广州,或者了解广州相关的楼盘项目!可以点击下图链接进行登记!亮点好房企业会为你配置一对一的本地置业顾问为你解答,免费为你制定置业计划!免费咨询热线:400-832-7668

