天河润府项目位于天河区岐山路,靠近广园快速路,对面是富颐华庭,北侧紧邻珠江花城。该项目的开发将为吉山片区带来新的发展机遇,并提供现代化的居住环境。
尽管在项目开发过程中可能会面临一些挑战,但吉山片区的发展前景仍然非常广阔。通过各方的努力和持续投入,相信吉山片区将迎来更加繁荣和发展的未来。

天河润府项目即将在12月26日举办产品发布会,届时会有更多产品细节公布。通常情况下,项目在发布会后会进行一段时间的宣传和推广,可能不会在1月份左右立即开售楼部和样板间。
天河润府项目预计将提供多种户型选择,包括81㎡、90㎡、115㎡-A、115㎡-B、130㎡等不同面积的产品。这样的选择多样性将为购房者提供更多的选择。

以下是关于天河润府项目的商业配套、教育配套和交通配套的情况:
商业配套:目前天河润府周边大型商业配套较少,不能满足居民的购物需求。然而,项目规划中包括公交站场和商业用地,这可能为未来的商业发展提供了机会。需要注意的是,南侧物流仓库的搬迁时间尚不确定,对商业配套的发展可能会有一定影响。
教育配套:天河润府项目配建有一所9班幼儿园和一所36班九年一贯制学校。然而,关于教育集团、落成时间和移交时间等核心问题仍然是未知的。这些问题可能需要进一步与开发商或相关部门进行沟通和了解。

交通配套:天河润府项目周边有广园快速、珠吉路、科林路等交通要道,方便出行。此外,项目距离地铁4号线黄村站和5号线鱼珠站直线距离均为3公里,为天河地区少数地铁真空地带之一。项目开发将加速交通的优化调整,有望改善珠江花城等地的交通问题。根据岐山路的改造规划,这条路将拓宽成双向6车道的茅岗路北延线,这将进一步改善周边交通状况。

大盘配优质的教育仿佛是地产界卖房的不二法门。
天河润府根据出让要求,需要配建一所九年一贯制学校以及一所幼儿园。面积涵盖80-143㎡三至四房。

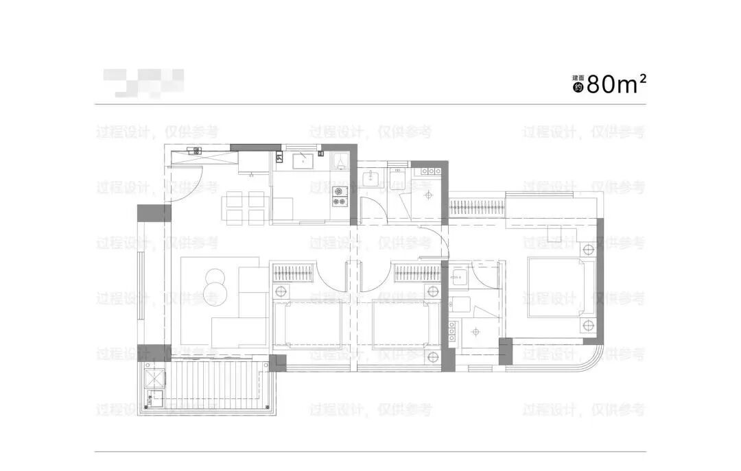
首开推出户型(一):80平3房2卫。
这个户型最大的特点是南北非一般的通透,5开间朝南。房子的过道很长,彰显小面积大空间的感觉。
可以预测这个户型的单价会比小区均价略贵。

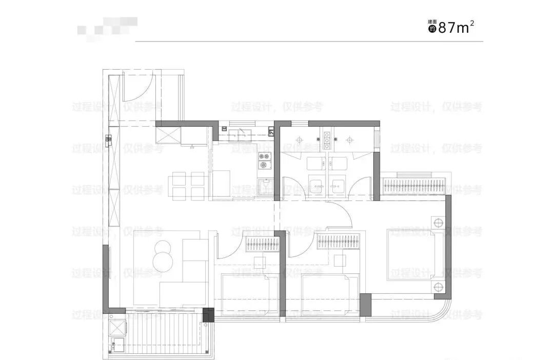
户型(二):87平的3+1房2卫。
这个户型跟珠花88平3+1房的户型略为相似,赠送一个入户的空间。
不管是3房,还是4房,每个户型的使用率接近100%,但面积对应的户型也恰到好处。
80多方,把使用率利用起来,完全可以做3房2卫的空间,更加能让刚需上车的客户群体接受。

而110多到120多的面积做4房也是把空间利用到*。但是有面积和使用率的支撑,每个具体的空间都不会显得很小,也不会浪费,恰到好处,甚至现场感受还很阔绰。
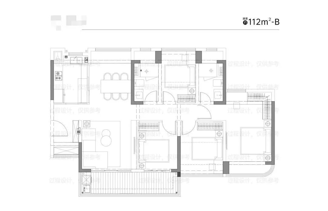
户型(三):112平有竖厅和横厅4房的设计。
天河润府112平的4房设计对标的是珠江花城117/119平的4+1房户型,珠花虽然多了一个入户的空间,但这个空间基本上只能当书房或者放杂物。
并且天河润府112平做4房,每个空间都不会拥挤。而珠花虽然房间多,但是整体感觉每个房间都不大。
区别最大的地方在于,天河润府的4房起,阳台都能去到6-7米的长度,而珠花的阳台看起来都很小气。


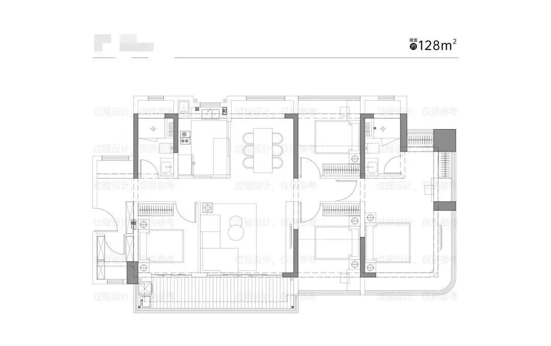
户型(四):128平的大4房。
这个户型的设计,把这个面积段应有的标准,发挥到了*。独立的入户空间。每一个空间都带有飘窗。5开间朝南,南北通透。客厅和餐厅相互独立。主人卧180°的弧形全景大飘窗,独立衣帽间。超7米长的大阳台。
天河润府首推以上4个面积段。这样的户型设计,更加符合天河东刚需刚改的客户群体,更好地承接客户的购买预算,不会产生割裂感。

天河润府项目配建的九年一贯制学校计划引入名校管理,这可能为项目增加了一定的教育优势。名校+大盘的组合可能会吸引更多的购房者,特别是对教育资源有要求的家庭。这对于刚需购房者来说,可能是一个吸引人的因素。
另外,华润置地天河润府项目预计将于年底正式开放营销中心,目前城市展厅已对外开放。
请注意,以上信息可能仅为初步了解,具体的商业配套、教育配套和交通配套情况可能会有进一步的调整和发展。建议您与开发商或相关部门进行详细咨询,以获取最准确的信息。

