高新仕林苑项目位于广州市黄埔区长岭居萝岭路以东、长贤路以南。
项目占地约10万㎡,总建筑面积约40万㎡,综合容积率2.3,含14栋住宅共1395户。
车位约2700个,小区配套12班幼儿园,1万㎡妇女儿童活动中心,肉菜市场、配套商业共4500㎡。

高新仕林苑目前在施工中,预计会在明年年初才能入市。
其中,项目走的是刚改路线,户型面积有约101㎡三房两卫和114㎡四房两卫。
改善面积约119㎡四房两卫和143㎡四房两卫,还有213㎡的大平层户型。

离地铁1.1公里 没有大型商业
长岭居板块经过多年的发展,居住氛围、生活配套已经比较成熟。
高新仕林苑项目周边的小区相对集中,生活便利性较高。
比如教育配套就是一大优势,高新仕林苑项目自身将会配建一所幼儿园,附近还有广铁一中、北京师范大学实验中学,广州市二中苏元实验学校等名校。
周边的商业,也足以满足生活所需,缺乏的大型商业,未来也会通过开控城投·云锦配建的大型商业综合体进行补足。

其中还有项目独有黄埔区级约1万㎡妇女儿童活动中心,尊享圈层亲子时光,4500㎡社区繁华商业,满足日常衣食住行。
高新仕林苑项目与地铁21号线长平站的直线距离约900米,与黄埔有轨电车1号线的羌洞站直线距离约400米,可通过有轨电车换乘地铁,交通还是比较方便的。

同时满满绿意也是自然赠与高新仕林苑的生态高地。
东南向望元贝中央生态公园。
北靠水牛山、帽峰山,南望萝峰山,森林覆盖率超60%,近20㎡公里生态自然保护区。

户型品鉴
101㎡户型,这个户型做了三房两卫的布局,有大量的飘窗设计。

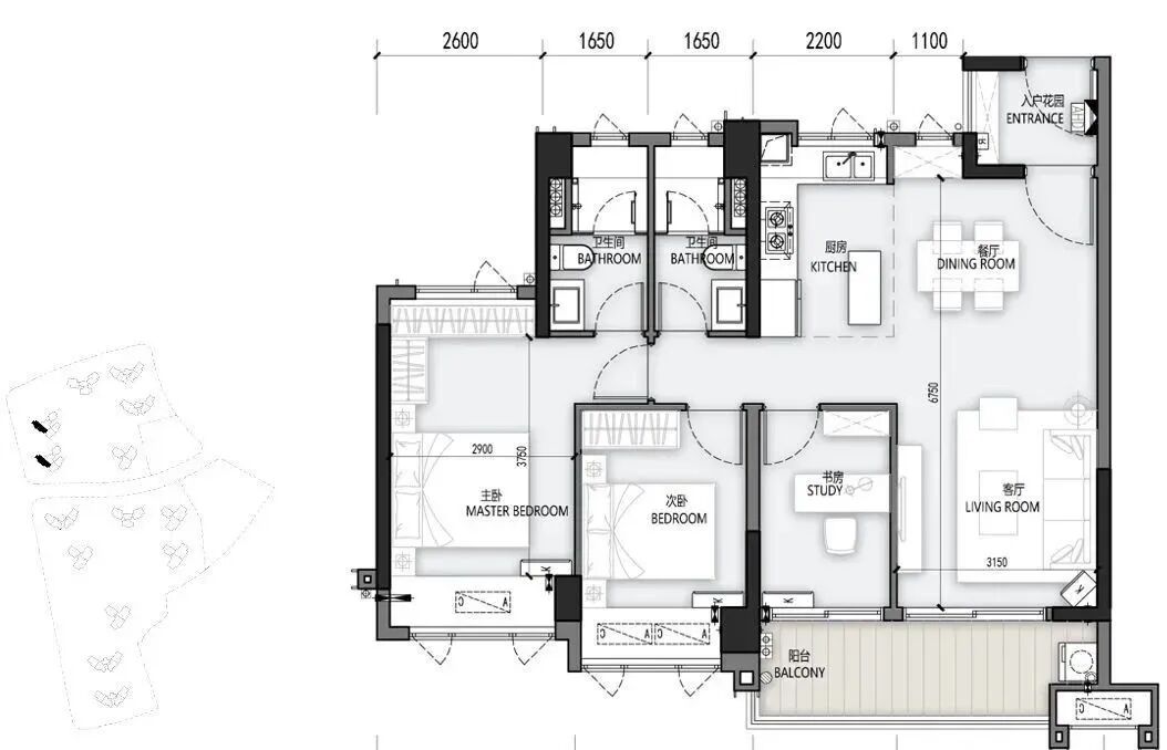
114㎡户型跟101㎡户型很像,主要的区别是多了一个房间。

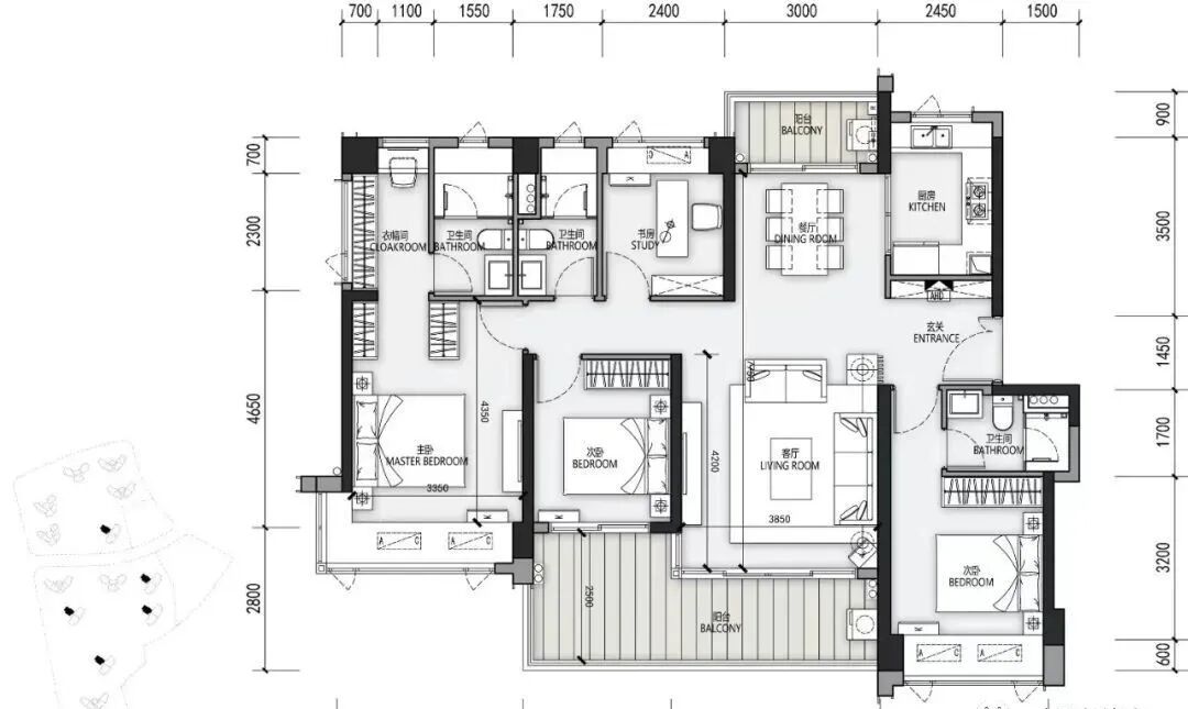
119㎡四房户型是双阳台南北对流设计,也是做了大量飘窗,尤其是在入户花园和玄关位置。

213㎡大平层户型,同样也是使用率超过100%,无论是空间舒适度和景观视野,这个户型都直接拉满。

黄埔高新仕林苑会卖多少钱一平?值不值买?

