7月刚拿地,8月就连开三个临时展厅,天河全新盘竟然如此着急入市抢客。
今天要说的这个盘就是华润天河润府。
7月4日,华润置地以总价超45亿元摘得天河吉山仓地块,折算楼面价22828元/㎡,若算上配建,楼面价达3.8万元/㎡。
8月15日,项目在繁华之地珠江新城、琶洲、金融城等三大商圈开设展厅,瞄准附近上班的白领们,开始筹备蓄客,抢夺客源,开展半月有余,已接待超400组客户。(这套路怎么有点像华润长隆万博悦府的操作,项目9月2日才开营销中心,目前冻资意向客将破1000组,效果还真不错)
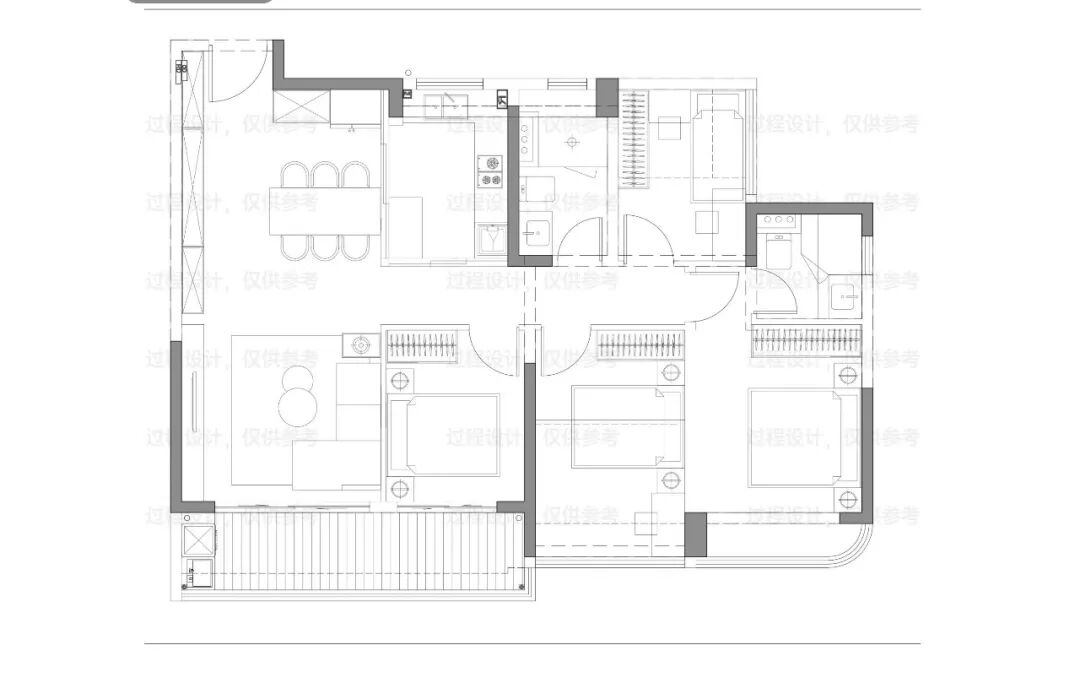
现在曝光的案名是华润天河润府,拟推售建面约80-128㎡三至四房。
体量来说,占地面积超11万㎡,计容建面约20万㎡,规划有宅地、商地和教育用地,其中住宅用地分两期开发。
首推一期住宅,拟规划有4栋,总货量在500多套。

户型上,有建面约80㎡三房两卫、87㎡三房两卫、112㎡四房两卫、128㎡四房两卫等四个户型。
面积段上看,主打刚需客,兼顾部分改善客,销售透露所有户型实用率都在9成以上。
建面约80㎡三房两卫,进门设置了玄关,竖厅设计,半开放式厨房,主卧飘窗是不规则的,有弧度,且客厅位置也有增加飘窗设计,可多一些赠送面积。(销售表示,建面约80㎡的货量并不多,首开也顶多是几十套,因户型朝向只有东和西向可选,单价会偏低)

建面约87㎡三房两卫格局上和80㎡三房相差不大,仅是进门口有带入户花园,且有四开间朝南。

建面约112㎡四房两卫,则是南北对流设计,进门后有设置玄关,半开放式厨房,阳台连通客厅和其中一间卧室。
主卧也有多个飘窗设计,形成南北对流,不过北向的飘窗大概率是会用来做衣柜设计。

建面约112㎡还有另外一种户型可选,进门正对客厅,四开间朝南,北向小卧室空间偏小一些。

建面约128㎡四房两卫,进门处有入户花园,再进入客厅之前,右边是公共卫生间,右边是一个小卧室,对于可能和老人家一同居住的家庭,这个设计还是挺不错的。

阳台和小卧室以及客厅打通,整体就十分开阔,每个房间都配有飘窗,很明显赠送率颇高,特别是主卧四个飘窗,南北对流,通透性非常强。
总体来说,从目前设计手稿的户型看,产品实用率高,主打多赠送率,刚需户型可能朝向方面不会有太多选择,但改善户型多是南北对流,采光通透性强。
销售表示,目前出街的仅是供参考的手稿,还会再收集客户建议,对户型图进行调整,最后以项目官方输出图为准。
至于售价,销售表示,会参考周边的珠江花城、联投文津府等项目,但明确表示,产品定调要比珠江花城高,售价方面不会低于这个项目。
珠江花城目前在搞促销,最低参考单价5.1万/㎡,整体参考均价在6-7万元/㎡,主力户型为建面约79-143㎡三至五房。
尚未开盘的联投文津府,将在2023年第三季度入市,在售产品面积段为建面约108、128、140、165㎡户型,吹风价约7.9-9万元/㎡。
而华润天河润府要花费30亿元配建南沙体育馆综合体项目,还需无偿配建中小学用地,实际上的楼面价地价高于3.8万元/㎡。

未来可能首开价格,大概率是要往保6冲7字头。售价不会跑太高,主要还是因为地段上并没有特别优质。
华润天河润府和珠江花城靠得非常近,是最直接最强有力的竞争对手,户型面积段非常接近,意味着主打刚需客,从赠送率能看得出来,未来产品是卷上天的节奏。
实际上,地块位于广园快速路以北、岐山路以西,属于广物吉山仓用地的一部分,之前主要用作工业、物流用途。

虽然深处天河东圃板块智慧城规划范围中,但是和黄埔也就一路之隔,周围旧厂旧村多,城市面貌较为老旧,还有华南快速和黄埔大道两个交通要道在,周围车流量不会小。
交通方面,目前最近的地铁站5号线鱼珠站,4号线黄村站,得靠公交接驳地铁才能抵达,出行更多要依靠公交或者自驾车,未来则有规划19号线吉山站途径项目周边。
总体来说,配套方面还不够完善,因此二期地块有规划一宗商业用地,未来大概率是要增加大型商业综合体,弥补短板。
除此之外,项目还需配建一所36班九年一贯制学校,如引进名校资源加持,也会是一个不错的加分项。
项目急冲冲的跑入市场抢客,最大原因在于所处的天河东圃板块在售新盘实在太多了,竞争颇为激烈,俨然供过于求的局面。

大搞特价房的珠江花城是最直接的对手,需要正面刚,稍远一些的联投文津府在待售状态,产品面积段有重合,意味着会分走部分改善客流。
城投天河壹品在8月中旬已启动清盘计划,推售货量仅在200套左右,主力户型为建面约86-143㎡三至五房,目前参考均价在7.2-8万元/㎡。
保利天汇主力户型是建面约99-188㎡三至四房,参考单价6-6.8万元/㎡。
而合生缦云和合景臻颐府都是偏改善客为主,主力户型均是大平层单位,参考售价在8-12万元/㎡。
不得不说,眼下天河新盘,一抓一大把,可挑选的盘真的太多了,而且越晚出来的楼盘,还能在产品上卷上一卷,把赠送率做到最大化,华润天河润府在赢面上是有优势的。
对于买方市场来说,这是好事,不仅盘有得挑,价格有得比,产品动不动就超100%实用率,赠送一个房间,不得不说,真的很香。
不着急买房的,还是可以等一等,销售透露,9月2日项目将在地块附近开设正式展厅,年底之前可入市。

