拿着200万以内的预算在广州买房,怎么选?
很多人认为,这么点预算,要么选择远大新、要么只能老破小。
毕竟,广州的房价摆在这里,200万以内肯定是不能既要还要了。
事实上,在广州,200万以内也可以买到优质一手盘。
而且,这个盘优点也不少:主城区、近地铁、好学校、产品力强……
每一点都刚好击中了刚需痛点,这个盘就是今年上半年非常火的——越秀白云星汇城。

越秀白云星汇城,自开放以来,便*白云最高人气刚需“卷王”。
据中指院数据,越秀白云星汇城今年上半年网签632套登顶白云,相当白云每卖5套房子,就有1套是TA家的。
这个成绩超越了同期多个海珠、荔湾热盘挤进全市第6名,确实是能打的。
就单个月的表现来看也很出色。越秀白云星汇城已连续6个月网签蝉联白云第一。

超高人气之下,一期产品已经基本售罄。越秀白云星汇城二期趁势加推,产品全面进化!
二期组团以启城为名,表达了越秀以启迪城市革新为己任,升级醇熟配套,让项目配套资源助推区域发展的初心。此次更新升级的二期产品,也是大城生活的又一次全新启程。
二期启城组团4栋低密住宅靠近金广小学,面世即是“C位”,未来去商业、公园、运动中心等都很方便。
在设计上,整个组团通通做到“全南向”,通透性及视野更好,推开窗就能感受到阳光跳动。
二期4栋楼采用点式布局,而非一排一排的“行列式布局”。这意味着,楼与楼之间,视野能够彼此错开,超9成的户型,推窗看园林,随时感受自然的呼吸。
楼与楼之间,又是彼此独立的,全部都是单边户,极大限度消弭户与户的遮挡。

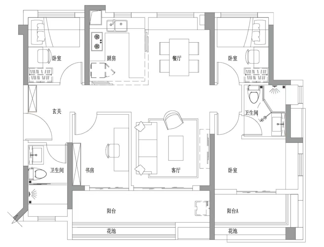
产品上面,越秀白云星汇城本次加推的二期建面约87-98㎡全南三四房更是相当能打。
1、二期所有户型做到了全部南向,无遮挡采光也好,满足了广州人对南向的执着;
2、全部都是四开间朝南起步,甚至可以做到五开间朝南,舒适度UPUP;
3、在最体现私密生活品质的主卧设计上,所有户型都做到了南北对流;
4、最值得一提的是,用相同面积住更大的空间,舒适加倍。
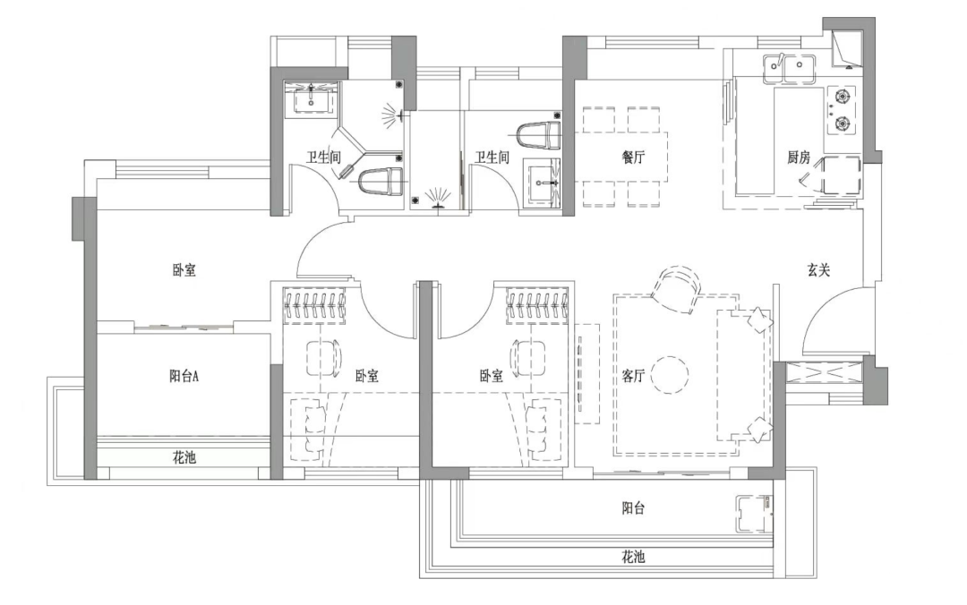
建面约87平户型,4.5开间朝南、270°宽景阳台享受宽景生活。不止卧室,连厨房、餐厅、阳台甚至卫生间都设计了飘窗,拓展生活边界,受更多阳光的同时也享受了更高的使用率。

建面约88平户型,四开间朝南、270°宽景阳台、LDK一体化空间,买第一套房,也不必将就。北侧的飘窗可以打造成阳光梳妆台或巨幕观影区,享受更品质的生活。

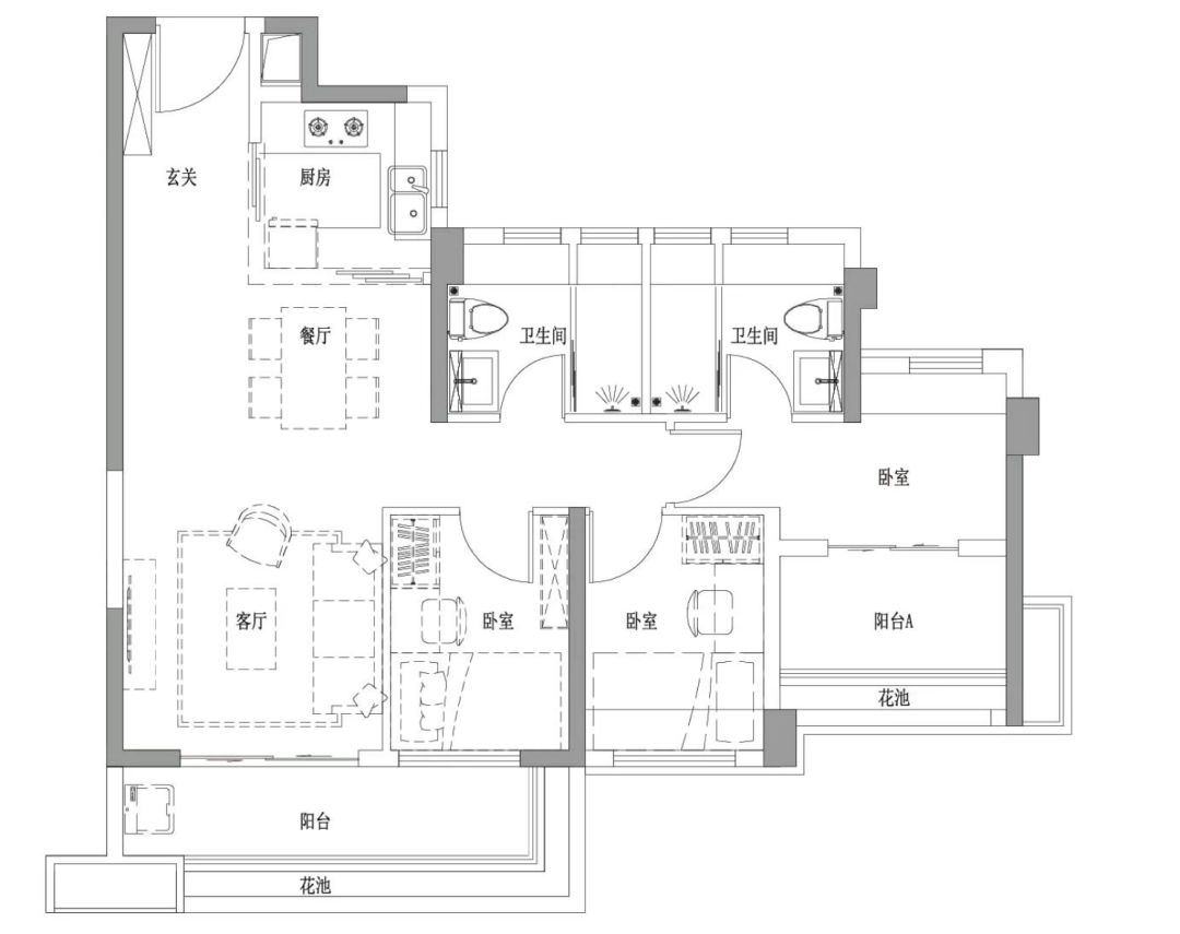
建面约98平户型,做了四房的设计,住出了120㎡+才有的奢阔感。入户玄关的设计,增加收纳空间的同时也提升进家门的仪式感。
还把当下最时髦的LDKB一体化设计也安排上了,客餐厨及阳台一体化,开放式厨房做饭的时候也能看到孩子的动态。还可以把客厅和书房打通形成大方厅,奢阔空间住出豪宅体验。

对于很多购房者来说,教育是很重要的因素之一。
越秀白云星汇城配建的九年制学校,小学和初中都由白云区金广实验学校具体管理。而且,今年六月小学已经封顶,很快就能投入使用。

更让人欣慰的是,越秀白云星汇城致力于造一座专注孩子快乐学习、终身学习的教育大城。
不仅关注课堂内的优质教育,也关注成长中珍贵的课外时光。社区内配建少年宫,为孩子们打造有趣少年宫的八大课堂,孩子可以在此学习自己感兴趣的课程,发现学习的乐趣与美好。

丰盛配套为日常生活带来的惊喜更是层出不穷。在约3.3万方商业综合体,感受触手可及的繁华;在约2万㎡广州首个飞盘公园里,释放青春能量;在约1800㎡的草坪露营区,邂逅自在生活。
目前,李宁运动中心已经开业,在这个包括冲浪馆、健身房、瑜伽房、篮球馆、羽毛球场、网球场等在内的综合性体育场馆,让孩子和家长都可以参与体验各种运动项目和体育活动。

如此惊人,配套过硬的项目,你心不心动呢?

