楼市变化之快 ,让人猝不及防!
前段时间楼市冷冷清清,但*近随着监管层频频发声释放积极信号,央行全面降准释放长期资金约1.2万亿元,以及银行加速放款之后,楼市已经开始触底反弹,呈现回暖态势!
11月广州新房成交8761套,环比涨22%,结束前5个月的颓势,*次回升。

来源:广州中原研究院@广州楼市发布
随着政策转向和成交回暖,广州楼市已经阶段性触底,多区楼盘都已取消折扣优惠,对于刚需与投资来说,目前就是上车的*佳时机!
而黄埔区的知识城板块,目前*属于价值*和热门板块!
一方面,知识城作为中国与新加坡投资千亿开发,大湾区*个*双边合作项目,随着客流、商流、产业流的快速导入,十年间已发展到初具规模,城市面貌发生巨大改变,目前已吸引了电信、阿里巴巴等多家世界500强企业进驻,人口从3万人攀升*如今的18万人,预计到2025年增加*30万人。作为广州东部当下*耀眼的新星,知识城房价一路走高,特别是去年二手房房源挂牌价一度冲破4万/㎡。
未来,知识城还有巨大的发展空间,照目前发展情况来看,知识城房价远未达到天花板水平。
另一方面,却是知识城近5年供求比不断下降,从2020年起就进入了供不应求的态势,今年供求比更是跌*0.49,*程度可想而知。因此,在上一轮行情中,知识城火速出圈!特别是带上“*”、“知识*区”等字眼的楼盘,一开盘就十分火爆,出现“买房靠抢,还抢不到”的局面。

来源:中指院@广州楼市发布
克而瑞数据显示,2015年*2020年,知识城片区新房供应量不断加大,成交量也在大幅攀升,到2021年“供不应求”趋势渐显。
知识城近年来成交量分析

|图片来源:克而瑞广佛区域
这背后,也正是其区域价值的体现,过去不被很多人看好的知识城,以实际数据变化证明了它的实力。
01
知识城*区上新 *靓的仔
近期,缺货已久的知识城终于又有重磅级产品推出了!
据悉,位于知识城*区的升龙•学府上城即将入市,这次必将填补知识城*区内的供货,也必将搅动片区内的楼市风云。
为什么这么说呢?
其一,升龙•学府上城位于知识城中部,属于知识城*区,是一个体量超百万方的*大盘,是一个集居住、商业、教育和环境于一体的全能大城,配套齐全,未来生活极其便利!

效果图,*终以政府批复为准
其二,项目属地铁14号线汤村站上盖,*期地块离地铁仅两三百米,地铁快线4站到天河。项目毗邻广河/花莞高速出入口,驾车35*直达珠江新城。

示意图
其三,升龙•学府上城是名副其实的“教育大盘”。项目自身规划8所公立学校,包括4所幼儿园、2所小学、1所九年一贯制和1所完全中学,“一站式”配套15年教育体系。一路之隔,就是大名鼎鼎的“神学院”华附知识城校区,投资25亿,规划设有高中部60班+初中部18班,共提供约3900个学位,预计2024年9月开学。

效果图,*终以政府批复为准

华附知识城校区效果图,*终以政府批复为准
其四,配套方面,项目配建88万平的商办集群,包括写字楼、公寓、商业综合体等多业态,地铁一站之隔还有缤纷城,吃喝玩乐基本不用愁。

效果图,*终以政府批复为准
02
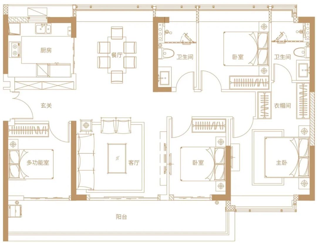
96-143㎡三四房爆款上新
即将开盘的升龙•学府上城,这次推出了颇为亮眼的产品。既拥有高实用率,又拥有目前区域内*高的装修标准,项目的*品质扑面而来。
*期地块将推出9栋住宅,户型分别是96㎡、132㎡、135㎡和143㎡的三到四房,囊括了刚需和改善不同客群的需求。

效果图,*终以政府批复为准
【96㎡户型三房两厅两卫】
96㎡户型,这次项目推售的*一个小户型,也是*期组团中*小的户型。



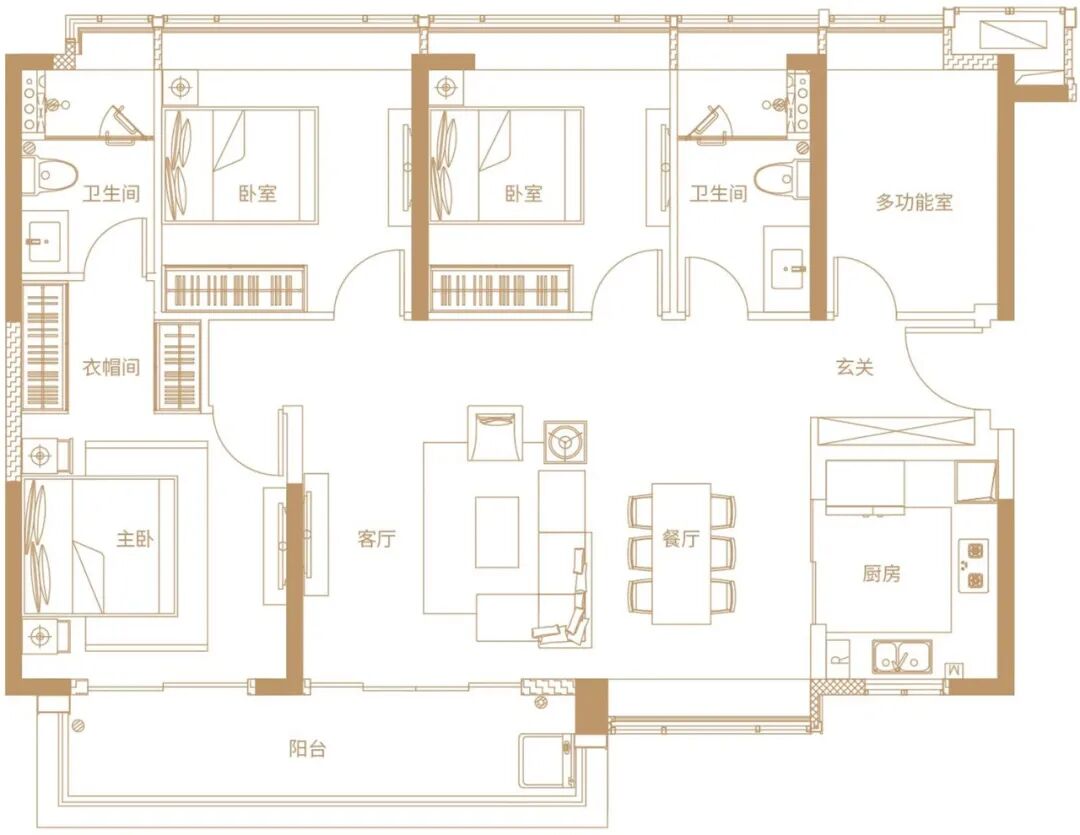
135㎡户型还有一个竖厅布局,主要的*在于整体实用率很高,没有空间浪费的现象,明厨明卫,而且还有个大阳台,视野相当开阔。主卧的衣帽间设计既避免了进门直望主人床的尴尬,也对主卧连接主卫的视线进行了一个遮挡。

请看板房照片,135㎡四房两厅两卫设计靓爆了!
左右滑动查看更多

总结一下:
96㎡的三房是竖厅设计,景观较好,阳台望园林。132㎡的四房有南北两个朝向,南向采光更好,有6.5m长的景观阳台。135㎡也有6.9m长的宽景阳台。而143㎡的户型南北对流,四开间设计,舒适度*高。
一番细品下来,可以看出,升龙•学府上城户型设计是用足了诚心,力求给业主*好的居住体验。
在交标上,升龙·学府上城也不吝手笔,配置区域高标准的装修标准,包括大理石、实木地板、*空调等,这些都是广州*项目才配备的。每栋楼采用双入户大堂设计,楼栋*层和负一层车库的电梯厅都采用奢华的入户大堂设计,可以说,升龙·学府上城打造了目前知识城片区装修标准新高度!
综合来说,知识城*区、*、*教育大盘、一流的户型产品,升龙•学府上城几乎满足了社会精英对于高品质生活的需求。
现升龙•学府上城的展示*已经开放,观察君去踩盘时发现,每周末咨询和看盘的人络绎不绝。
















