联投文津府该地块是去年广州第三轮集中土拍中,由武汉鸿信世纪置业有限公司竞得的,总价321118万元、折合楼面价38992元/平。(武汉鸿信世纪置业有限公司实为湖北联投控股公司,湖北联投为湖北省属大型国有控股限公司,身处湖北本土房企*方阵。)
联投文津府隶属于奥体板块,位于珠吉路以东、吉岐路以北,与执信中学(天河校区)仅一路之隔,*近的楼盘为珠江花城,此外离牛奶厂版块直线距离约1公里。

同在天河,联投文津府项目距离珠江新城、金融城、天河智慧城等CBD距离均不远,分别为15km、12km、8km左右(来源:百度测距),自驾约30*可抵达珠江新城。

公共交通方面则不太方便。目前距离*近的地铁站,为地铁4号线黄村站,直线距离约3公里左右;在建的7号线二期姬堂站直线距离也有1.7公里,需要接驳公交或者自驾。

商业配套方面,项目自带约1000㎡肉菜市场,满足业主就近的生活需求;其他的则暂时需要蹭一下隔壁珠江花城的配套,华润万家、美宜佳、钱大妈、百果园等品牌商家已开业,麦当劳已签约。
周末闲暇,可自驾*优托邦、美林天地、漫广场等商场,吃喝玩乐也很便利。

而学校,或许是项目*大亮点。
项目自带6班幼儿园+托儿所,旁边就是执信中学(天河校区),距离均和小学约400米。(具体入读规则以教育局当年公布为准)
均和小学和**体育东路小学同属于体育东教育集团。而执信中学则为广东省10大*之一,该校区是执信中学的第四个*校区。

此外,联投·文津府的生态资源也不错。不仅三面环山,附近还有天河儿童公园,岐山公园双公园环绕,周末休闲好去处。

联投·文津府总计容建面约8.2万㎡,容积率为2.7,分开2宗地块开发,合计7栋产品,总货量仅500+,席位不算多。
我们都知道,一般来说容积率越低居住舒适性越高,市区的房子容积率动辄破3奔4,项目仅2.7的低容积率,无疑要打造成宜居舒适的*社区。
地块一为5栋建筑呈围合式布局,可以更大程度的享受园林景观,会所、泳池、幼儿园都设置在此区域;
地块二为2栋板式建筑,更为纯粹更具逼格。

产品选择不少,主要面向刚改及改善型买家。
地块一涵盖建面108-165平的四房。
地块二涵盖建面165-180平的4+1房,以及少量超过200㎡顶复,均为广州人*喜欢的南向布局。

建面约108㎡3+1房2厅2卫,为近年*的LDK一体化设计,空间更加流畅通透;客厅、阳台的宽度接近6米,通风采光一流。

| 建面108㎡3+1房
建面约128㎡4房2厅2卫,餐厅、厨房和客厅连成一体,面积接近40平,空间感超强。四面宽朝南、8米大阳台,美好生活向阳而生。

| 建面128平㎡4房
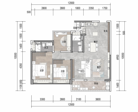
建面约165㎡4房2厅3卫,双套房设计,独立入户玄关、南北对流、约8.8米长阳台等,改善家庭*。

| 建面约165㎡4房
户型设计还是比较符合近年来的审美和趋势,空间设计也可圈可点,应该能满足挑剔的买家。具体呈现如何,则需等样板房出来实体看过才知道,让我们拭目以待吧。
前文提到,项目楼面价接近3.9元/平,按照售价一般为楼面价2倍的普遍定律,我们大胆猜测,联投文津府预计要卖到7.5-8w/平左右。

