一手猛料!注意,就在荔湾,万汇天地新组团要来了!
是的,接棒万汇天地·金域曦府,组团的另一强劲选手——万汇天地·瑧园即将登上历史的舞台!
*多也就了解到它整体规划7栋超高层住宅+约4000㎡的商业街,围合式布局,整体设计为三梯四户或三梯五户,走的是*路线。

据悉,万汇天地·瑧园项目将推出面积段约为125㎡和141㎡的三房两厅两卫+灵动空间户型。
从面积段来看,对比万汇天地·金域曦府,万汇天地·瑧园这批产品在尺度上明显放大了不少。
那具体到产品,这些年万科在广州基本都是在中端市场发力,而万科的*系作品会是什么样呢?
据说万汇天地·瑧园这次的户型设计是万科对百位高净值客户调研后,经过约8个月时间推敲打磨,修改30+稿方案后才*终迭代出的“高定”产品!
对比之前的产品,万汇天地·瑧园有五大*亮点:
真正意义上的全南向产品!全方厅设计!LDK 客餐厨一体化!为生活留白的赠送手法以及三梯五户高配置梯户比!
这些亮点在户型中具体怎么呈现的,我们一起来看看!
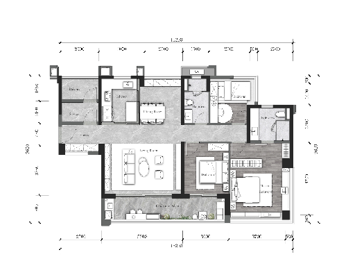
*先是建面约125㎡的三房两厅两卫+灵动空间的起步户型,它的朝向为南向。
万汇天地·瑧园的这一户型,无论是从空间的尺度感,还是功能性,都做了一个升维,在市场上也会更受购房者青睐。

建面约125㎡户型然后是建面约141㎡的三房两厅两卫+灵动空间的户型,同样是南向户型,并且能够做到南北对流,舒适度*。

建面约141㎡户型从目前看到的户型图来看,万汇天地·瑧园的产品力十分不错。在这个*系项目中没有过分地追求房间数量,而是提高得房率以及居住的舒适度。
*后回过头来看万汇天地·瑧园,还有三个消息想和大家分享。
其一,接棒万汇天地·金域曦府,该组团的热度肯定同样不低。
此前,万汇天地·金域曦府作为花地湾地块*个入市的项目,因其地段、配套、价格、产品综合实力较高而一跃成为广州*受关注的网红盘之一。
很多之前没有买到万汇天地·金域曦府大户型的,以及想买更*产品的购房者们,已经不止一次向我们打探过项目的消息。
如果对该组团感兴趣,势必要做好面对激烈竞争的准备。
其二,组团配套*明显。
从规划图来看,万汇天地·瑧园毗邻它打造的混合街区,旁边就是建设中的省实荔湾学校花地湾校区。(注:招生地段具体以教育局公布为准)
这也就意味着,这个项目周边的生活配套是非常便利的。
其三,价格方面,项目销售也很直接地告诉我:要涨价了!吹风6万以上!
我也有同事拿到准确价格,据说是6.5万-7.5万/㎡。

且根据市场规律以及万科以往的推售经验,我预估项目*开时的价格会*为优惠。
所以如果想入手,请各位一定一定现在就要做好准备了,尽快去项目走一趟,不要等它开盘了才反应过来,届时好货都是别人的。

