侨鑫保利汇景台(汇景新城E3地块)位于天河区科韵路西侧和规划中的汇景北路东延段,属于五山板块。
于2020年6月29日,侨鑫集团和保利发展*次联手拿下天河科韵路西侧地块,楼面价达41329元/平。

地块占地64640平,建面94051平,容积率达到*区罕见的1.94,仅容纳400户。
这意味着E3项目将是一个超低密度的*住宅区。

项目将建设14栋12层高住宅,呈环状分布,住宅中间为小区下沉广场,包含800平的居民建设场所,小区还规划4层高的社区医院以及3层高的幼儿园,以满足居民日常教育、医疗需求。

同时,今年科韵路西侧的中铁物流园地块控规出现调整。
规划调整后,将新增大片宅地,九年制学校、商业、绿地也都安排上了!
更重要的是,地块毛容积率仅有1.47,是天河近几年容积率*低的地块。
天河豪宅圈未来有新成员了?赶紧来看地块情况!

图源:广州市规划和自然资源局
根据规划,侨鑫保利汇景台由14栋12层小洋楼组成(共408户),容积率1.94,算是天河比较少见的低密社区,居住环境舒适。

此外,依附汇景新城,周边的配套也十分成熟,商业、教育等配套一应俱全。

不仅如此,汇景台自身将配建有5万平山顶公园、3万平汇景湖、2千米*景观长廊以及一所幼儿园和一家建面约1.4万平的医院。

由于是侨鑫和保利联手的楼盘,所以看的时候未免会更加挑剔一些。
由于受到限高的影响,汇景台所有楼栋的层高*高不过12层,属于小高层住宅,容积率又不到2.0,这种密度的房子,在广州市*真的很少见了。

另外,楼盘户数400多,户型却多达10个。
值得一提的是,项目*小户型为建面约123-127㎡,分别位于5号楼、7号楼、12号楼和13号楼,共计8条梯腿。

从这方面来看,开发商还是用了心的,户型包括了:
123平方米三房
124平方米三房
140平方米三房
171平方米四房
184平方米四房
185平方米四房
193平方米四房
242平方米四房
290平方米五房
352平方米五房
很明显,开发商就是要小区纯粹,并没有设计一些小面积的单位夹杂在当中。
看了户型图,你会怀疑设计师有偏执狂,真的是非常方正,动静分区很清晰,不过,还没做到所有卧室都朝南这种*。


「5号楼建面约124㎡户型图」

「建面约124㎡户型,样板房效果图」
然后,建面约239㎡户型,阳台宽8米,建面约242㎡户型,阳台宽8.4米。实用率为83.6%。

「2号楼建面约242㎡户型图」

「约242㎡户型,样板房效果图」

「约242㎡户型,样板房效果图」
如果你预算特别高,想买顶复的话,那么,你可以*关注6号楼、9号楼和10号楼。
因为,只有这3栋楼,才有顶复户型。


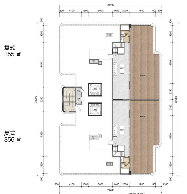
「6号楼,建面约355㎡顶层复式」

这个户型,整个6号楼就只有2套,价格估计也是*高的了。
如果不算上面一层的赠送面积,实用率为85.6%。算上的话,那就...........咳咳,你懂得。


「9-10号楼,顶复平面图」
9栋和10栋的顶复户型,分别为建面约342㎡和356㎡,每个面积,每一栋楼,就只有一套。
所以,总结来说,汇景台顶复合计就只有6套!(2套355㎡+2套342㎡+2套356㎡),大家觉得会靠抢吗?

此外,项目自身将配建有5万平山顶公园、3万平汇景湖、2千米*景观长廊以及一所幼儿园和一家建面约1.4万平的医院。
交通方面也十分方便,项目距环城高速出入口不到100米,可快速到达主城各*区,符合各位土豪的需求。
更多找房咨询请在你的手机微信右上角搜索处选择小程序后,输入“亮点好房”搜索,即可进入“亮点好房”小程序,即可直接查询到更多的楼盘、房源、资讯……,里面可直接找到专业的房地产顾问进行咨询购房事宜!
如果你还想更加了解广州,或者了解广州相关的楼盘项目!可以点击下图链接进行登记!亮点好房企业会为你配置一对一的本地置业顾问为你解答,免费为你制定置业计划!免费咨询热线:400-832-7668

