今天就写个豪宅揭秘吧?给大家聊聊“侨鑫保利汇景台”怎么样?
为什么要写它呢?
其一、它出自侨鑫之手。说到侨鑫,我想业内人士应该没人不知道吧?它在广州豪宅界的地位,如果敢说第二,自然没人敢说*。这就如同上海-汤臣一品的开发商、深圳-深圳湾壹号的开发商一样。广州*贵豪宅—侨鑫汇悦台,就是它搞的。

「侨鑫汇悦台实景图」
其二、汇景台为天河豪宅。众所周知,天河一手住宅向来*,更别说一手豪宅了。所以,这个项目从拍地开始就备受关注。
其三、这个项目一开始是计划11月开板房,12月开盘的,但因为限价等各种原因(据说今年天河备案价不能超过10万/㎡),导致项目节点有变,不排除开盘价格会有惊喜。
其四、据二娃多位粉丝爆料,*近几天,他们都陆续收到了项目销售的电话或短信通知:“汇景台将于12月中旬开始认筹,请准备大约总房款的20%资金,元旦期间开放样板房,预计月中收筹时会有大约价格,因为客户比较多,参观样板房会按认筹的先后顺序参观”。

「粉丝爆料截图」
好家伙,也就是说汇景台极有可能在2022年*季度*次开盘。
话不多说,咱们先来看看项目的施工进度情况(图片拍摄于2021年12月11日)。









「项目施工进度图」
妈呀,别的不说,就*张图(幼儿园)的外立面造型和颜色审美,就吸引到我了,完全长在了我的审美上!
从施工进度航拍图可以看到,截止2021年12月11日,汇景台1#、2#、3#、14#这4栋楼都已经建的比较高了。预计*先开盘的,就是这几栋楼中的其中一栋。

「楼栋分布示意图-航拍」

「楼栋分布示意图-沙盘」

「楼栋及户型分布图」
值得一提的是,项目*小户型为建面约123-127㎡,分别位于5号楼、7号楼、12号楼和13号楼,共计8条梯腿。但*推的应该是5号楼(预测错了别打我)。

「5号楼平面户型图」

「5号楼建面约124㎡户型图,来源广州房产」

「建面约124㎡户型,样板房效果图」
其中,5号楼建面约123㎡-124㎡户型,共计22套,套内面积在107-108㎡之间,实用率去到了87.4%。
假如,项目开盘价为12-13万/㎡,那么,一套建面约123㎡的户型,门槛则在1476-1599万左右(大家准备好钱)。
当然,如果你想买200㎡以上的大户型,那么1号楼和2号楼建面约239㎡和242㎡户型就比较合适。户型图如下所示:

「2号楼平面户型图」
专梯专户设计,私密性和尊贵感更强。
然后,建面约239㎡户型,阳台宽8米,建面约242㎡户型,阳台宽8.4米。实用率为83.6%。

「2号楼建面约242㎡户型图,来源广州房产」

「约242㎡户型,样板房效果图」

「约242㎡户型,样板房效果图」
如果你预算特别高,想买顶复的话,那么,你可以*关注6号楼、9号楼和10号楼。
因为,只有这3栋楼,才有顶复户型。


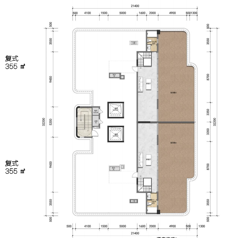
「6号楼,建面约355㎡顶层复式」

这个户型,整个6号楼就只有2套,价格估计也是*高的了。
如果不算上面一层的赠送面积,实用率为85.6%。算上的话,那就...........咳咳,你懂得。

「9-10号楼,顶复平面图」
9栋和10栋的顶复户型,分别为建面约342㎡和356㎡,每个面积,每一栋楼,就只有一套。
所以,总结来说,汇景台顶复合计就只有6套!(2套355㎡+2套342㎡+2套356㎡),大家觉得会靠抢吗?
由于户型图太多了,二娃就不逐一放出来了,有需要的可以加我微信索要:wsfew2019。

「2020年9月11日项目奠基仪式图」
据二娃了解,汇景台前身名叫汇景新城E3地块,位于天河区科韵路西侧(即汇景新城·龙熹山组团旁的高尔夫地块)。
今年6月29日,侨鑫携手保利,以334889万元的总价将其收入囊中,扣除所有公建面积后(13021㎡),折扣楼面价为41329元/㎡。

「E3地块就是汇景台」
根据现场公布的资料显示,汇景台用地面积约6.4万㎡,住宅可建面积约4.3万㎡。整个项目规划了12栋住宅(52.2米)、一所幼儿园(2300㎡,共3层)、一所医院(1.4万㎡,地下一层,地上4层),部分住宅楼栋有做裙楼设计,会打造小区会所功能区,地上架空层约7000㎡。
小区园林共计3.5万㎡,*区的负一楼为大型水景、泳池区、瀑布区和儿童游乐区。


「项目效果图」
说到这个项目啊,我发现很多小伙伴喜欢把它拿来和赤沙TOD对比,然后问我:你觉得汇景台和赤沙TOD买哪个更好?
说实话,如果论品质感,论产品力,论宜居舒适度的话,我会觉得汇景台更好。但论地段价值的话,我可能觉得赤沙TOD的价值更高一点。
你们觉得呢?

