速度!番禺大石新光快速西侧地块项目,有住宅获批!
今日(11月16日),广州市规划和自然资源局发布番禺区大石街新光快速西侧地块项目住宅4#批后公示。

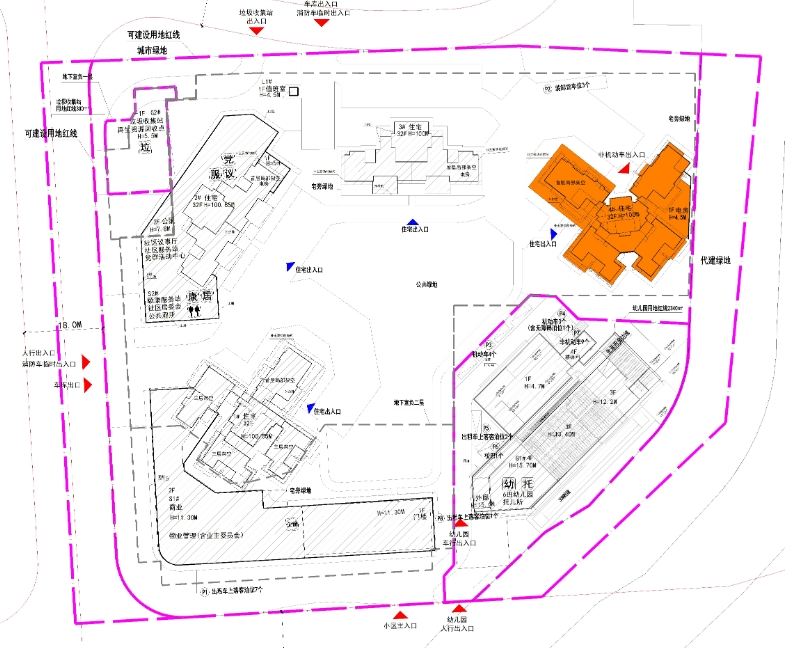
从公示看来,获批的4#位于整个项目东北方,一共有32层。
而整个项目一共有4栋住宅和1个幼儿园,住宅呈围合式布局,均为32层高。
其中1#和4#为塔楼设计,每层4户,应该会做成小户型产品。
直面江景的2#和3#是板楼设计,妥妥的江景大户型。

网上也流传一份项目效果图,大家可以参考下,3#的景观应该是最好的。

回顾项目地块信息,它在今年9月被山西金振德幸运摇中,成交总价107964万元,折合楼面价22584元/㎡。
这是实打实的靓地,所以火到要摇号。
地块占地面积近1.9万㎡,总建面约47806㎡,价格也不贵,总价不到10.8亿元,属于小而精的类型。
值得一提的是,地块不远就是今年4月出让的番禺迎宾路摇号地,由民企南通亚伦拿下,联合龙湖开发,现已打造成龙湖御湖境项目入市,首推1、2栋,户型涵盖建面约115-190㎡三至四房,参考价格约4.7-5万元/㎡。(价格仅供参考,以实际为准)
和龙湖御湖境一样,大石新光快速西侧地块项目,山西金振德也拉了“大哥”入局共同开发。
从公示内容得知,项目建设单位为广州穗遥置业有限公司,企查查显示,该公司广东保利控股70%,山西金振德控股30%。
这也基本可以确认,保利会和山西金振德一起,操刀大石新光快速西侧地块项目。
近一年来,过江龙拿地,再拉上广州本地有多个成功项目的房企共同开发,已不是什么新鲜事。
你有运气,我打辅助,也是个双赢局面。
有了央企保利的加持, 大石新光快速西侧地块项目会被打造成怎样,又多了几分期待。

