天河北已成为了高房价的代名词。
有这么一个板块,明明四通八达、地段优质、商铺林立且拥有更好的生态资源,甚*被称作“天河北的后花园”。
然而和天河北隔着一条广园路的他,价格却判若天渊,一个均价7万+,一个均价才4万+。
他就是我们今天的主角——粤垦板块。难道说,紧盯地段的观点现在已经不灵验了?一起来现场看看。
粤垦板块位于天河区西侧,北靠禺东西路和广州环城高速,南临广园快速路。
整个板块被地铁6号线和地铁3号线包围,其中地铁6号线设有燕塘站,地铁1号线和3号线以及建设中的地铁11号线设有广州东站。

然而在粤垦路汇入广园快速路的路口,上下班高峰期通常会实施交通管制措施,禁止车辆直行,常常造成交通拥堵,附近居民叫苦不迭。
板块主要由粤垦社区、银定塘村等行政街道组成,由于发展得比较早,这里大部分是老旧小区盘,银定塘村是其*的城中村,整体道路宽敞、基础设施完善,城市面貌偏成熟。
板块内含广州市银河烈士陵园和燕岭公园,其中燕岭公园又被称之为“瘦狗岭”,是白云山的余脉,秋意绵绵的午后来到这里,尚能够感受到阵阵凉意。
另外,粤垦周边医疗资源丰富,其中包括三甲医院武警广东省总队医院、中山大学附属第六医院和广东燕岭医院、广东六一儿童医院等等。
板块内学校众多,除暨南大学、广东农工商职业技术学院两所高等学府外,还有广州市天河第二实验幼儿园(总园区)、菲切尔国际幼儿园、长征小学、五一小学、东方小学、天泽中学等学校。

| 暨南大学
生活配套方面,板块内较少传统意义上的大型商场,仅有富力院士庭小区西侧的一处天河笙活里。
但板块内小区底商众多,能够满足居民的基本需求,并且食肆云集,特别是两大学府的周边地带,是小吃商铺的集中地。
当地老板说,粤垦路一带还曾是90年代粤西人民来到广州打拼的*站,如今周围林立的“湛江鸡”饭店恰恰印证着这一点。
号称天河北后花园,竟然也会被人说“火”不起来?
根据贝壳平台的成交数据,粤垦板块参考均价为4.3万元/㎡,和天河北板块的7.1万元/㎡差了接近2倍。
板块内不同小区的成交价格差异巨大。其中北部靠近烈士陵园的区域价格较低,而南部靠近广园快速路的区域价格较高。
以热门小区为例,*北部2000年建成的燕东大厦、1998年建成的高胜花园近期成交数据分别为3.3万元/㎡和2.7-3.3万元/㎡。
而中部的1992年建成的金燕花苑成交单价在3.3-4万元/㎡之间。

| 金燕花苑
南部2006年建成的次新盘侨英花园成交单价在4.9-5.9万元/㎡之间,富力院士庭更是卖到每平7万+。所以说,像次新盘以及成熟大盘这类“潜力股”上涨空间还是存在的。
看回10年前报纸上的房价,金燕花苑开盘才卖4800元/㎡,新燕花园*便宜卖3850元/㎡,粤垦板块俨然跟着时代涨了10倍有余。
私以为,要谈粤垦板块部分区域房价后劲不足,原因是五花八门的。
其一是太靠近火葬场。像是陵园、火葬场这类殉葬有关的地方,多数人会觉得不吉利,也比较抗拒在附近定居。
其二是山路。板块内的小区盘大部分都是环山而建,走到小区的正门已经相当于很多楼盘的2-3楼,坡度超抖的楼梯绵延不断,看得我都感觉膝盖隐隐作痛,更别说上了年纪的老人家了。

其三就是楼龄了。板块内旧小区不少,虽然房价比较亲民,但10-20年的楼龄很难hold住,实在是没必要为了一个天河的头衔拼命往里挤。
话又说回来,靠近天河北的区域还留有房价的“*”,属实是刚需一族在高昂房价面前难能可贵的绿洲了,且买且珍惜。
整个天河新盘都算是*,粤垦自然也不例外,目前板块内暂无新盘在售。
但靠近燕塘站的这一侧,有个名为粤垦绿苑的“老妖盘”,乐居君2019年便去现场航拍过此盘。
前两天,不少自媒体称项目即将“盘活”,一时间消息传得沸沸扬扬。
早前,广州本地媒体曾曝光过项目开发商粤垦地产与工程团队坤龙公司的工程款纠纷事件。
直接拉到结局:2019年5月,广州海事法院*终确定案件执行标的额为197893607.50元,申请执行费为265293.61元,粤垦公司亦在当日向工程方坤龙公司支付了该款项。
原以为,这个沉封之久的新盘,应该很快能够回归市场。
两年过去了,乐居君再次前往现场探究发现,并无任何施工痕迹。这栋落灰将近20年的“老妖盘”,若要重新入市理应重新修整才对。
毕竟常年裸露在外的铁围栏锈迹斑斑,楼下的绿色遮布也破了不少的洞,印象分就已经大打折扣。
询问门口的两位安保人员,得到的却是“暂时没有通知复工,开盘估计会内部订购”的答复。
时*今日,我们并未在广州预售证官网内查询到任何开盘相关的消息,对楼盘已被“盘活”消息,在这里暂且打上一个问号。
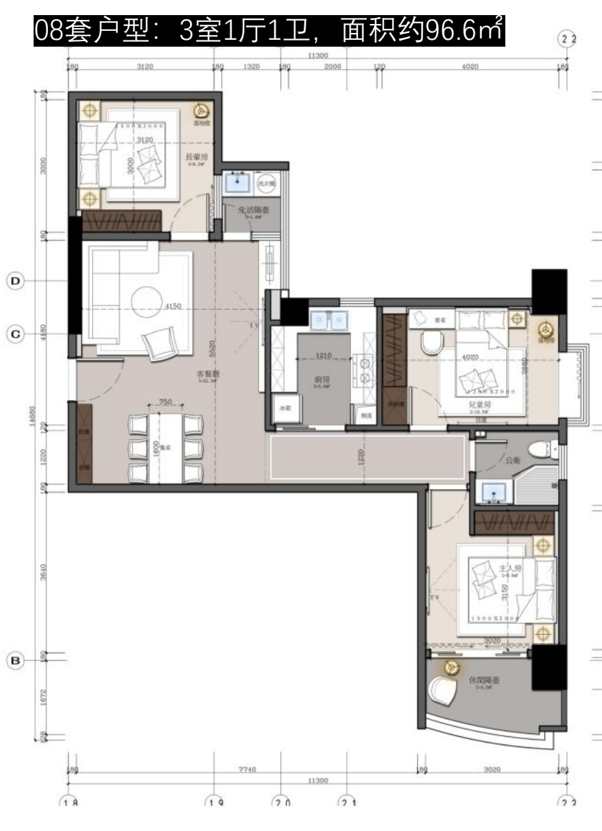
但市面*传出来的户型图已经有模有样,不妨一起看看。
从3梯8户的户型图来看,粤垦绿苑项目当初应该是采用了十分典型的90年代港式建筑设计,其讲究土地集约化利用,容积率很高。
港式建筑讲求“尺度感”,一般会出现大一室、两室的设计,譬如138㎡只做三房的01户型,以及50㎡只做一房一厅的03户型。
而08户型,就是港式建筑为了更好地获取景观资源,从而导致房屋格局不方正的典型案例,看这动线扭得实在是一言难尽。

*于受到“群嘲”的厨卫一体设计,在乐居君看来,或许换个入门的地方,就能有效改善。
项目虽然是地段质优生的新盘,但是外立面看上去甚*不如同期二手盘,而且楼龄缩水20年,槽点确实不少。
如此看来,粤垦板块新盘*,二手分化,但仍有房价“*”。
如果是你,会选这里吗?



